End terrace house for sale in Canterbury CT2, 4 Bedroom

Canterbury, Canterbury, UK

Quick Summary

Property Type:
End terrace house
Status:
For sale
Price
£ 450,000
Beds:
4
Baths:
2
Recepts:
2
County
Kent
Town
Canterbury
Outcode
CT2
Location
Shepherdsgate, Canterbury CT2
Marketed By:
Godwin Curtis Estates Agents
Posted
2019-05-06
CT2 Rating:





More Info?
Please contact Godwin Curtis Estates Agents on 01227 319041 or Request Details

Property Description

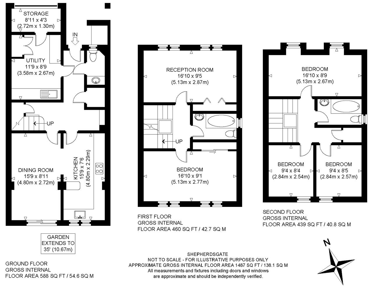
An attractive four/five bedroom townhouse located in a sought-after cul-de-sac within walking distance of Canterbury West railway station, St Dunstans and highly regarded local primary and secondary schools. The property has accommodation arranged over three floors comprising an entrance hall, impressive kitchen/breakfast room, dining/sitting room and WC on the ground floor, a living room, master bedroom and bathroom on the first floor and three further bedrooms and bathroom on the second floor. A very pretty rear garden - with a south-westerly aspect - leads to a further area of outside space to the front and side of the property with a seating area amongst mature trees. There are two parking spaces in addition to the garage which is currently divided so as to provide a utility room and bicycle storage.

Floor Plans

Property Location

Marketed by Godwin Curtis Estates Agents


By submitting this form, you accept our Terms of Use.

Disclaimer Property descriptions and related information displayed on this page are marketing materials provided by Godwin Curtis Estates Agents. estateagents365.uk does not warrant or accept any responsibility for the accuracy or completeness of the property descriptions or related information provided here and they do not constitute property particulars. Please contact Godwin Curtis Estates Agents for full details and further information.