Detached house for sale in Selby YO8, 6 Bedroom

Selby, Selby, UK

Quick Summary

Property Type:
Detached house
Status:
For sale
Price
£ 1,295,000
Beds:
6
Baths:
4
Recepts:
2
County
North Yorkshire
Town
Selby
Outcode
YO8
Location
York Road, Cliffe, Selby, North Yorkshire YO8
Marketed By:
Preston Baker - Selby
Posted
2024-04-21
YO8 Rating:





More Info?
Please contact Preston Baker - Selby on 0330 038 9443 or Request Details

Property Description

Join us for the property launch on Saturday 22nd June. Call now to book your viewing!

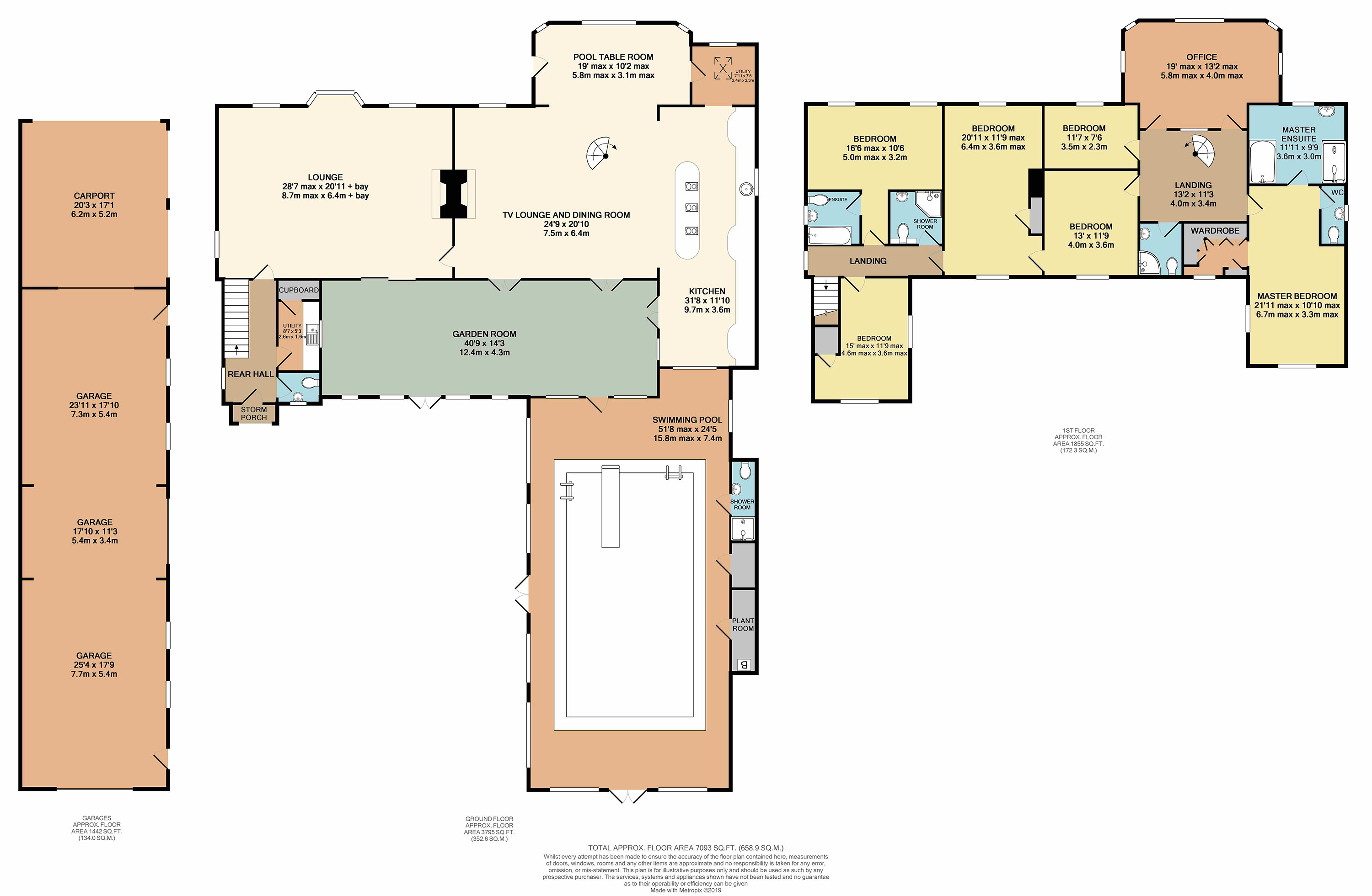
Impressive six bedroomed family home. Meticulously refurbished, with no onward chain. Accommodation extending to over 5650 sq. Ft. With garaging / workshop suitable for multiple and larger vehicles. Set in 0.9 acres of stunning gardens, along with a 1 acre fenced grass paddock and orchard. Delightful far reaching views over rural countryside. Ideal for business owners or equestrian use, with excellent commuter links to Leeds, York, Hull, Manchester and London.

The ground floor offers a spacious TV lounge and dining room with feature fireplace and spiral staircase that is open plan to a pool table room, both of which have solid wood flooring and a stunning contemporary kitchen boasting a range of high quality fitted units, large island/breakfast bar, granite worktops, a full range of Miele appliances, Gaggenau fridge freezer, 2 x Fisher & Paykel draw dishwashers, and a utility area.

Leading through, there is a generous lounge with multi-fuel stove, solid wood flooring, a rear entrance hall with a second staircase, utility room and WC. Double French doors from the dining area open onto a large garden room, which give access to a fabulous indoor swimming pool with shower room.

Upstairs holds 6 bedrooms including a large master with ensuite bathroom, separate WC and walk-in dressing room and a guest bedroom with ensuite bathroom. There are two further shower rooms and a spacious office with feature vaulted ceiling.

Outside offers a block paved driveway with electric gates, detached garages and carport with electric remote doors and feature clock tower which could be used for a variety of purposes. The largest of the garages is suitable for a motorhome. There are delightful formal landscaped gardens and a wide gravel driveway leading to the enclosed grass paddock of 1 acre approx. There is also an orchard with 12 mature fruit trees including Apples, Pears, and Cherry.

Floor Plans

Property Location

Marketed by Preston Baker - Selby


By submitting this form, you accept our Terms of Use.

Disclaimer Property descriptions and related information displayed on this page are marketing materials provided by Preston Baker - Selby. estateagents365.uk does not warrant or accept any responsibility for the accuracy or completeness of the property descriptions or related information provided here and they do not constitute property particulars. Please contact Preston Baker - Selby for full details and further information.