Detached house for sale in Retford DN22, 5 Bedroom

Retford, Retford, UK

Quick Summary

Property Type:
Detached house
Status:
For sale
Price
£ 850,000
Beds:
5
Baths:
3
Recepts:
3
County
Nottinghamshire
Town
Retford
Outcode
DN22
Location
London Road, Retford, Notts. DN22
Marketed By:
Brown & Co
Posted
2018-10-25
DN22 Rating:





More Info?
Please contact Brown & Co on 01777 568963 or Request Details

Property Description

Ryecroft, london road, retford, nottinghamshire DN22 7HZ


Description


Ryecroft is a stunning detached period residence successfully combining retained and enhanced character attributes with a quality specification and flowing accommodation delivering truly superb family living space.

In the early 1940s, records show that Ryecroft was once home to Randolph Frederick Edward Spencer-Churchill mbe, son of The Right Honourable Sir Winston Churchill, the late great wartime leader. It is said that Sir Winston Churchill stayed over at Ryecroft whilst visiting his son.

Enjoying a prime location with frontage to London Road, the house sits beautifully in the middle of its extensive mature grounds in all 1.22 acres or thereabouts. There are northern and southern driveways facilitating excellent vehicle circulation and giving access to the substantial triple garage block.

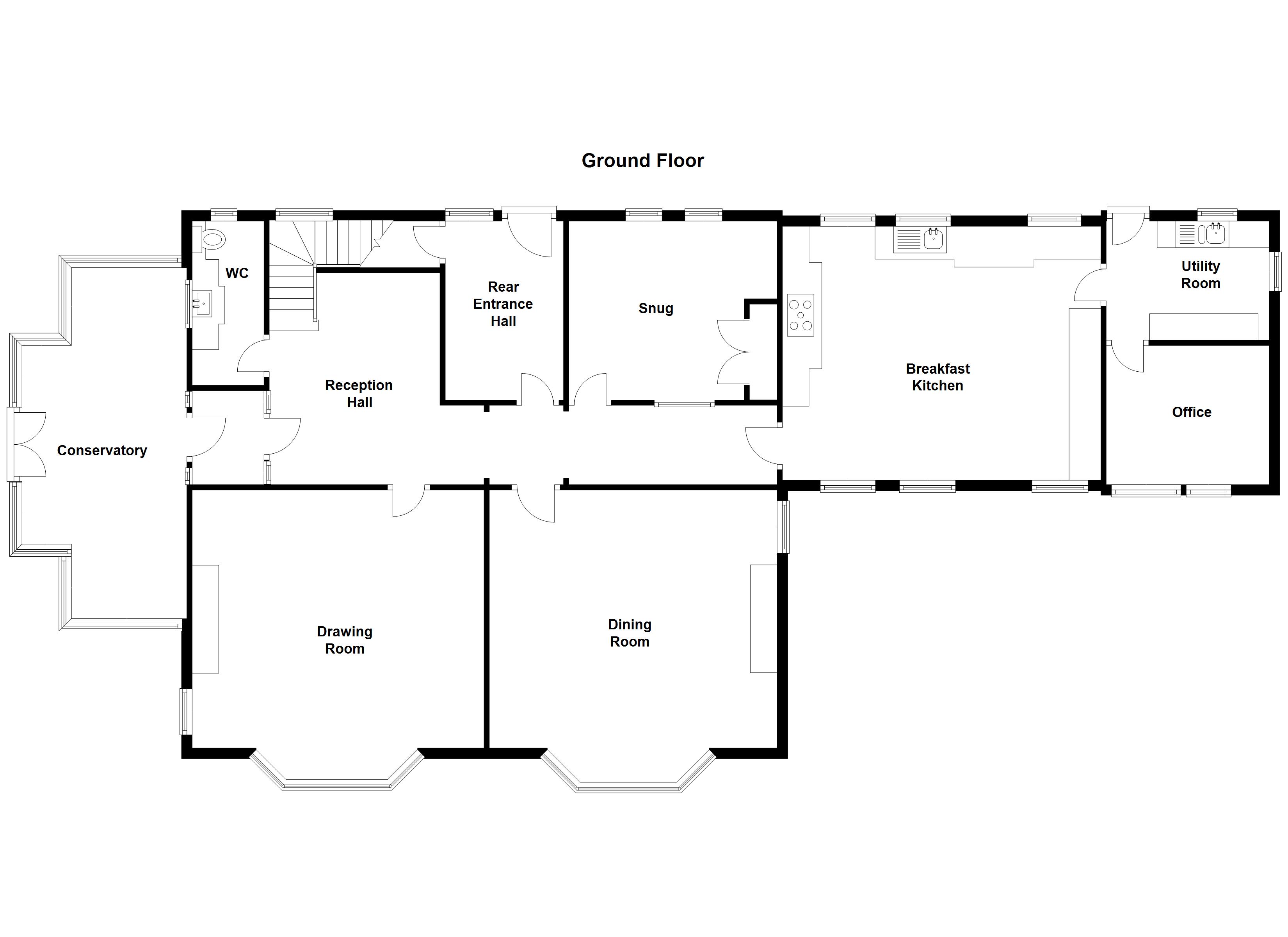
The accommodation commences with a bespoke conservatory protecting the original entrance vestibule which in turn opens to a magnificent reception hall being generously proportioned; it has retained original tiled flooring and substantial staircase ascending to the first floor and beyond.

The drawing room has a large bay window overlooking the front grounds and focal fireplace. A separate dining room of equal proportions lies adjacent, permitting formal entertaining whilst a cosy snug provides less formal space in which to relax. The breakfasting kitchen has a range of bespoke ivory cream units and comprehensive appliance package. Ancillary accommodation includes office, utility, rear hall, cloakroom with wc and cellar.

At first floor level there are two superb bedrooms, the master suite having a sizeable and well appointed en-suite bathroom. The house bathroom is equally well specified and there is a most useful laundry room.

At second floor level there are three further bedrooms, all with walk in wardrobe facilities together with a separate shower room.

With deep skirtings, heavy weight internal doors and corniced ceilings Ryecroft exudes the charm of its period yet the high calibre specification and modern standards of appointment create a homely feel to be enjoyed by all the family.


Location


Ryecroft enjoys frontage to London Road, a prime residential area being the towns southern arterial approach route and is protected by Conservation Area status at this point.

The town centre and its full range of residential amenities are within comfortable reach. Lying on the south side of the town means Ryecroft is ideally positioned for accessing the areas excellent transport links. The A1M lies to the west from which the wider motorway network is available and the towns rail station puts London's Kings Cross within approx. 1 hour 30 minutes. Air travel is convenient via international airports of Doncaster Sheffield and Nottingham East Midlands. Leisure amenities and educational facilities (both state and independent) are well catered for.


Directions


Leaving Retford town centre market square via Grove Street, turn right at the traffic lights onto Arlington Way. Proceed over the pedestrian lights and at the next set of lights turn left onto London Road, proceeding south. After passing the Elms Hotel, Whinney Moor Lane and a service road, Ryecroft will be found on the right hand side practically opposite the junction with Grove Coach Road.


Accommodation


Conservatory 20'8" x 9'8" max (6.30m x 2.94m max) attractive design complementing the house and providing a fine entrance. Double doors, tiled flooring, stone steps to

entrance vestibule with original substantial oak doorway in stone mullion surround, original tiled flooring, corniced ceiling and stained glazed inner door to

reception hall generously proportioned with period accents, a substantial half turn staircase ascending to galleried landing over with decorative balustrade, corniced ceiling with ceiling rose, original tiled flooring, hallway with inner arches, radiators.

Cloakroom range of solid granite topped vanity units hosting basin and concealing cistern to WC, corniced ceiling, dado rail, radiator.

Drawing room 18'10" to 15'10" x 18'0" (5.74m to 4.84 x 5.48m) including splay bay window overlooking front grounds, measured to rear of chimney breast with substantial high relief mahogany fireplace with decorative cast iron inset, open living flame gas fire and polished granite hearth, decorative moulded corniced ceiling with complementing frieze above picture rails, radiators.

Dining room 18'10" to 15'10" x 18'0" (5.74m to 4.84m x 5.48m) with splay bay window overlooking front grounds, additional side aspect window, Minster stone style fireplace with coordinating hearth, decorative corniced ceiling with complementing frieze over picture rails, radiators.

Snug 11'0" to 13'0" x 11'2" (3.35m to 3.95m x 3.40m) with useful fitted storage cupboards, corniced ceiling, dado rail, rear aspect window, radiator.

Breakfasting kitchen 19'8" x 15'8" (5.99m x 4.77m) comprehensively appointed with range of bespoke ivory cream fitments, base units surmounted by polished granite working surfaces, wall cupboards being corniced with accent lighting beneath. Substantial dresser unit to coordinate, inset sink unit. Complementing tiled flooring. Range of appliances including Neff halogen hob, concealed extractor, Neff double oven and further integrated appliances of larder fridge, separate fridge, freezer, dishwasher. Corniced ceiling, downlighters, dual aspect front and rear, radiators.

Office 10'0" x 8'7" (3.06m x 2.61m) corniced ceiling, front aspect window, radiator.

Utility room 10'0" x 7'5" (3.06m x 2.27m) with range of limed oak corniced fitments, base cupboards surmounted by granite effect working surfaces and hosting 1.5 sink unit. Tiled to half height around the room, dual aspect external door to rear grounds. Tiled flooring, plumbing for washing machine, radiator.

Rear entrance hall approached via steps and fine door with portico. Corniced ceiling, ceiling rose, tiled flooring, radiator and door off to

cellar with Worcester 24 cdi gas fired central heating boiler.


First floor


Galleried landing with substantial balustrade over stairwell and staircase continuing to second floor, corniced ceiling, ceiling rose and inner arch radiator.

Master bedroom 18'10" x 18'0" (5.74m x 5.48m) maximum into splay bay to front, traditional fireplace with cast iron insert, corniced ceiling, picture rails, radiators and off to

en-suite bathroom 16'5" x 13'0" (5.00m x 3.95m) luxuriously appointed with double ended slipper bath having freestanding Victorian style bath shower mixer, separate quadrant showering enclosure with overhead deluge shower and additional handset, solid granite topped vanity units hosting basin with coordinating granite topped further vanity unit, low suite wc, tiled around fittings to coordinate, corniced ceiling, separate door to landing aiding versatility, chrome towel warmer, radiator.

Bedroom two 18'10" x 18'0" (5.74m x 5.48m) maximum measured to inter-splay bay window to front, additional side aspect window, traditional marble fireplace with cast iron inset and polished granite hearth, corniced ceiling, ceiling rose, picture rails, radiator.

Laundry room excellent utility space with base cupboards, working surface, Worcester 28 cdi gas fired central heating boiler.

Bathroom with contemporary slipper bath having wall mounted over bath taps, quadrant showering enclosure with deluge and handset, pedestal washhand basin, low suite wc, half tiled in natural tones to coordinate, corniced ceiling, chrome towel warmer.


Second floor


Galleried landing with substantial balustrade over stairwell, corniced ceiling, dado rails, radiator.

Bedroom three 15'10" x 10'7" (4.84m x 3.22m) front aspect, access hatch to roof void, generous walk in wardrobe, radiator.

Bedroom four 15'10" x 14'8" to 10'7" (4.84m x 4.48m to 3.22m) front aspect, traditional basket grate and fireplace, two good walk in wardrobes, radiator.

Bedroom five 16'7" x 9'0" (5.05m x 2.73m) rear aspect, generous walk in wardrobe, radiator.

Shower room with square showering enclosure, range of vanity units hosting basin, wc with concealed cistern, access to eaves, half tiled to coordinate, radiator.


Outside


The property enjoys prime frontage to London Road with the house set well back and nicely positioned in the middle of its generous mature grounds in all extending to approximately 1.22 acres. For versatility there are two driveways flanking either side of the property, which provides excellent vehicular circulation and extensive parking.

The tree lined northern driveway terminates at the substantial garage block 35'0" x 20'0" (10.68m x 6.09m) providing triple garaging with three roller shutter doors, integral storage cupboard, light, power. Gardeners WC.

The front grounds are well screened with mature hedging, shrubbery border and a wealth of specimen trees. The garden is laid out in a formal manner with ornately shaped lawn around central bed, perimeter borders, box hedging and gravelled borders.

The rear grounds are ideal for alfresco entertaining with Indian sandstone paved patio and paths and lawned garden beyond. There is a privet hedge divide which opens onto a further expanse of lawned garden again featuring a variety of mature trees and orchard area.

General remarks and stipulations
Tenure and Possession: The Property is freehold and vacant possession will be given upon completion.
Council Tax: We are advised by Bassetlaw District Council that this property is in Band G.
Services: Please note we have not tested the services or any of the equipment or appliances in this property, accordingly we strongly advise prospective buyers to commission their own survey or service reports before finalising their offer to purchase.
Floorplans: The floorplans within these particulars are for identification purposes only, they are representational and are not to scale. Accuracy and proportions should be checked by prospective purchasers at the property.
Hours of Business: Monday to Friday 9am - 5.30pm, Saturday 9am – 1pm.
Viewing: Please contact the Retford office on .
Free Valuation: We would be happy to provide you with a free market appraisal of your own property should you wish to sell. Further information can be obtained from Brown & Co, Retford .
Agents Note: Intending buyers will be asked to produce original Identity Documentation and Proof of Address before Solicitors are instructed.
Financial Services: In order to ensure your move runs as smoothly as possible we can introduce you to Fiducia Comprehensive Financial Planning who offer a financial services team who specialise in residential and commercial property finance. Their expertise combined with the latest technology makes them best placed to advise on all your mortgage and insurance needs to ensure you get the right financial package for your new home.
Your home may be repossessed if you do not keep up repayments on your mortgage.
Surveys: We naturally hope that you purchase your next home through Brown & Co, but if you find a suitable property through another agent, our team of experienced Chartered Surveyors led locally by Jeremy Baguley mrics are able to carry out all types of survey work, including Valuations, RICS Homebuyers Reports and Building Surveys. For more information on our services please contact our Survey Team on .
These particulars were prepared in July 2018

Floor Plans

Property Location

Marketed by Brown & Co



By submitting this form, you accept our Terms of Use.

Disclaimer Property descriptions and related information displayed on this page are marketing materials provided by Brown & Co. estateagents365.uk does not warrant or accept any responsibility for the accuracy or completeness of the property descriptions or related information provided here and they do not constitute property particulars. Please contact Brown & Co for full details and further information.