Detached house for sale in Loughborough LE12, 4 Bedroom

Loughborough, Loughborough, UK

Quick Summary

Property Type:
Detached house
Status:
For sale
Price
£ 450,000
Beds:
4
Baths:
2
Recepts:
2
County
Leicestershire
Town
Loughborough
Outcode
LE12
Location
Loughborough Road, Quorn, Loughborough LE12
Marketed By:
Newton Fallowell - Loughborough
Posted
2024-04-09
LE12 Rating:





More Info?
Please contact Newton Fallowell - Loughborough on 01509 428963 or Request Details

Property Description

This period residence has a combined sale of both the property and the rear garden as a potential plot, vehicular access is possible via Farnham Street and neighbouring properties have constructed in their gardens at the same point. The plot of land is currently undergoing an application and it may well be that this is possible to purchase separate to the property depending on the outcome. As it stands the main residence was originally detached and now bedrooms one and two abut the neighbouring property whereby the property is broader at first floor than ground floor (see floor plans). The layout in brief comprises of porch with original floor tiles, hall with stairs down to the cellar, bay fronted lounge, separate sitting room, spacious kitchen diner, utility room/rear lobby and ground floor wet room. At first floor there are four bedrooms and as mentioned bedrooms one and two span over the alley way to the right. A two piece bathroom suite and separate wc complete the accommodation. Outside, to the front there is a low maintenance fore garden and at the rear there is the expansive garden which will be foreshortened and marked off where the plot is if the residence is being purchased separately. See site map for full indication of the grounds and property available. A rare opportunity, ideal for those seeking proximity and residence for a dependant. Viewing is recommended to appreciate the potential.

Accommodation

Multi paned glazed door with arched fixed panel above provide natural lighting and access to the porch.

Porch

The porch has multi coloured Minton tiled floor and exposed brick work, then a glazed internal door with fixed panel adjacent providing natural lighting and access to the hall.

Hall

The hall has the original archway and coving to the ceiling, stairs lead to the first floor whereby the balustrade has been boxed in. Neutral wall decoration, double electrical socket, telephone point, side elevation window, wall mounted security alarm panel and an understairs storage cupboard which is provided with light and shelving. Door with stairs down to the cellar.

Cellar (5.66m max x 3.71m (18'7 max x 12'2))

Discreetly housing the electric meter and having a strip lamp and double electrical socket.

Lounge (4.75m max x 4.17m (15'7 max x 13'8))

The lounge is well proportioned and broad in its extent having an attractive timber effect single glazed bay sash window with secondary double glazing fitted. The focal point of the room is an open fire on raised tiled hearth with matching glazed tiled back and timber surround. Two double radiators, TV aerial connection, multiple electrical sockets and glazed double doors lead through to the sitting room.

Sitting Room (3.63m x 3.66m (11'11 x 12'))

The sitting room has a single glazed sash window with views out towards the paving adjacent to the kitchen. Wall mounted gas fire, double radiator with temperature control, original coved ceiling.

Kitchen Diner (5.23m x 3.00m (17'2 x 9'10 ))

The kitchen diner fast approaches 18ft and has a side elevation timber framed sash window to the dining area, also here is the recently installed Worcester Bosch combination gas central heating boiler. To the kitchen section there is a further side elevation window, stainless steel sink unit with mixer tap over and double drainer. Gas cooker point and a range of base and eye level units. Radiator. Door through to the utility room.

Utility Room (2.95m x 1.98m (9'8 x 6'6))

The utility provides excellent further amenity to the property and has a further base and eye level cupboard for storage in a modern design with cream doors and brushed metal handles. Timber effect work surface, Belfast sink unit with corner mounted mixer tap with extendable nozzle. Double glazed side access door and door through to the wet room.

Wet Room

The wet room comprises of three elements consisting of a bracketed wash hand basin with easily controlled lever taps, low level wc and a shower area with Mira Advance shower over and a floor drain. The room is light and bright with two rear elevation and one side elevation double glazed windows with obscure panels. Dual voltage electric shaver point, wall mounted electric heater supplements the double radiator which is equipped with temperature control.

First Floor Landing

Stairs lead from the hall to the first floor landing with boxed in balustrade, storage cupboard and a glazed loft hatch providing access to the roof space.

Bedroom One (4.72m x 3.63m (15'6 x 11'11))

The main bedroom spans over the side alleyway and is one of only two parts of the house that is attached to the neighbouring property along with bedroom two. The main bedroom has a rear elevation timber framed single glazed sash window, neutral wall decoration, radiator with temperature control and multiple electrical sockets.

Bedroom Two (3.96mx 3.61m (13'x 11'10))

The second double bedroom has a feature cast iron grate with original glazed tiled back and surround and mantle. The front elevation window has secondary double glazing fitted, radiator with temperature control and cupboard adjacent to the chimney breast.

Bedroom Three (3.28m x 2.97m (10'9 x 9'9))

The third double bedroom has an en-suite shower cubicle along with wash hand basin adjacent and cupboard beneath. Rear elevation timber framed single glazed sash window with a view over the rear garden and radiator with temperature control.

Bedroom Four (3.10m x 2.95m (10'2 x 9'8))

The fourth double bedroom has a front elevation timber framed sash window with secondary double glazing fitted and has a built in cupboard adjacent to the chimney breast with single radiator with thermostatic control.

Main Bathroom

The main bathroom comprises of two elements consisting of a spa bath with electric shower over and hydraulic seat for ease of entry and a bracketed wash hand basin. Ladder design centrally heated towel rail and side elevation sash window.

Wc

Adjacent to the main bathroom the wc has its own side elevation window, a high cistern wc and is partially tiled with four glazed panels above the door to the ceiling which is partially vaulted.

Outside

To the front of the property a path leads to the front entrance door and adjacent to this is a mainly lawned fore garden, low level walling fronts the pavement. To the right hand elevation there is recessed archway and gate to the side alley way that leads to the rear. At the rear there is the afore mentioned paving adjacent to the kitchen diner then beyond this is a section of lawn with then an area set aside for horticulture, mature tree and greenhouse. The garden is fully enclosed by timber fencing and backs on to Farnham Street. The lower part of the garden is in the process of being established as a building plot and should this be possible the lower end will be annexed, there is a possibility of the house and garden being sold independently of the building plot.

Potential Plot

To Find The Property

From Loughborough town centre proceed along the A6 Leicester Road where at the Quorn roundabout you should continue straight on along Loughborough Road where the property is situated on the left hand side.

Services, Tenure And Council Tax

All mains services are are available and connected to the property which is gas centrally heated. The property is freehold with vacant possession upon completion. Charnwood Borough Council - Tax Band D

Disclaimer

We endeavour to make our sales particulars accurate and reliable, however, they do not constitute or form part of an offer or any contract and none is to be relied upon as statements of representation or fact. Any services, systems and appliances listed in this specification have not been tested by us and no guarantee as to their operating ability or efficiency is given. All measurements have been taken as a guide to prospective buyers only, and are not precise. If you require clarification or further information on any points, please contact us, especially if you are travelling some distance to view. Fixtures and fittings other than those mentioned are to be agreed with the seller by separate negotiation.

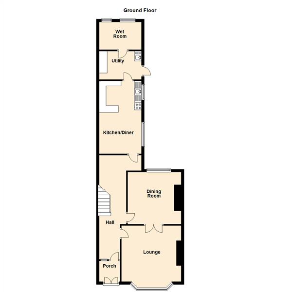
Floor Plans

Property Location

Marketed by Newton Fallowell - Loughborough



By submitting this form, you accept our Terms of Use.

Disclaimer Property descriptions and related information displayed on this page are marketing materials provided by Newton Fallowell - Loughborough. estateagents365.uk does not warrant or accept any responsibility for the accuracy or completeness of the property descriptions or related information provided here and they do not constitute property particulars. Please contact Newton Fallowell - Loughborough for full details and further information.