Detached house for sale in Dunbar EH42, 4 Bedroom

Dunbar, Dunbar, UK

Quick Summary

Property Type:
Detached house
Status:
For sale
Price
£ 390,000
Beds:
4
County
East Lothian
Town
Dunbar
Outcode
EH42
Location
"The Bryce" at Edinburgh Road, Belhaven, Dunbar EH42
Marketed By:
Cala Homes - Castle Bay
Posted
2024-04-20
EH42 Rating:





More Info?
Please contact Cala Homes - Castle Bay on 01368 478967 or Request Details

Property Description

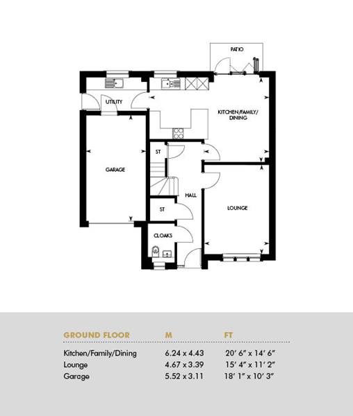
The charming Bryce features four spacious bedrooms - two of which are en suite – and a family bathroom with separate shower enclosure. Downstairs, an elegant lounge to the front of the home and the open plan kitchen and family/dining area are both accessible from the inviting entrance hall. A downstairs cloakroom, utility room and integral garage cater for all practicalities.

Overall size - 1,594 sq ft

You can take a virtual tour of this home

About Castle Bay


More space in a beautiful place

Located within lush greenery to the west of Dunbar, and just a few minutes walk from Belhaven Bay Beach, it's no wonder homes here have proven so popular, with our first phase now fully sold and 3 homes sold in the last 3 weeks alone.?

For those moving to?The area from further afield, Castle Bay offers all the sought-after coastal characteristics that make East Lothian so appealing, yet still in easy reach of the capital. While for those already local to the area, the contemporary and spacious interiors of our 4 & 5 bedroom homes, coupled with Castle Bay?S excellent location, ensure that your forever family home is closer than you think.?

Indeed, with our handy Part Exchange service*, along with other customisable incentives, trading up to more space, choice and style with CALA is within reach; all you have to do is ask.?





Discover homes designed around you

All homes here are wonderfully bright and feature flexible interiors and CALA?S high specification as standard throughout; meaning your dream family home can easily be found at Castle Bay.?

All from our exclusive Light and Space Collection, the homes at Castle Bay allow natural light to bathe every room and hallway, with high ceilings and each room purposely designed for modern family living;from spacious bedrooms, private studies to open plan kitchen and dining/family areas. While elegant glass bi-fold doors connecting to generous patios and gardens beyond ensure family life is easy to enjoy both inside and out.?

And with our two stunning showhomes, the 5 bedroom Macrae and 4 bedroom Elliot, available to view daily at Castle Bay, now is the time to visit and discover the dream home for you.



Be moved?


Now for summer


Imagine enjoying the long summer evenings ahead this year, settled in your dream CALA home. Whether you are looking forward to watching the kids at play in the garden, going for relaxing family walks on the beach, or dining al fresco with friends at the weekend, a summer of bliss awaits when you reserve with CALA today.?

However, with only a limited number of homes remaining for a Summer move at Castle Bay, Dunbar, on the picturesque East Lothian coast you need to act now; and imagine no longer.?

CALA can make it possible?

What?S more, to help get you all set for a summer move, CALA is offering up to full LBTT* or our handy Part Exchange Service* on a selection of our homes here; ensuring that moving by Summer is easier than you think.?

In addition, selected homes are also available with a ?10,000 rear garden landscaping package*, to ensure that you can enjoy not only inside our spacious homes, but outside to the full.?

So prepare to be moved by sun, sea and a range of tailored incentives to a whole new and exciting CALA lifestyle.?









*T&Cs Apply

Opening Hours


Customer Reception & Showhomes are open daily from 11am to 5.30pm.

Floor Plans

Property Location

Marketed by Cala Homes - Castle Bay



By submitting this form, you accept our Terms of Use.

Disclaimer Property descriptions and related information displayed on this page are marketing materials provided by Cala Homes - Castle Bay. estateagents365.uk does not warrant or accept any responsibility for the accuracy or completeness of the property descriptions or related information provided here and they do not constitute property particulars. Please contact Cala Homes - Castle Bay for full details and further information.