Detached house for sale in Bristol BS40, 6 Bedroom

Bristol, Bristol, UK

Quick Summary

Property Type:
Detached house
Status:
For sale
Price
£ 1,250,000
Beds:
6
Baths:
2
County
Bristol
Town
Bristol
Outcode
BS40
Location
Old Hill, Winford, Bristol, . BS40
Marketed By:
Chappell & Matthews - Bristol Sales
Posted
2024-04-29
BS40 Rating:





More Info?
Please contact Chappell & Matthews - Bristol Sales on 0117 295 7348 or Request Details

Property Description

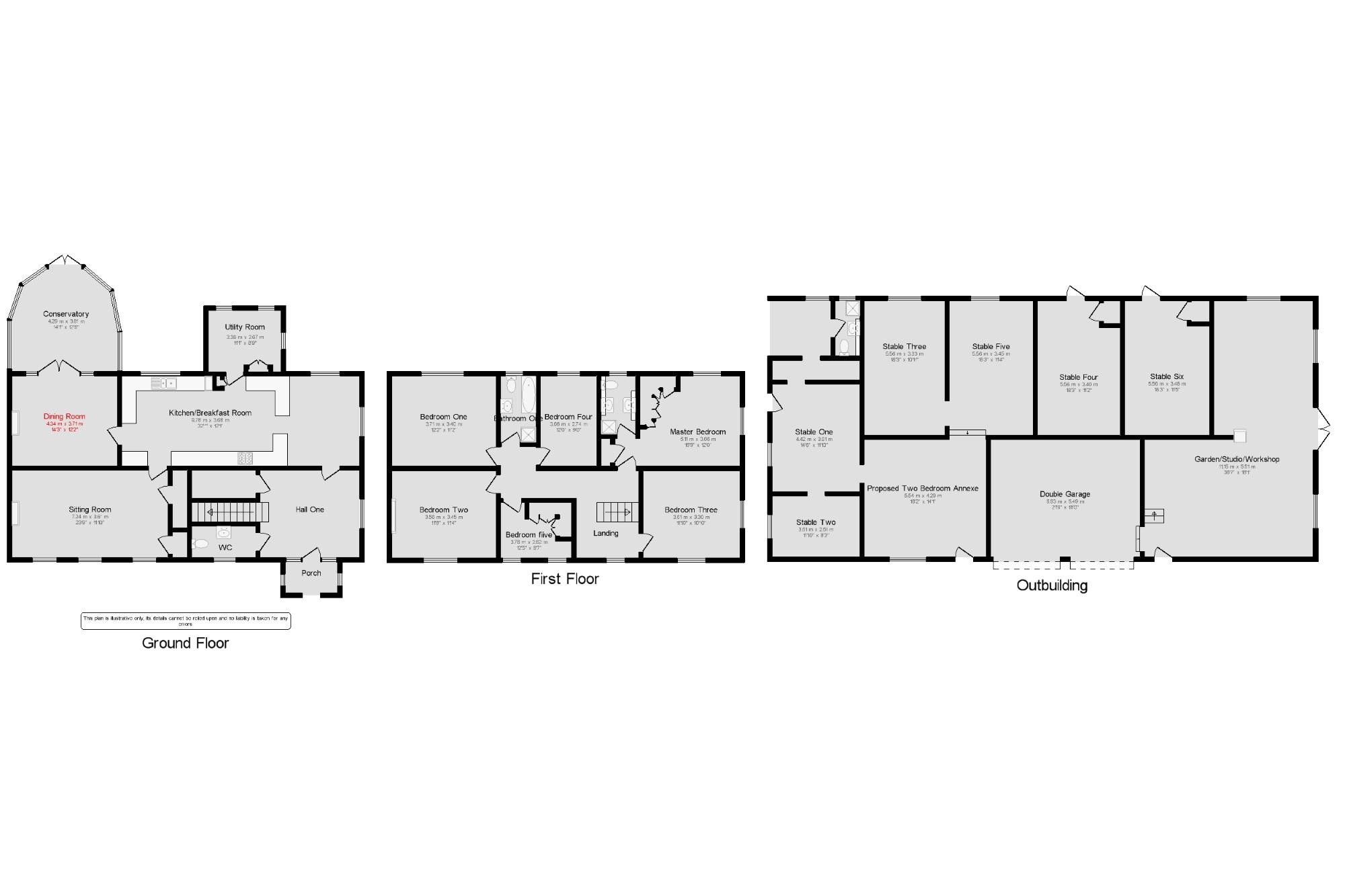
Set in its own grounds of approximately 8 acres this impressive detached residence makes an impressive family home. It also offers excellent commercial possibilities such as a guest house and airport parking (subject to necessary applications and consents) with Bristol Airport being in close proximity. A campsite/caravan club also once operated within the grounds (Still with water and hook points). Set behind private walling and accessed via wrought iron gates the main house comprises of 6 bedrooms, 2 bathrooms, 32ft kitchen/breakfast room, lounge, dining room and conservatory. The outbuilding currently comprises of a 36ft workshop, double garage, 2 stables and a partially converted 2/3 bedroom annexe. The grounds are superb with a wealth a trees and shrubs which have been the pride and joy of the current owners. The grounds have many different uses with a mixture of gardens, open areas and an arboretum.

Approaching 8 Acres
Commercial Possibilities
Large Outbuilding
Detached Residence
6 Bedrooms

Floor Plans

Property Location

Marketed by Chappell & Matthews - Bristol Sales


By submitting this form, you accept our Terms of Use.

Disclaimer Property descriptions and related information displayed on this page are marketing materials provided by Chappell & Matthews - Bristol Sales. estateagents365.uk does not warrant or accept any responsibility for the accuracy or completeness of the property descriptions or related information provided here and they do not constitute property particulars. Please contact Chappell & Matthews - Bristol Sales for full details and further information.