Detached house for sale in Bristol BS16, 4 Bedroom

Bristol, Bristol, UK

Quick Summary

Property Type:
Detached house
Status:
For sale
Price
£ 525,000
Beds:
4
County
Bristol
Town
Bristol
Outcode
BS16
Location
Long Wood Meadows, Cheswick Village, Bristol BS16
Marketed By:
M Coleman Estate Agents
Posted
2018-11-16
BS16 Rating:





More Info?
Please contact M Coleman Estate Agents on 0117 295 9695 or Request Details

Property Description

Long Wood Meadows is a desirable no through road and executive homes of this calibre seldom become available. Offered For Sale with no onward chain, M Coleman are delighted to bring to the market this Four Bedroom Redrow residence in a most enviable position overlooking open woodland.
Upon entering the home, you are greeted with a welcoming entrance hall that gives access to a light and airy sitting room with windows to both the front and side elevations; a contemporary electric fire within a natural stone effect hearth and surround lends a warm and homely feel. The open plan kitchen/dining room and family room dominate the ground floor with dual aspect windows to the front and rear and patio doors to the rear garden.
With perfectly balanced proportions and following simple clean lines the ‘Moores’ fitted kitchen offers a range of fitted units with high gloss wood effect doors that gives the kitchen a traditional twist. Smeg integrated appliances include a gas hob, oven, microwave, extractor fan and dishwasher with space for tall fridge-freezer. The utility room is fitted with matching wall and base units, plumbing for a washing machine, space for tumble-dryer and wall mounted gas fired boiler; there is also a ground floor cloakroom accessed from the hallway.
You will be pleasantly surprised at the size of the first floor accommodation with the master bedroom offering fitted wardrobes and an en-suite shower room. There are a further three bedrooms, all of good proportions, the two larger of the rooms benefitting fitted wardrobes. The bright family bathroom has a contemporary white suite with a shower over the bath.
The rear garden is fully enclosed by attractive brick boundary walls and timber lap fencing. Predominantly laid to lawn with borders edged in sleepers and thoughtfully planted with an array of flowers and shrubs; there is also a paved patio which is the perfect spot for entertaining friends and family in the summer months. The front of the property offers off street parking and a single garage located at the rear of the property.
This is the perfect home for families or professionals wanting ease of access to the University of the West of England, Ministry of Defence, Avon Ring Road and thus the M32, M4, M5 and Parkway Station as well as proximity to the Abbeywood Retail Park and all the associated amenities. A viewing is essential to appreciate this delightful home.

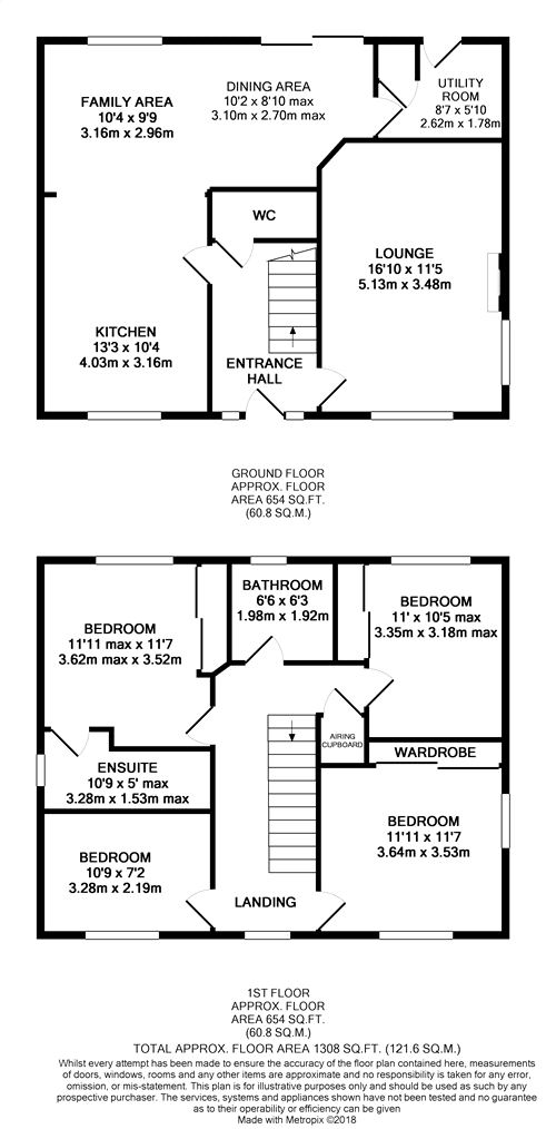
Ground Floor

Entrance

Hallway

Kitchen

Dining Room/Family Room

Ulitity

Cloakroom

Lounge

First Floor

Landing

Master Bedroom

En-Suite

Bedroom Two

Bedroom Three

Bedroom Four

Bathroom

Outside

Front Garden

Rear Garden

Garage


Floor Plans

Property Location

Marketed by M Coleman Estate Agents



By submitting this form, you accept our Terms of Use.

Disclaimer Property descriptions and related information displayed on this page are marketing materials provided by M Coleman Estate Agents. estateagents365.uk does not warrant or accept any responsibility for the accuracy or completeness of the property descriptions or related information provided here and they do not constitute property particulars. Please contact M Coleman Estate Agents for full details and further information.