Detached house for sale in Beverley HU17, 2 Bedroom

Beverley, Beverley, UK

Quick Summary

Property Type:
Detached house
Status:
For sale
Price
£ 220,000
Beds:
2
Baths:
1
Recepts:
3
County
East Riding of Yorkshire
Town
Beverley
Outcode
HU17
Location
Norwood Grove, Beverley HU17
Marketed By:
YOPA
Posted
2018-11-01
HU17 Rating:





More Info?
Please contact YOPA on 01322 584475 or Request Details

Property Description



EPC Band: F

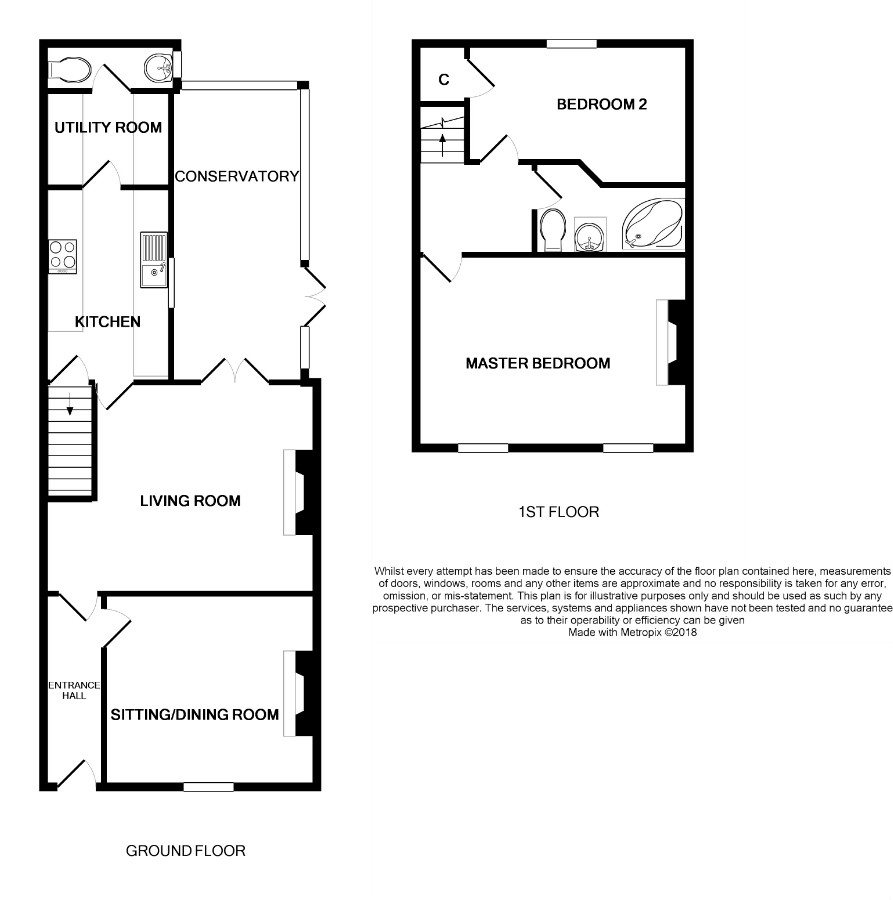
This extended individual period detached property located just off Norwood within a short walking distance to the town centre with its vast array of shopping facilities. The property offers deceptive ground floor accommodation and briefly comprises entrance hall, sitting/dining room, living room, fitted kitchen, utility, downstairs toilet and conservatory. To the first floor are two bedrooms the master could easily be converted into two bedrooms and a family bathroom. Outside a private south-west facing rear garden and a large garage measuring 16’5 x 16’2 access to which is gained via Grove Park. The property has gas central heating and double glazing.

Ground floor


Entrance hall


With laminate flooring and radiator.

Sitting/dining room 12’0’’(3.65m) x 10’11’’(3.32m)

Features a contemporary electric fire, ceiling cornice, picture rail, radiator and laminate flooring.

Living room 11’11’’(3.63m) x 13’11’’ plus recess(4.24m)

A feature brick chimney breast with timber mantel beam with inset multi-fuel stove, laminate flooring, coving and two radiators with covers. French doors open to the

conservatory 16’11’’(5.15m) x 6’4’’(1.93m)

With french doors opening into the garden, laminate flooring and radiator.

Kitchen 11’1’’(3.37m) x 7’2’’(2.18m)

With a range of fitted wall and base cabinets in a shaker style finish with beech effect worktops incorporating one and a half ceramic sink, four ring hob with cooker hood above, electric oven, plumbing for dishwasher, ceramic tiled floor and radiator.

Utility room 7’2’’(2.18m) x 5’5’’(1.65m)

With a range of fitted base and wall cabinets with fitted worktop, plumbing for automatic washing machine and space for white goods. Wall mounted Worcester Bosch gas central heating boiler, ceramic tiled floor and radiator.

Downstairs toilet

With low level W.C, wash basin, tiled walls and floor. Heated towel radiator.

First floor

landing

With access to loft space and radiator.

Master bedroom 15’10’’ (4.83m) x 11’0’’(3.35m)

A spacious bedroom which could be made into two if required. Attractive period fireplace and two radiators.

Bedroom two 12’9’’(3.89m) x 7’7’’max (2.31m)

With period fireplace and fire surround, built in cupboard and radiator.

Bathroom

Comprising a corner bath with plumbed shower above, vanity wash hand basin and low level W.C. Tiled walls and heated towel radiator.

Outside

The garden to the rear of the property a south-westerly facing aspect in a low maintenance theme with well stocked borders with wall and fencing to the perimeters.

Detached garage 5.0m x 4.93m (16'5" x 16'2")

A large garage with remote up and over doors and personnel side door. The garage is accessed via Grove Park.

Floor Plans

Property Location

Marketed by YOPA



By submitting this form, you accept our Terms of Use.

Disclaimer Property descriptions and related information displayed on this page are marketing materials provided by YOPA. estateagents365.uk does not warrant or accept any responsibility for the accuracy or completeness of the property descriptions or related information provided here and they do not constitute property particulars. Please contact YOPA for full details and further information.