Bungalow for sale in Perth PH2, 4 Bedroom

Perth, Perth, UK

Quick Summary

Property Type:
Bungalow
Status:
For sale
Price
£ 255,000
Beds:
4
Baths:
2
Recepts:
2
County
Perth & Kinross
Town
Perth
Outcode
PH2
Location
Abbey Lane, Errol, Perthshire PH2
Marketed By:
Clyde Property, Perth
Posted
2024-05-09
PH2 Rating:





More Info?
Please contact Clyde Property, Perth on 01738 301958 or Request Details

Property Description

HD Property Video Available. Presented in exceptional condition throughout and offering bright and generously proportioned accommodation is this attractive, four bedroom detached bungalow benefiting from oil-fired central heating, double glazed windows, off-street parking, single garage and fantastic private gardens.

Located midway between Dundee and Perth and close to the charming Perthshire village of Errol, the property forms part of the popular development of bungalows and villas built by Scotia Homes and enjoys some fine views and picturesque walks among the surrounding countryside.

Tastefully styled and decorated, this versatile home will appeal to a range of potential buyers including families or those looking to downsize to a property with generous, low maintenance accommodation located on one level.

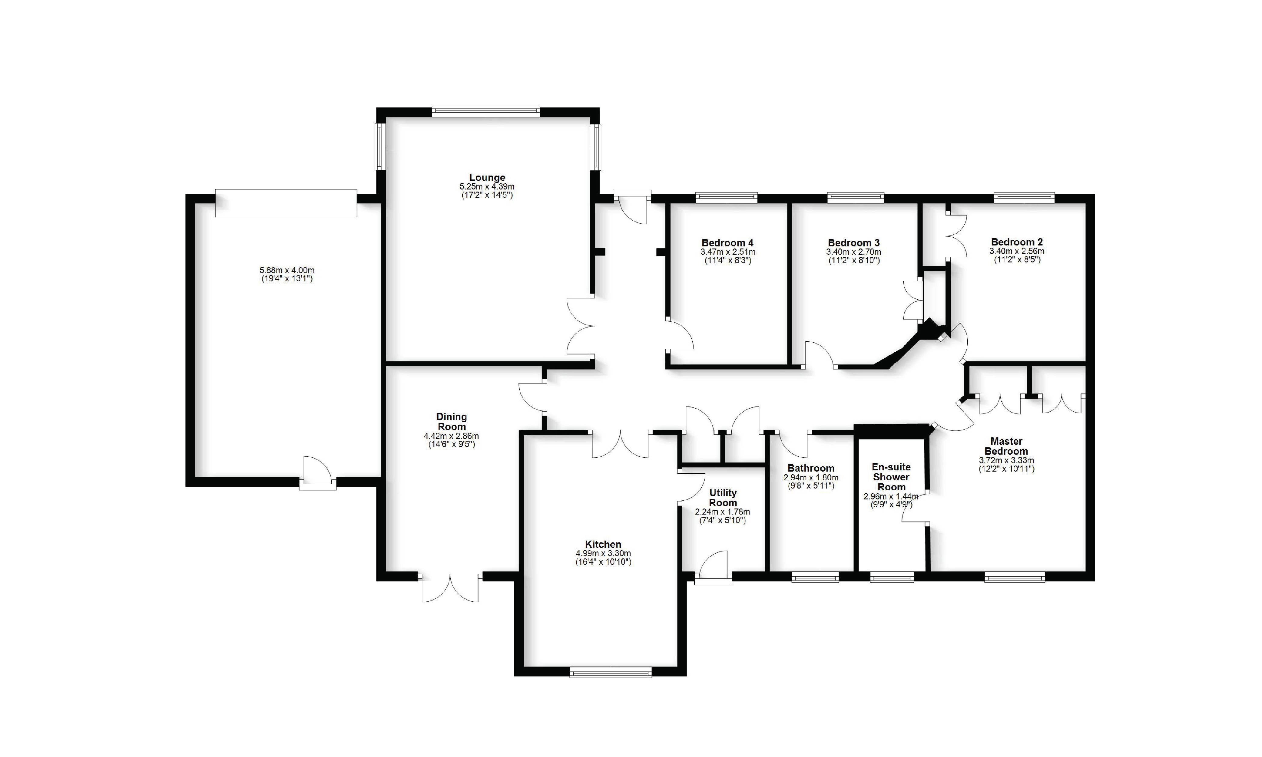
The property is entered into a welcoming reception hallway with doors leading off to all apartments and two storage cupboards. The elegantly styled sitting room provides plenty of floor space for a range of furniture and boasts a bright triple aspect. The impressive dining kitchen is fitted with a modern range of base and wall units with integrated appliances, provides space for dining table and chairs and also gives access to a useful utility room. Adjacent to the kitchen is a spacious dining room with double doors leading out into the rear garden which could also be used as an additional bedroom if required. The family bathroom is fitted with a fresh white suite comprising WC, wash-hand basin and bath with shower over. In addition, there is a spacious master bedroom with en-suite shower room, two double bedrooms and single bedroom which is currently being used as a home office.

To the front of the property is a driveway leading to the garage and a section of lawn bounded by low-level hedging. The fantastic gardens to the side and rear have been particularly well maintained and benefit from a high degree of privacy. EPC - C

Floor Plans

Property Location

Marketed by Clyde Property, Perth


By submitting this form, you accept our Terms of Use.

Disclaimer Property descriptions and related information displayed on this page are marketing materials provided by Clyde Property, Perth. estateagents365.uk does not warrant or accept any responsibility for the accuracy or completeness of the property descriptions or related information provided here and they do not constitute property particulars. Please contact Clyde Property, Perth for full details and further information.