Terraced house to rent in Manchester M11, 2 Bedroom

Manchester, Manchester, UK

Quick Summary

Property Type:
Terraced house
Status:
To rent
Price
£ 150
Beds:
2
County
Greater Manchester
Town
Manchester
Outcode
M11
Location
Midlothian Street, Clayton, Manchester, Lancahire M11
Marketed By:
Townhouse Lettings
Posted
2024-04-17
M11 Rating:





More Info?
Please contact Townhouse Lettings on 0161 937 6688 or Request Details

Property Description

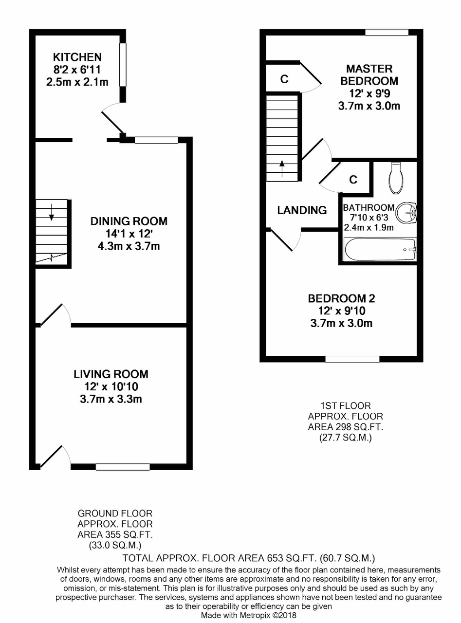
We are pleased to offer this stunning two bedroom home, just outside Manchester city centre, which has recently undergone a full renovation. This includes; a stylish new kitchen with appliances, a modern bathroom with shower over the bath, new gas central heating system, full electrical rewire, new double glazing and doors, new alarm and full internal and external decoration. The property briefly comprises, a large living room at the front, family dining room in the middle and the kitchen at the back on the ground floor. The first floor features a large master bedroom, a second bedroom and a bathroom.

The homes on this street (and a few others surrounding) have recently been refurbished both inside and out. There is a selection of 2 and 3 bedroomed terraced houses and each property has been designed with quality, comfort and energy-efficiency in mind. Manchester city centre is within easy reach; the tram is just a short walk away and there are also excellent bus links.

Our show home is now open and available to view immediately. Reservations are being taken for move ins from mid August.

One Manchester are working in partnership with Manchester City Council to regenerate this area. One Manchester are a not for profit organisation providing homes and community services in Manchester. One Manchester's aim is to create communities that are safe, happy and prosperous places to live. All money raised will go into funding other One Manchester projects. Homes will be available on longer term contracts if required, giving you both security and peace of mind. Homes available immediately.


Floor Plans

Property Location

Marketed by Townhouse Lettings


By submitting this form, you accept our Terms of Use.

Disclaimer Property descriptions and related information displayed on this page are marketing materials provided by Townhouse Lettings. estateagents365.uk does not warrant or accept any responsibility for the accuracy or completeness of the property descriptions or related information provided here and they do not constitute property particulars. Please contact Townhouse Lettings for full details and further information.