Terraced house to rent in Bath BA1, 4 Bedroom

Bath, Bath, UK

Quick Summary

Property Type:
Terraced house
Status:
To rent
Price
£ 369
Beds:
4
Baths:
2
Recepts:
2
County
Bath & N E Somerset
Town
Bath
Outcode
BA1
Location
Windsor Villas, Bath BA1
Marketed By:
Bath City Lets
Posted
2024-04-24
BA1 Rating:





More Info?
Please contact Bath City Lets on 01225 288112 or Request Details

Property Description

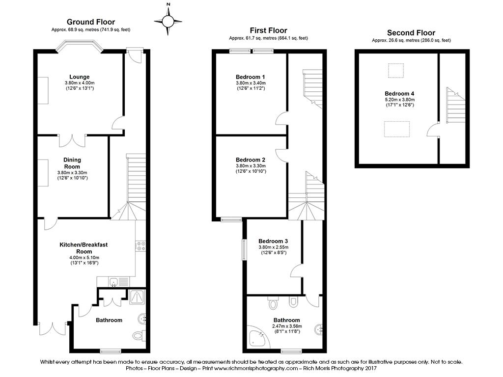
This fantastic 4 bedroom family home situated just off the Windsor Bridge, is conveniently located close to the Tesco Express & a few minutes' walk from Oldfield Park Railway Station. The accommodation begins with an entrance hall leading to a very bright and spacious living/dining room. At the rear of the property is a kitchen/breakfast room, this fantastic room features French doors leading to the rear garden. The ground floor is completed with a shower room. The first floor offers 3 double bedrooms and a family bathroom. The 4th bedroom is located on the second floor.
The rear garden is mainly laid to lawn with gated rear access, where 1 off street parking space is located. Situated directly behind the garden is a children's play park and easy access to the river for cyclists to Bristol and Bath. Super house in a great location.

Notice
All photographs and floor plans are provided for guidance only.

Floor Plans

Property Location

Marketed by Bath City Lets


By submitting this form, you accept our Terms of Use.

Disclaimer Property descriptions and related information displayed on this page are marketing materials provided by Bath City Lets. estateagents365.uk does not warrant or accept any responsibility for the accuracy or completeness of the property descriptions or related information provided here and they do not constitute property particulars. Please contact Bath City Lets for full details and further information.