Terraced house for sale in York YO24, 2 Bedroom

York, York, UK

Quick Summary

Property Type:
Terraced house
Status:
For sale
Price
£ 175,000
Beds:
2
County
North Yorkshire
Town
York
Outcode
YO24
Location
Gladstone Street, Acomb, York YO24
Marketed By:
Churchills Estate Agents
Posted
2024-05-14
YO24 Rating:





More Info?
Please contact Churchills Estate Agents on 01904 918984 or Request Details

Property Description

Good walk-into condition. This is a good example of a period mid terrace property which has been updated to a high standard and finished with a modern twist. The well proportioned living accommodation briefly comprises; entrance hall, lounge, dining room, kitchen, white three piece bathroom suite, first floor landing, two double bedrooms. To the outside is an enclosed rear courtyard with brick built outhouse and an attractive seating area. The property has the added benefit of gas central heating and UPVC double glazing. Gladstone Street is well served by local shops and amenities in Acomb Town Centre as well as having frequent bus links to York City Centre and York Railway Station, the A1237 outer ring-road is nearby which provides further links to A64 Leeds, A59 Harrogate and A19 Thirsk. This really should be considered and will appeal to investment purchasers and first time buyers. An internal inspection highly recommended.

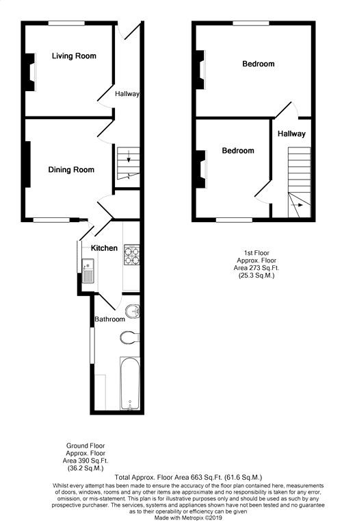
Ground Floor

Entrance Hall
Laminate floor covering.

Lounge
10' 3" x 9' 10" (3.12m x 3.00m)
UPVC window to front, coving to ceiling. Pine door.

Dining Room
UPVC window to rear, understairs storage cupboard, coving to ceiling. Laminate floor covering. Pine door.

Kitchen
7' 10" x 6' 7" (2.39m x 2.01m)
UPVC window to side, base and wall units incorperating roll top work surfaces, part tiled walls, single sink with mixer tap over, gas hob, electric oven, plumbing for automatic washing machine. Pine door.

First Floor

Landing
Stairs to first floor landing. Coving to ceiling.

Bedroom 1
UPVC window to front, central fireplace, coving to ceiling. Pine door.

Bedroom 2
UPVC window to rear, central fireplace, coving to ceiling. Pine door.

Bathroom
UPVC window to side, panelled bath with shower over, pedestal wash basin, low level W.C., part tiled walls, central heating radiator. Pine door.

Outside

Courtyard
To the rear is a fully enclosed courtyard with a brick built outhouse and an attractive seating area.



EPC


Floor Plans

Property Location

Marketed by Churchills Estate Agents


By submitting this form, you accept our Terms of Use.

Disclaimer Property descriptions and related information displayed on this page are marketing materials provided by Churchills Estate Agents. estateagents365.uk does not warrant or accept any responsibility for the accuracy or completeness of the property descriptions or related information provided here and they do not constitute property particulars. Please contact Churchills Estate Agents for full details and further information.