Terraced house for sale in Walsall WS6, 2 Bedroom

Walsall, Walsall, UK

Quick Summary

Property Type:
Terraced house
Status:
For sale
Price
£ 120,000
Beds:
2
Baths:
1
Recepts:
2
County
West Midlands
Town
Walsall
Outcode
WS6
Location
Station Street, Cheslyn Hay, Walsall WS6
Marketed By:
Reeds Rains
Posted
2018-09-09
WS6 Rating:





More Info?
Please contact Reeds Rains on 01543 439087 or Request Details

Property Description



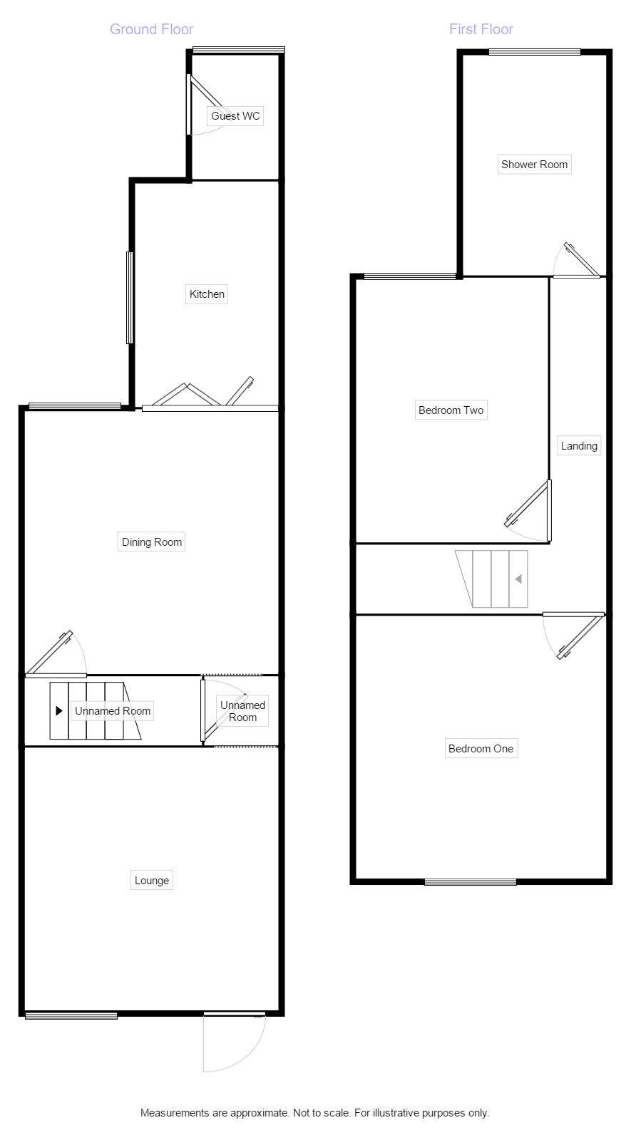
*** refitted bathroom *** new double glazing *** refitted guest WC *** village location *** two double bedrooms *** generous sized rear garden *** Reeds Rains offer for sale this much improved two bedroom traditional mid terrace property located in the desirable village of Cheslyn Hay being close to local shops, good schools and all major transport links. Ground floor briefly comprises: Lounge, dining room, galled kitchen, refitted guest WC and half cellar. First floor briefly comprises: Two double bedrooms both with built in wardrobes and refitted shower room. Benefiting from central heating and double glazed windows throughout the property. Also benefiting from a generous sized rear garden. Call for viewing arrangements. EPC Grade E.

Lounge (3.73m x 3.61m)

Window over looking the front of the property, dado rail to the walls, wooden strip flooring and a feature brick fireplace with brick hearth.

Dining Room (3.73m x 3.63m)

Window over looking the rear of the property, coving to the ceiling, dado rail to the walls, carpeted flooring and a feature fireplace with slate hearth. Staircase leading up to the first floor and stairs leading down to half cellar.

Kitchen (3.18m x 2.11m)

Galley kitchen with window over looking the side of the property, partly tiled walls and laminate flooring. A range of wall mounted cupboards and base units with work surfaces incorporating a stainless steel sink and drainer unit with mixer tap. Central heating boiler. Space for cooker, fridge freezer and washing machine.

Guest WC (1.78m x 1.32m)

Frosted window to the rear, laminate flooring and white two piece suite. Rear entrance door.

Landing

Carpeted floor and access to a part boarded and insulated loft.

Bedroom 1 (3.73m x 3.61m)

Double bedroom over looking the front of the property, coving to the ceiling, dado rail to the walls, carpeted floor and two built in wardrobes.

Bedroom 2 (0.66m x 2.74m)

Double bedroom over looking the rear of the property, carpeted floor and built in wardrobe with loft access.

Shower Room (3.15m x 2.11m)

Frosted window to the rear, partly tiled walls and wooden strip flooring. White three piece suite.

External Rear

Enclosed paved court yard with brick built out buildings with gated access leading to rear right of way then leading to enclosed generous sized garden being sectioned into two with paving and mainly laid to lawn with mature shrubs.

Important note to purchasers:

We endeavour to make our sales particulars accurate and reliable, however, they do not constitute or form part of an offer or any contract and none is to be relied upon as statements of representation or fact. Any services, systems and appliances listed in this specification have not been tested by us and no guarantee as to their operating ability or efficiency is given. All measurements have been taken as a guide to prospective buyers only, and are not precise. Please be advised that some of the particulars may be awaiting vendor approval. If you require clarification or further information on any points, please contact us, especially if you are traveling some distance to view. Fixtures and fittings other than those mentioned are to be agreed with the seller.

/8

Floor Plans

Property Location

Marketed by Reeds Rains



By submitting this form, you accept our Terms of Use.

Disclaimer Property descriptions and related information displayed on this page are marketing materials provided by Reeds Rains. estateagents365.uk does not warrant or accept any responsibility for the accuracy or completeness of the property descriptions or related information provided here and they do not constitute property particulars. Please contact Reeds Rains for full details and further information.