Terraced house for sale in Todmorden OL14, 2 Bedroom

Todmorden, Todmorden, UK

Quick Summary

Property Type:
Terraced house
Status:
For sale
Price
£ 130,000
Beds:
2
Baths:
1
Recepts:
1
County
West Yorkshire
Town
Todmorden
Outcode
OL14
Location
Halifax Road, Todmorden OL14
Marketed By:
Reeds Rains
Posted
2024-05-13
OL14 Rating:





More Info?
Please contact Reeds Rains on 01706 408692 or Request Details

Property Description



Beautifully presented mid terrace in the popular area of Eastwood located between Hebden Bridge and Todmorden with rear garden, newly fitted kitchen and bathroom offered for sale with no onward chain. Viewing highly recommended to appreciate this stunning home. EPC Rating D.

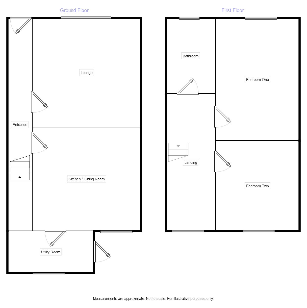
Entrance

UPVC double glazed entrance door, Victorian style radiator, tiled flooring and stairs to the first floor.

Lounge (4.4m x 4.4m)

UPVC double glazed window to the front, radiator, wooden flooring, decorative fireplace.

Kitchen / Dining Room (4.2m x 3.1m)

Beautifully fitted kitchen with a range of matching wall and base units with complementary work surfaces, sink with mixer tap, integral oven, hob and extractor hood, tiled to complement, stone flagged flooring, built in cupboard and uPVC double glazed window to the rear.

Utility Room

Fitted sink unit, space for appliances, tiled to complement, tiled flooring, radiator, uPVC double glazed window and door to the garden.

Bedroom 1 (3.1m x 4.8m)

UPVC double glazed window, radiator.

Bedroom 2 (3.7m x 3.4m)

UPVC double glazed window, radiator.

Bathroom

Newly fitted four piece bathroom suite in white comprising toilet, sink, free standing bath and shower cubicle, tiled to complement, heated towel radiator, tiled flooring and uPVC double glazed window.

Outside

Paved patio area leading to a lawned garden with stone wall boundary and views over the river.

Important note to purchasers:

We endeavour to make our sales particulars accurate and reliable, however, they do not constitute or form part of an offer or any contract and none is to be relied upon as statements of representation or fact. Any services, systems and appliances listed in this specification have not been tested by us and no guarantee as to their operating ability or efficiency is given. All measurements have been taken as a guide to prospective buyers only, and are not precise. Please be advised that some of the particulars may be awaiting vendor approval. If you require clarification or further information on any points, please contact us, especially if you are traveling some distance to view. Fixtures and fittings other than those mentioned are to be agreed with the seller.

/8

Floor Plans

Property Location

Marketed by Reeds Rains



By submitting this form, you accept our Terms of Use.

Disclaimer Property descriptions and related information displayed on this page are marketing materials provided by Reeds Rains. estateagents365.uk does not warrant or accept any responsibility for the accuracy or completeness of the property descriptions or related information provided here and they do not constitute property particulars. Please contact Reeds Rains for full details and further information.