Terraced house for sale in Stoke-on-Trent ST4, 2 Bedroom

Stoke-on-Trent, Stoke-on-Trent, UK

Quick Summary

Property Type:
Terraced house
Status:
For sale
Price
£ 85,950
Beds:
2
Baths:
1
Recepts:
2
County
Staffordshire
Town
Stoke-on-Trent
Outcode
ST4
Location
Hartshill Road, Stoke-On-Trent ST4
Marketed By:
Stoke Property Shop
Posted
2019-04-30
ST4 Rating:





More Info?
Please contact Stoke Property Shop on 01782 933703 or Request Details

Property Description

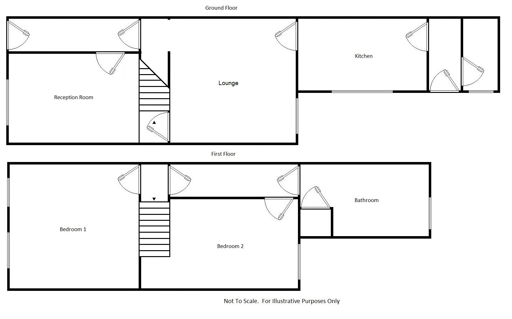
Attention buy to let investors & first-time buyers! Two Bedroom mid terrace property close to Newcastle Under Lyme. Within walking distance of many local amenities. Currently tenanted with a rental income of approximately £5760 per annum. Two reception rooms, kitchen and WC make up the ground floor with two double bedrooms and bathroom situated on the first floor. Part double glazed with a gas combination central heating system. No Upward Chain involved! Viewings strictly by appointment only.


Reception room


Dimensions: 8’1” x 11’8”
With carpet flooring and radiators.
________________________________________

Lounge


Dimensions: 11’10” x 12’6”
With laminate flooring and radiators.
________________________________________

Kitchen


Dimensions: 6’5” x 10’1”
Tiled flooring, fitted kitchen.
________________________________________
W.C.
Dimensions: 5’10” x 3’6”
Vinyl flooring with toilet.
________________________________________

Bedroom


Dimensions: 11’10” x 11’7”
Carpet flooring, Radiator.
________________________________________

Bedroom


Dimensions: 8’8” x 12’4”
Carpet flooring, Radiator.
________________________________________

Bathroom


Dimensions: 6’5” x 11’4”
Vinyl flooring, Radiator.
________________________________________

Front garden
N/A


________________________________________

Rear garden


Rear yard enclosed with access via side entry.
________________________________________

Note


All mains services are connected.
The agents have not tested any apparatus, equipment, fittings or services so cannot verify they are in working order all applicants must satisfy themselves of the condition.
________________________________________

Mortgages


Stoke property shop will be pleased to assist purchasers in arranging mortgages.
Your home is at risk if you do not keep up repayments on A mortgage or other load secured on it.

Floor Plans

Property Location

Marketed by Stoke Property Shop



By submitting this form, you accept our Terms of Use.

Disclaimer Property descriptions and related information displayed on this page are marketing materials provided by Stoke Property Shop. estateagents365.uk does not warrant or accept any responsibility for the accuracy or completeness of the property descriptions or related information provided here and they do not constitute property particulars. Please contact Stoke Property Shop for full details and further information.