Terraced house for sale in Ripley DE5, 2 Bedroom

Ripley, Ripley, UK

Quick Summary

Property Type:
Terraced house
Status:
For sale
Price
£ 105,000
Beds:
2
Baths:
1
Recepts:
2
County
Derbyshire
Town
Ripley
Outcode
DE5
Location
Jessop Street, Codnor, Ripley DE5
Marketed By:
Reeds Rains - Ripley
Posted
2018-09-07
DE5 Rating:





More Info?
Please contact Reeds Rains - Ripley on 01773 549247 or Request Details

Property Description



Lovely terraced property with parking at rear. This traditional terraced house is located in the heart of Codnor within walking distance of local shops, schools and amenities.
The property itself comprises of a beautiful lounge diner, fitted kitchen. To the first floor are two double bedrooms and larger than average bathroom. To the outside is an enclosed small garden to the front. Shared access to the rear that allows access to parking at the rear. The garden can be accessed via a side or rear gate.

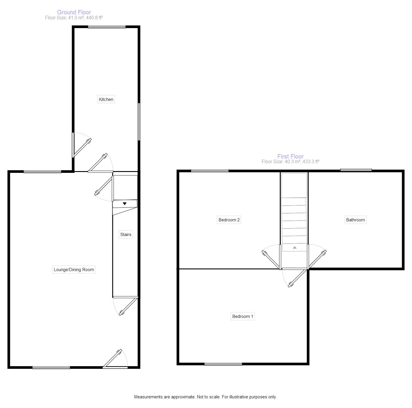
Lounge / Dining Room (4.47m x 6.68m)

Spacious and tastefully decorated with Pebbled effect gas fire set into feature surround and hearth. Under stairs storage cupboard. Double glazed windows to front and rear. Two radiators.

Kitchen (2.18m x 4.93m)

Having a range of fitted wall and base units with matching working surfaces. Inset stainless steel sink and drainer. Built in double electric oven, four ring gas hob with extractor hood over. Double glazed windows to rear and side. Door to side providing access to rear garden. Radiator. Laminate floor.

First Floor Landing

Bedroom 1 (3.23m x 4.44m)

Double glazed window to front, radiator.

Bedroom 2 (3.07m x 3.48m)

Double glazed window to rear, built in storage cupboard, radiator.

Bathroom (3.02m x 3.25m)

Double glazed window to rear. Comprising of bath with shower attachment, separate shower over, pedestal wash hand basin, low level W.C., heated towel rail, storage cupboard, radiator, laminate floor.

Outside

To the front of the property is an enclosed small garden with mature shrubs. Shared driveway providing access to parking at rear.
Access to the garden is gained by a gate to the side or rear. Lawn garden to the rear, garden shed.

Important note to purchasers:

We endeavour to make our sales particulars accurate and reliable, however, they do not constitute or form part of an offer or any contract and none is to be relied upon as statements of representation or fact. Any services, systems and appliances listed in this specification have not been tested by us and no guarantee as to their operating ability or efficiency is given. All measurements have been taken as a guide to prospective buyers only, and are not precise. Please be advised that some of the particulars may be awaiting vendor approval. If you require clarification or further information on any points, please contact us, especially if you are traveling some distance to view. Fixtures and fittings other than those mentioned are to be agreed with the seller.

/8

Floor Plans

Property Location

Marketed by Reeds Rains - Ripley



By submitting this form, you accept our Terms of Use.

Disclaimer Property descriptions and related information displayed on this page are marketing materials provided by Reeds Rains - Ripley. estateagents365.uk does not warrant or accept any responsibility for the accuracy or completeness of the property descriptions or related information provided here and they do not constitute property particulars. Please contact Reeds Rains - Ripley for full details and further information.