Terraced house for sale in Preston PR1, 3 Bedroom

Preston, Preston, UK

Quick Summary

Property Type:
Terraced house
Status:
For sale
Price
£ 65,000
Beds:
3
Baths:
1
Recepts:
2
County
Lancashire
Town
Preston
Outcode
PR1
Location
St. Stephens Road, Preston PR1
Marketed By:
Reeds Rains - Preston
Posted
2019-05-01
PR1 Rating:





More Info?
Please contact Reeds Rains - Preston on 01772 913907 or Request Details

Property Description



This property is for sale by the Modern Method of Auction Starting Bid £65,000 This property is for sale by the Modern Method of Auction which is not to be confused with traditional auction. The Modern Method of Auction is a flexible buyer friendly method of purchase. We do not require the purchaser to exchange contracts immediately, but grant 28 days to achieve exchange of contracts from the date the buyer's solicitor is in receipt of the draft contracts and a further 28 days thereafter to complete. Allowing the additional time to exchange on the property means interested parties can proceed with traditional residential finance. Upon close of a successful auction or if the vendor accepts an offer during the auction, the buyer will be required to put down a non-refundable reservation fee of 3.5% subject to a minimum of £5,000 plus VAT which secures the transaction and takes the property off the market. The buyer will be required to sign an Acknowledgement of Reservation form to confirm acceptance of terms prior to solicitors being instructed. Copies of the Reservation form and all terms and conditions can be found in the Legal Pack which can be downloaded for free from the auction section of our website or requested from our Auction Department. Please note this property is subject to an undisclosed reserve price. Terms and conditions apply to the Modern Method of Auction, which is operated by The South Yorkshire Property Auction powered by Iam-sold Ltd. Ideal buy to let opportunity with a rental income of approx £550pcm. The property does require some cosmetic improvement but does offer living accommodation including entrance vestibule, two reception rooms, kitchen, three double bedrooms and bathroom. Externally there is an enclosed rear yard with an outbuilding. Sold with no chain delay. Awaiting EPC Grade.

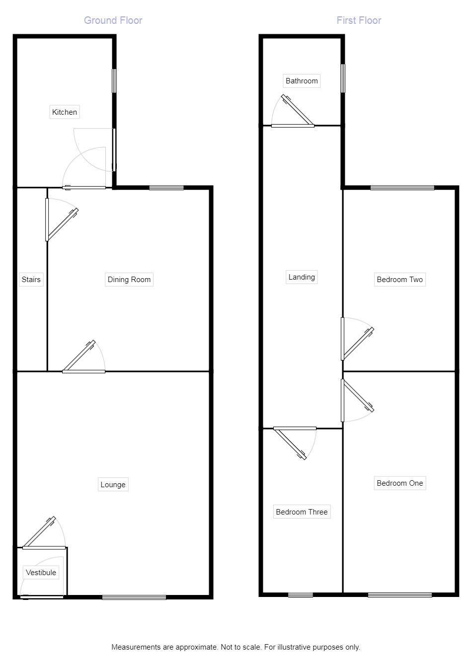
Vestibule

Door leading to the lounge.

Lounge (4.57m x 3.94m)

Double glazed window to the front. Gas fire. Built in cupboard housing the meters. Radiator and ceiling light point. Coving. Door to the dining room.

Dining Room (3.71m x 3.51m)

Double glazed window to the rear aspect. Under stairs storage cupboard. Feature gas fire with hearth and surround. Radiator and ceiling light pint. Stairs to the first floor. Door leading to the kitchen.

Kitchen (3.05m x 2.03m)

Range of wall and base units with contrasting work surfaces incorporating single bowl stainless steel sink and drainer. Space for a gas cooker, washing machine and fridge freezer. Double glazed window to the side aspect. Radiator and ceiling light point. Door to the rear yard.

Landing

Split level landing. Ceiling light point.

Bedroom 1

Double glazed window to the front aspect. Radiator and ceiling light point.

Bedroom 2

Double glazed window to the rear aspect. Radiator and ceiling light point.

Bedroom 3

Double glazed window to the front aspect. Radiator and ceiling light point.

Bathroom

Three piece suite comprising of bath, pedestal wash hand basin and low level WC. Part tiled walls. Ceiling light point. Radiator. Double glazed window to the rear aspect.

External

To the rear there is an enclosed yard with wall surround and gated access. There is an outbuilding providing additional storage.

Important note to purchasers:

We endeavour to make our sales particulars accurate and reliable, however, they do not constitute or form part of an offer or any contract and none is to be relied upon as statements of representation or fact. Any services, systems and appliances listed in this specification have not been tested by us and no guarantee as to their operating ability or efficiency is given. All measurements have been taken as a guide to prospective buyers only, and are not precise. Please be advised that some of the particulars may be awaiting vendor approval. If you require clarification or further information on any points, please contact us, especially if you are traveling some distance to view. Fixtures and fittings other than those mentioned are to be agreed with the seller.

/8

Floor Plans

Property Location

Marketed by Reeds Rains - Preston



By submitting this form, you accept our Terms of Use.

Disclaimer Property descriptions and related information displayed on this page are marketing materials provided by Reeds Rains - Preston. estateagents365.uk does not warrant or accept any responsibility for the accuracy or completeness of the property descriptions or related information provided here and they do not constitute property particulars. Please contact Reeds Rains - Preston for full details and further information.