Terraced house for sale in London SE15, 3 Bedroom

London, London, UK

Quick Summary

Property Type:
Terraced house
Status:
For sale
Price
£ 750,000
Beds:
3
Baths:
1
Recepts:
2
County
London
Town
London
Outcode
SE15
Location
Howbury Road, Nunhead SE15
Marketed By:
Wooster & Stock
Posted
2018-11-07
SE15 Rating:





More Info?
Please contact Wooster & Stock on 020 8115 9775 or Request Details

Property Description

Pretty Three Bed Victorian Home With Generous Rear Garden.

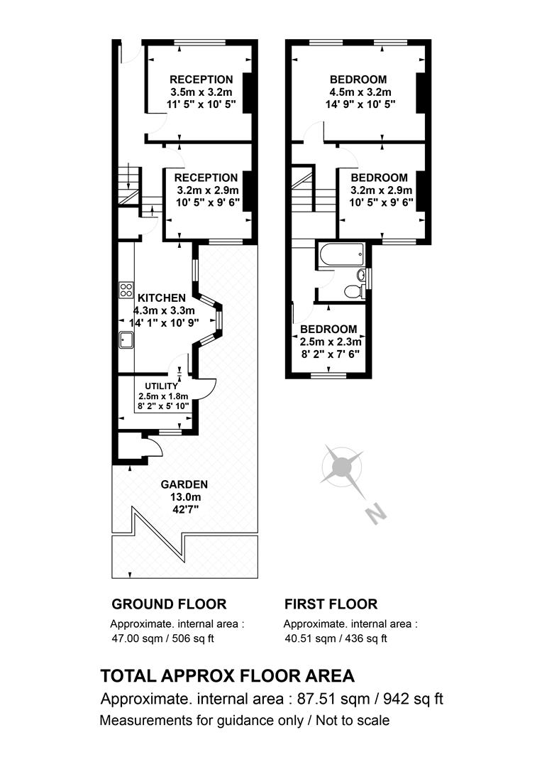
This tidy and bright three bedder comes complete with generous lounging and dining space and a nicely sized rear garden. Sitting on a pleasant, mature residential street moments from Nunhead, the property rests within a ready-made community and access to a growing number of yummy culinary hot-spots. The nearby village has much of what you need for your day to day and you're within easy reach of Peckham and East Dulwich too. Transport is unbeatable with Nunhead station ( a three minute walk) supplying swift and frequent services to Blackfriars, Farringdon, Victoria, Peckham Rye and Bedford. The property has planning permission in place for a fabulous double height rear extension - how exciting!

A neat front garden with cool cobbled path leads past a well stocked planter. A vintage Royal Mail post box precedes your portico entrance through which you meet your inviting hallway. Pucker Parquet flooring runs forth and the walls are a crisp white. This timeless theme continues left to the front facing reception which has double glazed wooden framed sash windows and a particularly lovely period feature fireplace - so far, so very good! A further reception, overlooking the rear, is currently used as a dining room and dons pale sage walls and a pretty floral feature wall. One could easily break through to open up these two spaces to create one super-sized room. A mini flight of stairs leads down from the hall, past storage, to an open arch which brings you to the kitchen/diner. You can house a dining table in the side bay window and there's a generous run of solid oak counters. There's a fab twin ceramic sink and drainer and space for the cooker. A bright and modern utility room adjoins rear with space and plumbing for the washing machine and dishwasher and further counter space. A door from here leads to the garden which has a generous lawn, mature shrubs and trees and a sunny, decked patio. The house is not overlooked from the rear making sun baking more private.

Head up to the first floor via carpeted stairs to find a carpeted landing with a funky pink shelving unit to house towels and the like. Your bright and spacious master bedroom has two front aspect double glazed sash windows, simple coving and plenty of scope for bespoke wardrobes. Bedroom two, a neat double, faces rear with textured wooden flooring and lavender walls. Your bathroom has contemporary white tiling and suite and a frosted side casement. The third double bedroom is a single with lovely garden views.

The Old Nun's Head Pub and The Beer Shop are just around the corner whilst the recently refurbished and family friendly pubs of The Waverley and community pub The Ivy House are a short stroll away. You'll also find local shops, eateries, delis and cafes on Nunhead Lane (including a super fishmonger). Peckham Rye park and Telegraph Hill Park are within easy reach, as are the shops, restaurants, and pubs of East Dulwich. Whilst Peckham is awash with eateries, funky bars and artistic endeavours. We love Frank's Cafe roof top bar and restaurant - great for some tunes and views. Keeping fit? Peckham Pulse is a short bus ride and has a good gym, two swimming pools and loads of evening classes.

Floor Plans

Property Location

Marketed by Wooster & Stock



By submitting this form, you accept our Terms of Use.

Disclaimer Property descriptions and related information displayed on this page are marketing materials provided by Wooster & Stock. estateagents365.uk does not warrant or accept any responsibility for the accuracy or completeness of the property descriptions or related information provided here and they do not constitute property particulars. Please contact Wooster & Stock for full details and further information.