Terraced house for sale in Leeds LS17, 4 Bedroom

Leeds, Leeds, UK

Quick Summary

Property Type:
Terraced house
Status:
For sale
Price
£ 229,950
Beds:
4
Baths:
2
County
West Yorkshire
Town
Leeds
Outcode
LS17
Location
Queenshill Drive, Leeds LS17
Marketed By:
Your Move - Barrett Hynes
Posted
2024-06-01
LS17 Rating:





More Info?
Please contact Your Move - Barrett Hynes on 0113 427 8984 or Request Details

Property Description



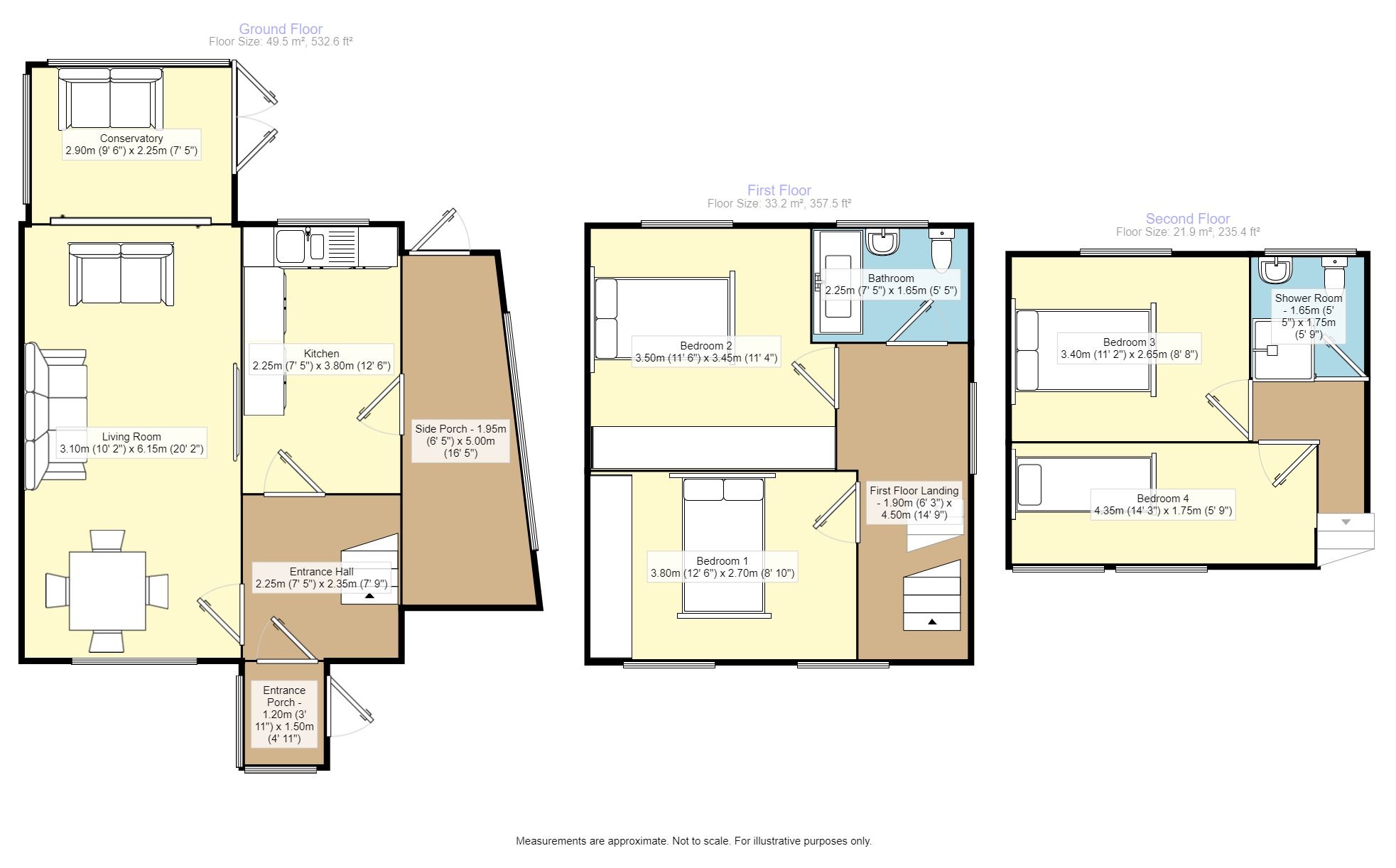
A significantly enlarged family property occupying a pleasant position within this popular area which is ideally located for numerous local amenities and schools and well placed for the commuter with the Outer Ring Road being close by. The property which has double glazing and a gas central heating system briefly comprises: Porch, hallway, living/dining room, conservatory, kitchen, side porch, four bedrooms, bathroom and a separate shower room. Externally there's secure off street parking to the front and an enclosed pretty patio garden to the rear. EPC rating D

Entrance Porch (1.48m x 1.18m)

Entrance Hall (2.37m x 2.27m)

Living Room (6.16m x 3.12m)

Conservatory (2.24m x 2.92m)

Kitchen (3.65m x 2.24m)

Side Porch (1.6m (ave) x 5m)

First Floor Landing

Bedroom 1 (2.72m x 3.82m)

Bedroom 2 (2.71m x 3.17m)

Bathroom (1.67m x 2.23m)

Second Floor

Bedroom 3 (2.65m x 3.42m)

Bedroom 4 (1.54m x 4.37m)

Shower Room (1.73m x 1.67m)

Garden

Important note to purchasers:

We endeavour to make our sales particulars accurate and reliable, however, they do not constitute or form part of an offer or any contract and none is to be relied upon as statements of representation or fact. Any services, systems and appliances listed in this specification have not been tested by us and no guarantee as to their operating ability or efficiency is given. All measurements have been taken as a guide to prospective buyers only, and are not precise. Please be advised that some of the particulars may be awaiting vendor approval. If you require clarification or further information on any points, please contact us, especially if you are traveling some distance to view. Fixtures and fittings other than those mentioned are to be agreed with the seller.

/3

Floor Plans

Property Location

Marketed by Your Move - Barrett Hynes



By submitting this form, you accept our Terms of Use.

Disclaimer Property descriptions and related information displayed on this page are marketing materials provided by Your Move - Barrett Hynes. estateagents365.uk does not warrant or accept any responsibility for the accuracy or completeness of the property descriptions or related information provided here and they do not constitute property particulars. Please contact Your Move - Barrett Hynes for full details and further information.