Terraced house for sale in Leeds LS11, 8 Bedroom

Leeds, Leeds, UK

Quick Summary

Property Type:
Terraced house
Status:
For sale
Price
£ 145,000
Beds:
8
County
West Yorkshire
Town
Leeds
Outcode
LS11
Location
Westbourne Avenue, Beeston, Leeds LS11
Marketed By:
Auction House West Yorkshire
Posted
2019-01-18
LS11 Rating:





More Info?
Please contact Auction House West Yorkshire on 0113 427 6118 or Request Details

Property Description

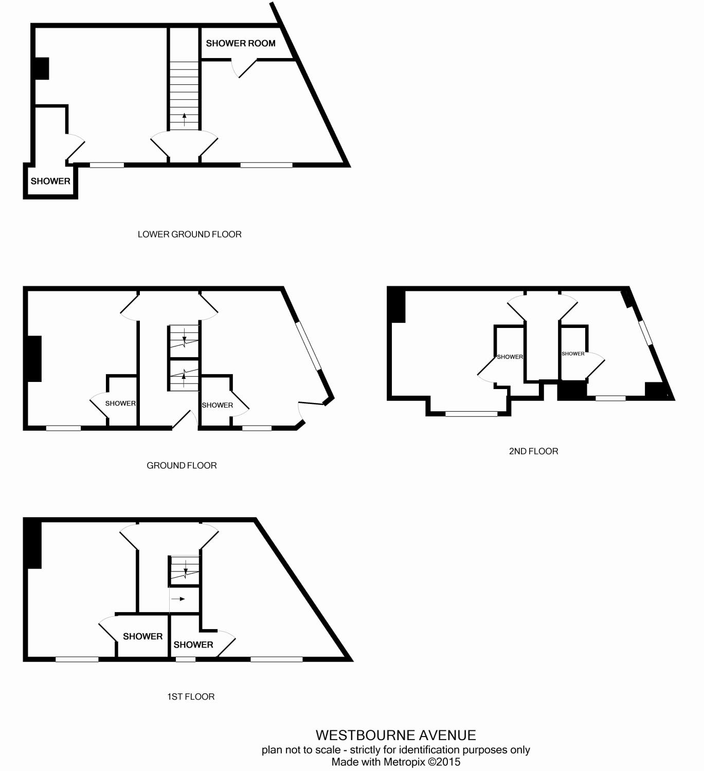
Two properties combined many years ago consisting of 8 studio rooms virtually all rented to private tenants generating an income of £31,824.00 and a return of 22% when based on the quoted guide price. (Note: All tenants pay their own electricity bills). The property is fully managed by professional letting agents. All appropriate electric and fire alarm certificates etc are in place, see legal pack for further information.


Accommodation


Basement Studios one and two.

Ground Floor Studios three and four.

First Floor Studios five and six

Second Floor Studios seven and eight.

Outside The property has a yard to the front with on street parking available.

Charges and Payments In addition to the deposit
Administration Charge: 0.6% inc VAT of the purchase price subject to a minimum of £900.00 inc VAT.
Disbursements: Any additional disbursements payable by the purchaser are yet to be Confirmed by the vendors solicitor.
For more details please see the legal pack.

Guide Price Guides are provided as an indication of each seller's minimum expectation. They are not necessarily figures which a property will sell for and may change at any time prior to the auction. Each property will be offered subject to a Reserve (a figure below which the Auctioneer cannot sell the property during the auction) which we expect will be set within the Guide Range or no more than 10% above a single figure Guide.


Floor Plans

Property Location

Marketed by Auction House West Yorkshire


By submitting this form, you accept our Terms of Use.

Disclaimer Property descriptions and related information displayed on this page are marketing materials provided by Auction House West Yorkshire. estateagents365.uk does not warrant or accept any responsibility for the accuracy or completeness of the property descriptions or related information provided here and they do not constitute property particulars. Please contact Auction House West Yorkshire for full details and further information.