Terraced house for sale in Chesterfield S44, 3 Bedroom

Chesterfield, Chesterfield, UK

Quick Summary

Property Type:
Terraced house
Status:
For sale
Price
£ 84,950
Beds:
3
Baths:
1
Recepts:
2
County
Derbyshire
Town
Chesterfield
Outcode
S44
Location
Langwith Road, Bolsover, Chesterfield S44
Marketed By:
Wilson Estate Agents
Posted
2019-01-31
S44 Rating:





More Info?
Please contact Wilson Estate Agents on 01246 920968 or Request Details

Property Description

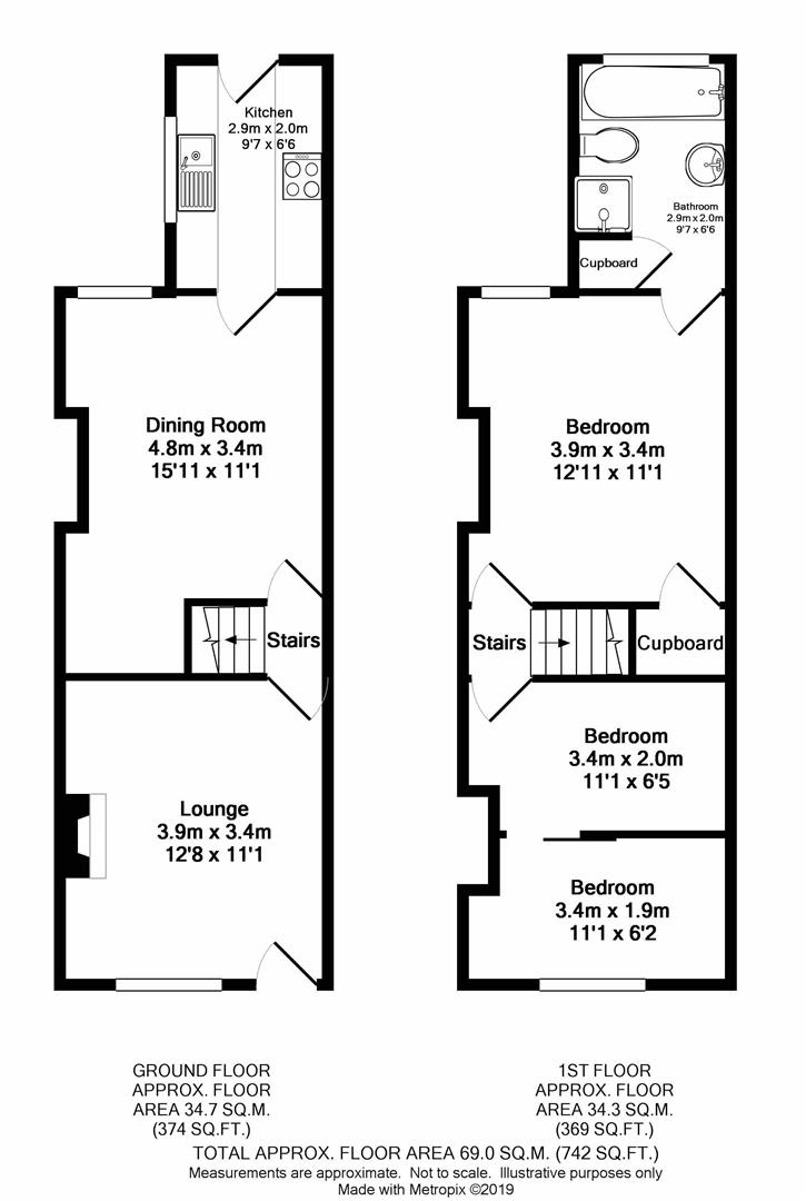
*no chain* off road parking* garage* Situated in a sought after location, having easy, level access to the centre of Bolsover along with good commuting links to the M1 via J29a Markham Vale and the nearby towns of Chesterfield and Mansfield, this two/three bedroomed mid terrace would suit first time buyers, investors or those wishing to downsize alike. Deceptively spacious the accommodation comprises two reception rooms, kitchen, a rear facing double bedroom, two bedrooms to the front separated by a stud wall which could be removed to maximise the space and a bathroom. There is off road parking, a detached garage with electric door to the rear and low maintenance, enclosed rear garden.

Floor Plans

Property Location

Marketed by Wilson Estate Agents


By submitting this form, you accept our Terms of Use.

Disclaimer Property descriptions and related information displayed on this page are marketing materials provided by Wilson Estate Agents. estateagents365.uk does not warrant or accept any responsibility for the accuracy or completeness of the property descriptions or related information provided here and they do not constitute property particulars. Please contact Wilson Estate Agents for full details and further information.