Terraced house for sale in Blackpool FY3, 2 Bedroom

Blackpool, Blackpool, UK

Quick Summary

Property Type:
Terraced house
Status:
For sale
Price
£ 95,000
Beds:
2
Baths:
1
Recepts:
2
County
Lancashire
Town
Blackpool
Outcode
FY3
Location
Fredora Avenue, Blackpool FY3
Marketed By:
The Square Room
Posted
2018-10-29
FY3 Rating:





More Info?
Please contact The Square Room on 01253 708140 or Request Details

Property Description

***no chain*** Well presented, two bedroom extended mid terrace for sale on Fredora Avenue in Blackpool. Situated in a popular residential location, it is within reasonable access of local amenities and transport links. The property benefits from two good size reception rooms, two double bedrooms and off street parking to the front, it briefly comprises; hallway, lounge, dining room, extended kitchen, landing, two double bedrooms and family bathroom, there is off street parking to the front and a low maintenance rear garden, the property is double glazed throughout and gas central heated.


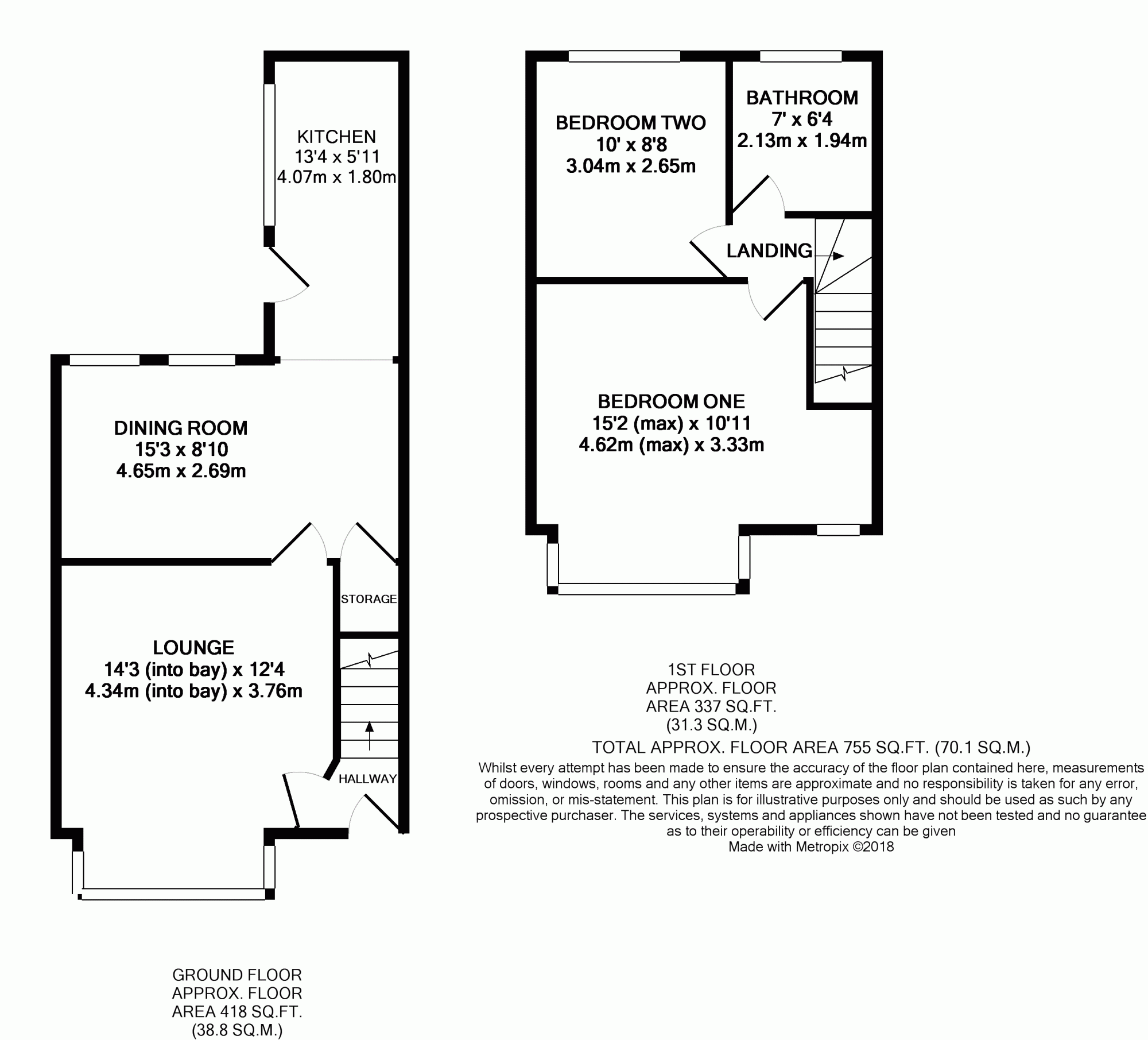
Ground floor

hallway


UPVC double glazed door to front aspect and stairs to first floor.


Lounge


14`3` x 12`4` (4.34m x 3.76m)
UPVC double glazed bay window to front aspect, multi fuel log burner situated on a stone hearth, radiator.


Dining room


15`3` x 8`10` (4.65m x 2.69m)
Two UPVC double glazed windows to rear aspect, fitted with base units and complementary work surfaces, under stairs storage, wooden flooring, radiator.


Kitchen


13`4` x 5`11` (4.07m x 1.80m)
UPVC double glazed window and door to side aspect, fitted with a range of modern wall and base units, complementary works surfaces and tiled splash backs, one and half bowl stainless steel sink and drainer with mixer tap, integrated electric oven and grill, four ring gas hob with extractor over, plumbed for washing machine and space for fridge freezer, laminate flooring.


First floor

landing

bedroom one


15`2` x 10`11` (4.62m x 3.33m)
UPVC double glazed bay window and UPVC double glazed window to front aspect, radiator.


Bedroom two


10` x 8`8` (3.04m x 2.65m)
UPVC double glazed window to rear aspect, laminate flooring, radiator and loft hatch, the loft is boarded with pull down ladder and lighting.


Bathroom


7` x 6`4` (2.13m x 1.94m)
UPVC double glazed opaque window to rear aspect, large panelled bath with shower over, pedestal wash hand basin and low flush wc, laminate flooring, towel radiator.


External

front


Low maintenance printed concrete driveway.


Rear


South facing, low maintenance rear garden, raised decking area, loose stone borders and pedestrian access to alleyway, there is a brick-built store and outside tap.


Tenure


We have been informed that the property is Freehold; prospective purchasers should seek clarification of this from their solicitors.


Viewings


Viewings are strictly by appointment through the agents office. Please call us on .

All measurements are approximate and for illustrative purposes only. Digital images are reproduced for general information only and must not be inferred that any item shown is included for sale with the property. We have been unable to confirm if services / items in the property are in full working order. The property is offered for sale on this basis. Prospective purchasers are advised to seek expert advice where appropriate.

Floor Plans

Property Location

Marketed by The Square Room



By submitting this form, you accept our Terms of Use.

Disclaimer Property descriptions and related information displayed on this page are marketing materials provided by The Square Room. estateagents365.uk does not warrant or accept any responsibility for the accuracy or completeness of the property descriptions or related information provided here and they do not constitute property particulars. Please contact The Square Room for full details and further information.