Semi-detached house to rent in Leyland PR25, 3 Bedroom

Leyland, Leyland, UK

Quick Summary

Property Type:
Semi-detached house
Status:
To rent
Price
£ 156
Beds:
3
Baths:
1
Recepts:
2
County
Lancashire
Town
Leyland
Outcode
PR25
Location
Earnshaw Drive, Leyland PR25
Marketed By:
Reeds Rains
Posted
2024-05-17
PR25 Rating:





More Info?
Please contact Reeds Rains on 01772 913905 or Request Details

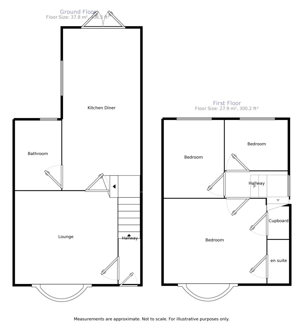
Property Description



Extended with a fantastic layout this property is not to be missed and will not be around long. Within walking distance of the town centre it comes to the market with enclosed gardens, off road parking and well presented rooms, viewing is a must.

Entrance Hall

Accessed by a UPVC glazed
door. Radiator.

Lounge (3.45m x 3.76m)

Front facing UPVC double
glazed bay window. Living flame
coal effect gas fire with surround
and mantelpiece. Radiator

Kitchen / Dining Room (2.90m x 5.97m)

Side facing UPVC window.
Under stairs storage. Open
plan through to the kitchen
area which has wall and base
units, electric oven extractor
and plumbing for all utilities.
UPVC double glazed patio
doors leading to the garden

Bathroom

Rear facing UPVC double
glazed window. Three piece
suite with push button WC, pedestal hand basin and bath
with shower over. Tiled floor and
part wall.

Landing

Doors leading off to three
bedrooms

Bedroom 1 (2.84m x 3.02m)

Front facing UPVC double
glazed bay window. Radiator.
Access to the en-suite shower.

En-Suite Shower Area

Two piece suite comprising
step-in shower cubicle and
hand basin.

Bedroom 2 (2.08m x 3.48m)

Rear facing UPVC double
glazed window. Radiator

Bedroom 3 (2.26m x 2.54m)

Rear facing UPVC double
glazed window. Radiator.

External

To the front of the property
there is a driveway for off road
parking and and side access
leading to the garden. To the
rear of the property is a mixture
of a patio and lawned area and
a brick built out building.

/8

Floor Plans

Property Location

Marketed by Reeds Rains


By submitting this form, you accept our Terms of Use.

Disclaimer Property descriptions and related information displayed on this page are marketing materials provided by Reeds Rains. estateagents365.uk does not warrant or accept any responsibility for the accuracy or completeness of the property descriptions or related information provided here and they do not constitute property particulars. Please contact Reeds Rains for full details and further information.