Semi-detached house for sale in Wigan WN6, 2 Bedroom

Wigan, Wigan, UK

Quick Summary

Property Type:
Semi-detached house
Status:
For sale
Price
£ 139,995
Beds:
2
County
Greater Manchester
Town
Wigan
Outcode
WN6
Location
Barbrook Close, Standish, Wigan WN6
Marketed By:
Arnold and Phillips Estate Agents
Posted
2018-09-29
WN6 Rating:





More Info?
Please contact Arnold and Phillips Estate Agents on 01257 817945 or Request Details

Property Description

This modern, two bed semi-detached home, situated in a quiet residential cul-de-sac within the prestigious district of Standish, benefits from tastefully finished living areas, quality fixtures and fittings, a particularly pleasant position and no chain.

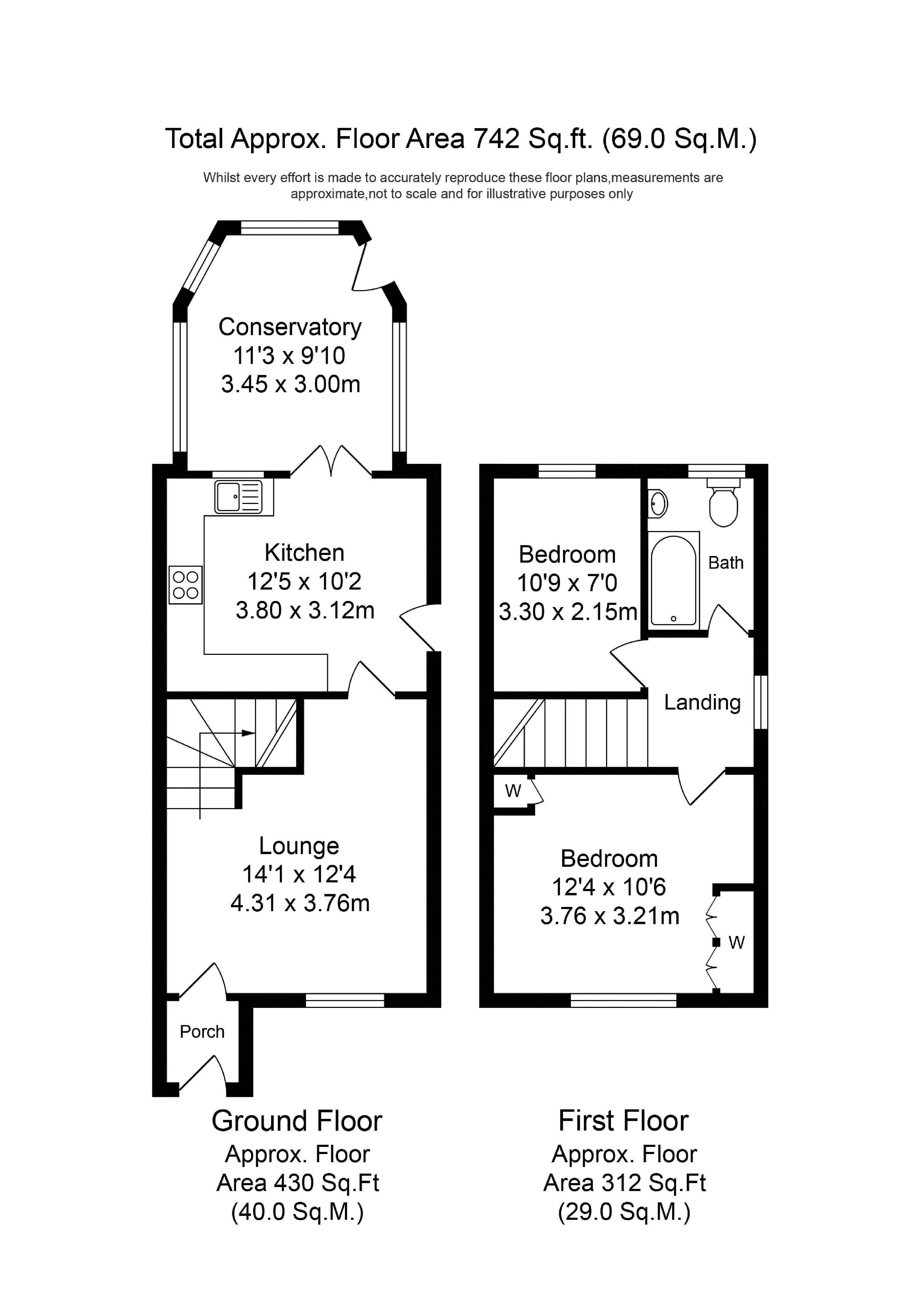
One enters the property via an entrance vestibule and proceeds through into the lounge which has a lovely warm and inviting atmosphere with wooden flooring and an open plan staircase. The adjacent kitchen is fitted with a range of wall and base units and has a ceramic tiled floor, ample workspace, integrated appliances and enough room to dine. From the kitchen there is access through to a lovely conservatory which itself has access out into the rear gardens. The spindled staircase in the lounge provides access to the first floor where there are two excellent double bedrooms, both with a bright and appealing feel with the master bedroom having quality fitted bedroom furniture. The bathroom is fitted with a three piece suite in classic white, comprising of WC, pedestal wash hand basin and a panelled bath with shower over. Other benefits include gas central heating and double glazing.

Externally there are lawned gardens to the front and rear as well as off road parking provided by the paved driveway whilst the low maintenance rear is a real delight with lawns, gravel borders and paved patio areas. Primary and secondary schools are located nearby and excellent road and rail transport links provide the commuter ease of access to major commercial centres such as Liverpool, Manchester, Wigan and Preston. Standish village centre has an eclectic mix of high street shops and an extensive choice of eateries along with a great selection of traditional and contemporary bars.

Floor Plans

Property Location

Marketed by Arnold and Phillips Estate Agents


By submitting this form, you accept our Terms of Use.

Disclaimer Property descriptions and related information displayed on this page are marketing materials provided by Arnold and Phillips Estate Agents. estateagents365.uk does not warrant or accept any responsibility for the accuracy or completeness of the property descriptions or related information provided here and they do not constitute property particulars. Please contact Arnold and Phillips Estate Agents for full details and further information.