Semi-detached house for sale in Warwick CV34, 2 Bedroom

Warwick, Warwick, UK

Quick Summary

Property Type:
Semi-detached house
Status:
For sale
Price
£ 330,000
Beds:
2
Baths:
2
Recepts:
2
County
Warwickshire
Town
Warwick
Outcode
CV34
Location
Palmer Crescent, Warwick CV34
Marketed By:
Your Move - Coventry
Posted
2024-04-30
CV34 Rating:





More Info?
Please contact Your Move - Coventry on 024 7511 9666 or Request Details

Property Description



This impressive two bedroom extended semi-detached property has been immaculately maintained by it's current owners. The spacious accommodation offers entrance hallway, downstairs W/C, kitchen and an extended lounge/dining room. The first floor comprises of two double bedrooms, the master having an en-suite and a family bathroom. Externally there is a low maintenance patio rear garden and a converted garage which is currently used as a children's playroom. EPC grade B.

Location

The property is located on the ever-popular Warwick Gates estate, with ease of access into Warwick and Leamington Spa, and accessible to the nearby M40 towards London or Birmingham. Close-by are the local Heathcote Primary School, Myton Secondary School, Shires Retail Park and Nuffield Health Centre.

Our View

A fantastic opportunity to purchase an extended two bedroom semi-detached new build in the sought after location of Warwick.

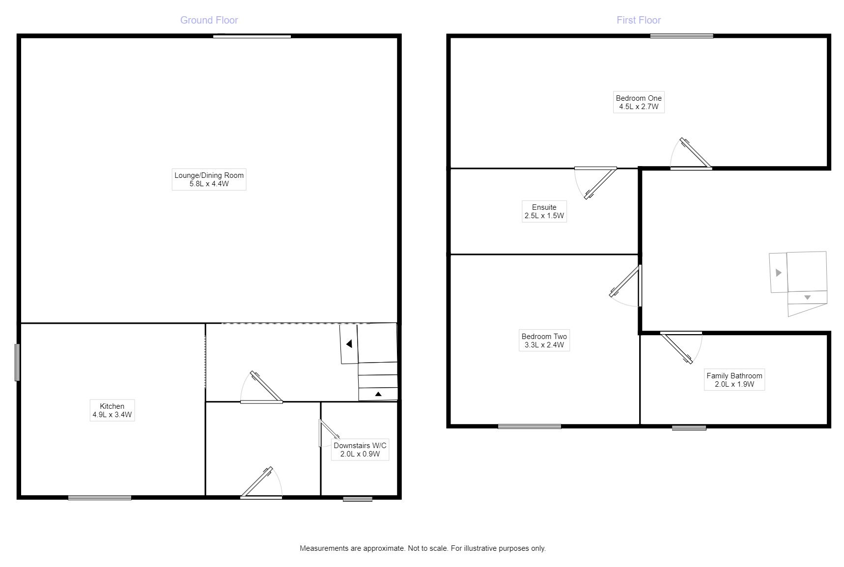
Hallway

Downstairs WC (0.9m x 2.0m)

Kitchen (3.4m x 4.9m)

Lounge / Dining Room (4.4m x 5.8m)

First Floor Landing

Bedroom 1 (2.7m x 4.5m)

En-Suite (1.5m x 2.5m)

Bedroom 2 (2.4m x 3.3m)

Family Bathroom (1.9m x 2.0m)

External

Rear Garden

Driveway

Garage

Important note to purchasers:

We endeavour to make our sales particulars accurate and reliable, however, they do not constitute or form part of an offer or any contract and none is to be relied upon as statements of representation or fact. Any services, systems and appliances listed in this specification have not been tested by us and no guarantee as to their operating ability or efficiency is given. All measurements have been taken as a guide to prospective buyers only, and are not precise. Please be advised that some of the particulars may be awaiting vendor approval. If you require clarification or further information on any points, please contact us, especially if you are traveling some distance to view. Fixtures and fittings other than those mentioned are to be agreed with the seller.

/3

Floor Plans

Property Location

Marketed by Your Move - Coventry



By submitting this form, you accept our Terms of Use.

Disclaimer Property descriptions and related information displayed on this page are marketing materials provided by Your Move - Coventry. estateagents365.uk does not warrant or accept any responsibility for the accuracy or completeness of the property descriptions or related information provided here and they do not constitute property particulars. Please contact Your Move - Coventry for full details and further information.