Semi-detached house for sale in Rugby CV22, 3 Bedroom

Rugby, Rugby, UK

Quick Summary

Property Type:
Semi-detached house
Status:
For sale
Price
£ 269,950
Beds:
3
Baths:
1
Recepts:
2
County
Warwickshire
Town
Rugby
Outcode
CV22
Location
David Road, Bilton, Rugby CV22
Marketed By:
Crowhurst Gale
Posted
2018-11-11
CV22 Rating:





More Info?
Please contact Crowhurst Gale on 01788 285127 or Request Details

Property Description

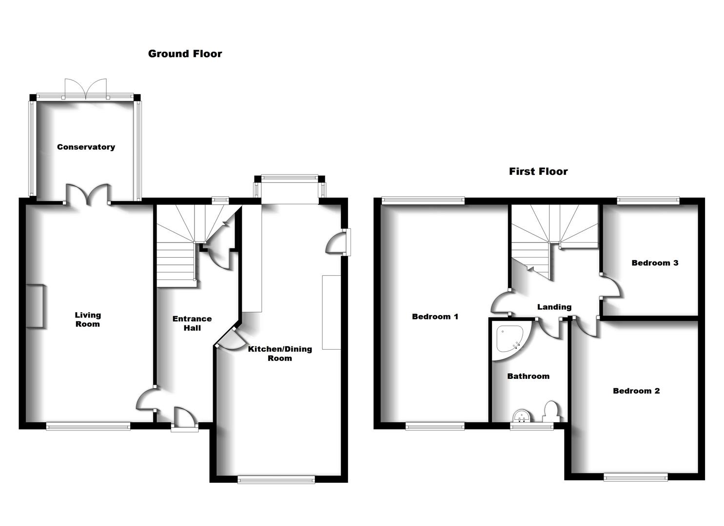
Crowhurst Gale Estate Agents are pleased to present this semi detached property in the sought after area of Bilton. In brief the property comprises: Entrance hall, lounge, kitchen/diner, conservatory to the ground floor. Three bedrooms and family bathroom to the first floor. The property further benefits from Upvc double glazing, gas central heating, front and rear gardens, off road parking and a garage. Call Crowhurst Gale to view

Frontage

Blocked paved drive providing off road parking. Flower and shrub planting area. Shared driveway leading to rear garden and garage.

Entrance Hall

Enter via Upvc glazed door. Stairs rising to the first floor. Door to storage cupboard with shelving and power connected. Door to:

Lounge (4.60m x 3.28m (15'1" x 10'9" ))

Upvc double glazed window to front aspect. Feature fireplace with timber surround and inset Living Flame gas fire. Radiator. T.V aerial point, coving to ceiling. Radiator. Upvc double glazed french doors leading into:

Conservatory (3.12m x 3.07m (10'2" x 10'0" ))

Upvc double glazed french doors leading onto raised decked area. Of brick and Upvc construction with polycarbonate roof.

Kitchen/Dining Room (6.55m x 3.18m (21'5" x 10'5" ))

A range of eye and base level units with roll top work surfaces, inset stainless steel sink with drainer and mixer tap over. Space for Range cooker and stainless steel splash back. Extractor over. Space for fridge/freezer. Space and plumbing for washing machine. Space and plumbing for dishwasher. Radiator. Wall mounted gas combination boiler. Upvc double glazed window to rear and rear aspect. Upvc double glazed door leading to side of property.

First Floor Landing

Upvc double glazed window to the rear aspect. Access to loft space. Door to cupboard with shelving. Doors to:

Bedroom One (4.70m x 3.35m max (15'5" x 10'11" max))

Upvc double glazed windows to front and rear aspect. Radiator.

Bedroom Two (3.30m x 2.24m (10'9" x 7'4" ))

Upvc double glazed window to rear aspect. Radiator .

Bedroom Three (2.69m x 2.36m (8'9" x 7'8"))

Upvc double glazed window to rear aspect. Radiator.

Bathroom

Upvc obscure double glazed window to the rear aspect. Part tiled suite comprising: Enclosed shower cubicle with electric shower fitted. Wall mounted wash hand basin. Low flush W.C.

Rear Garden

Timber decked patio area leading to a further timber decked area lowering to lawn area with flower and shrub borders. Two timber storage sheds. Cold water tap connection. Enclosed by timber fencing and Laurel hedging.

Garage

Market Appraisal

If you are considering selling your property, we would be delighted to give you a free no obligation market appraisal. Our experience, knowledge and marketing with local and internet advertising will get your property seen and stand out from the crowd. Please contact us to arrange your property appraisal.

Mortgage Services

Crowhurst Gale Mortgage and Financial Services Ltd can offer professional mortgage advice and will help to find the right product that will suit your budget and needs from virtually the whole of the mortgage market.

Conveyancing Services

Our solicitors work on a no sale, no fee basis. They work longer hours than the conventional solicitor and are available weekends. Please contact us for more information on our conveyancing services.

Local Authority

Rugby Borough Council

Tax Band

Tax Band: D

Tenure

Freehold

Directions For Sat Nav

Directions For Sat Nav: CV22 7PX

Viewing

By appointment only through Crowhurst Gale Estate Agents

Floor Plans

Property Location

Marketed by Crowhurst Gale



By submitting this form, you accept our Terms of Use.

Disclaimer Property descriptions and related information displayed on this page are marketing materials provided by Crowhurst Gale. estateagents365.uk does not warrant or accept any responsibility for the accuracy or completeness of the property descriptions or related information provided here and they do not constitute property particulars. Please contact Crowhurst Gale for full details and further information.