Semi-detached house for sale in Rotherham S66, 3 Bedroom

Rotherham, Rotherham, UK

Quick Summary

Property Type:
Semi-detached house
Status:
For sale
Price
£ 120,000
Beds:
3
Baths:
1
Recepts:
2
County
South Yorkshire
Town
Rotherham
Outcode
S66
Location
The Crescent, Thurcroft, Rotherham S66
Marketed By:
Reeds Rains - Dinnington
Posted
2018-09-12
S66 Rating:





More Info?
Please contact Reeds Rains - Dinnington on 01909 298843 or Request Details

Property Description



In need of modernization is this three bedroom semi detached house which sit on a generous corner plot. The property benefits from double glazed windows and a gas central heating system, has two ground floor reception rooms and spacious kitchen, three double sized bedrooms and shower room to the first floor. To the front and rear of the property are generous lawned gardens and shared driveway and single detached garage. Awaiting EPC Grade.

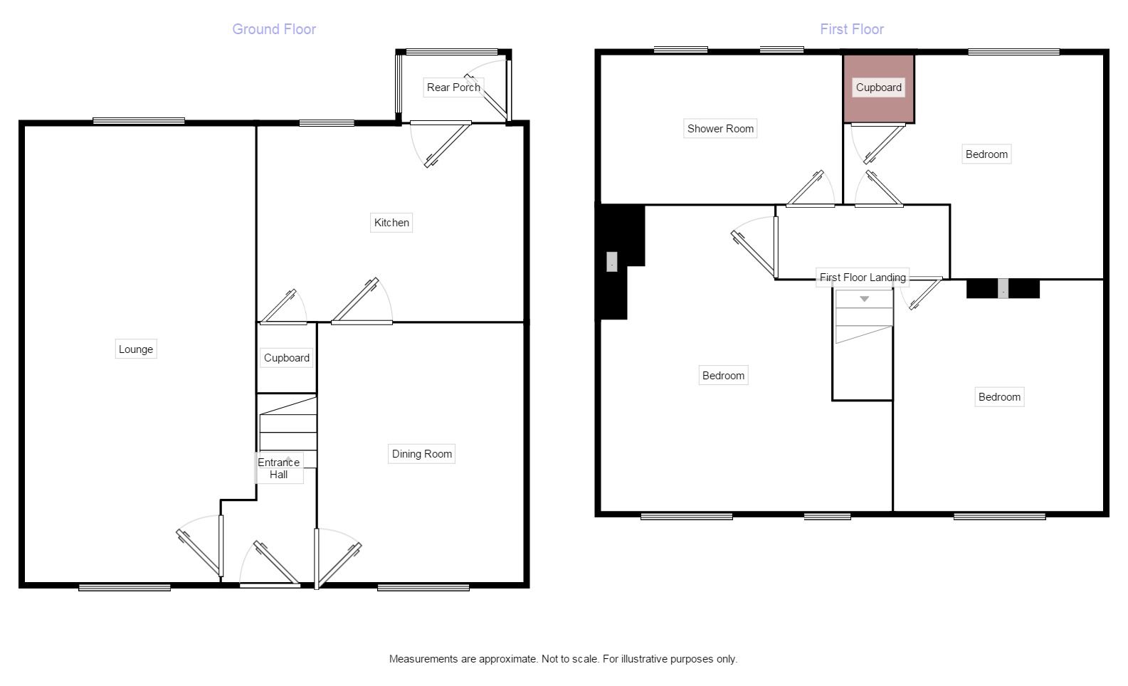
Entrance Hall

Double glazed door and stairs rising to the first floor.

Lounge (3.46m x 5.56m)

Front and rear facing double glazed windows, central heating radiator and feature fire place and hearth.

Dining Room (3.03m x 3.27m)

Front facing double glazed window, central heating radiator and tiled fire place and hearth.

Kitchen (2.41m x 4.29m)

Wall and base units, under stairs cupboard, rear double glazed window and glazed rear door.

Rear Porch

Double glazed windows and door.

First Floor Landing

Access to the loft space.

Bedroom (3.02m x 3.24m)

Double glazed window and central heating radiator.

Bedroom (2nd) (2.39m (narrowing to 1.51) x 4.27m)

Double glazed window, central heating radiator and cupboard housing the boiler.

Bedroom (3rd) (4.53m (narrowing to 1.76) x 3.99m)

Two double glazed window and central heating radiator.

Shower Room

Fitted with a corner shower cubicle with mains shower, low flush wc and pedestal wash basin, two rear facing double glazed, ladder style radiator and complimentary tiling to the splash back areas.

Externally

To the front and rear of the property are generously sized lawned gardens, a shared driveway and single detached garage.

Important note to purchasers:

We endeavour to make our sales particulars accurate and reliable, however, they do not constitute or form part of an offer or any contract and none is to be relied upon as statements of representation or fact. Any services, systems and appliances listed in this specification have not been tested by us and no guarantee as to their operating ability or efficiency is given. All measurements have been taken as a guide to prospective buyers only, and are not precise. Please be advised that some of the particulars may be awaiting vendor approval. If you require clarification or further information on any points, please contact us, especially if you are traveling some distance to view. Fixtures and fittings other than those mentioned are to be agreed with the seller.

/8

Floor Plans

Property Location

Marketed by Reeds Rains - Dinnington



By submitting this form, you accept our Terms of Use.

Disclaimer Property descriptions and related information displayed on this page are marketing materials provided by Reeds Rains - Dinnington. estateagents365.uk does not warrant or accept any responsibility for the accuracy or completeness of the property descriptions or related information provided here and they do not constitute property particulars. Please contact Reeds Rains - Dinnington for full details and further information.