Semi-detached house for sale in Pudsey LS28, 2 Bedroom

Pudsey, Pudsey, UK

Quick Summary

Property Type:
Semi-detached house
Status:
For sale
Price
£ 170,000
Beds:
2
Baths:
1
Recepts:
2
County
West Yorkshire
Town
Pudsey
Outcode
LS28
Location
Thorpe Road, Pudsey, West Yorkshire LS28
Marketed By:
Manning Stainton - Pudsey
Posted
2024-04-29
LS28 Rating:





More Info?
Please contact Manning Stainton - Pudsey on 0113 482 9688 or Request Details

Property Description

This two double bedroom semi-detached property offers beautifully presented accommodation which has been finished to an extremely high standard throughout and occupies a superb corner plot with generous size gardens to the three sides offering potential to extend to create further accommodation (subject to the usual planning and building consents.) Internal viewing is essential to appreciate the quality of this stunning property inside and out.

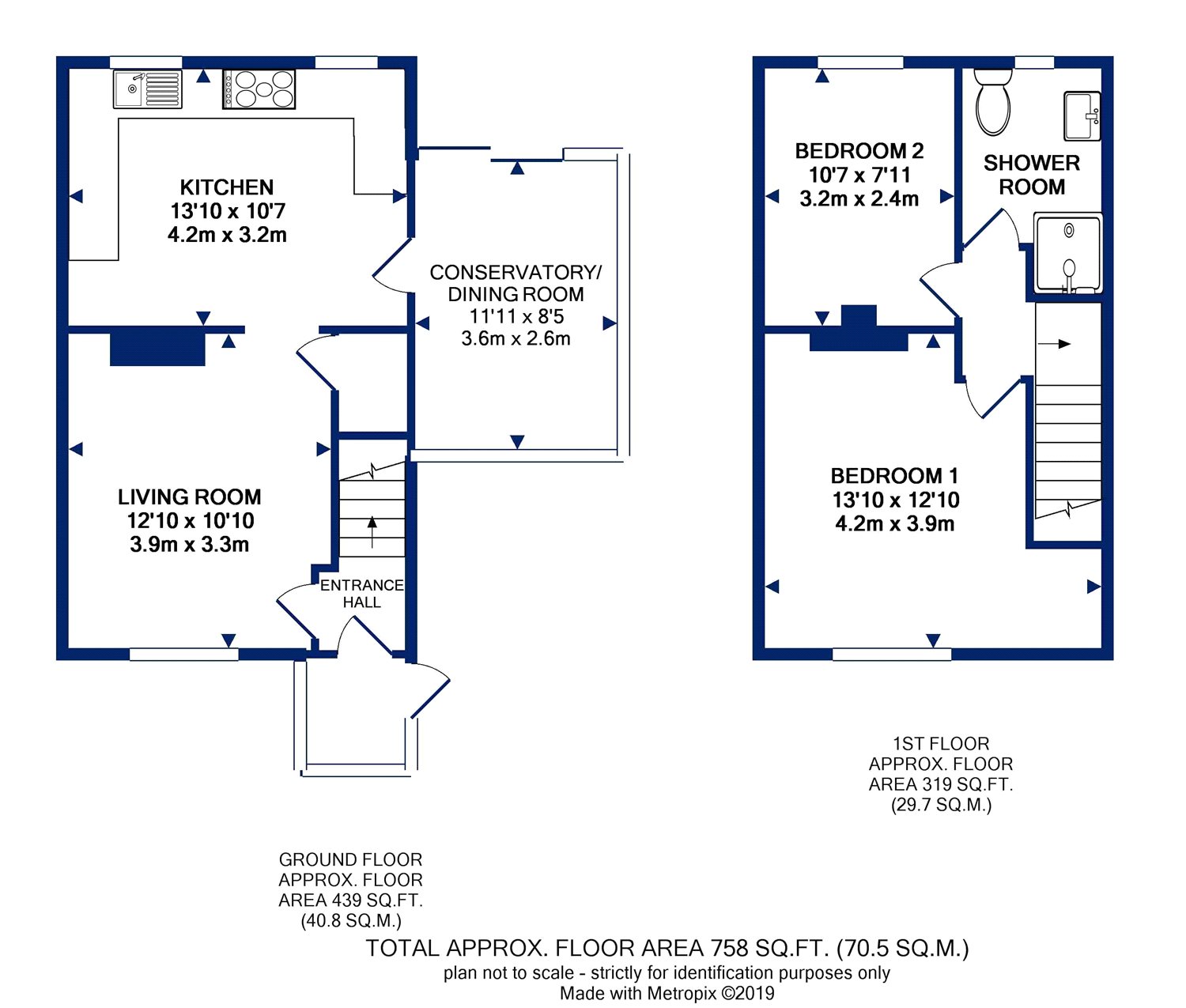
Featuring uPVC and gas fired central heating the accommodation briefly comprises to the ground floor: Entrance porch, entrance hall, a bright and spacious living room with oak flooring and a useful under-stairs storage cupboard, a generous size kitchen which is fitted with a range of modern wall and base units with granite work surfaces and space for a table and chairs, and a conservatory which is centrally heated and is currently used as a dining room having patio doors leading out to the rear garden. To the first floor is the master bedroom which is a good size double with wood effect flooring, a further double bedroom and the shower room which is fully-tiled and fitted with a walk-in shower area, washbasin and WC. Externally there is an enclosed gravelled garden to the front and a particularly generous size predominantly lawned garden which spans the side and rear of the property and a double driveway behind which leads to a double-sized garage with one garage door and one pedestrian door.

Pudsey Town Centre offers a vast range of local facilities including schools for all ages, shops, cafes, bars and restaurants. Pudsey Park is centrally located in the town and offers a children’s playground and fabulous gardens. Out-of-town shopping on a larger scale is found at the nearby Owlcotes Shopping Centre which offers both Asda and Marks & Spencer Superstore, with bus links and New Pudsey Railway Station also being close by.

Floor Plans

Property Location

Marketed by Manning Stainton - Pudsey


By submitting this form, you accept our Terms of Use.

Disclaimer Property descriptions and related information displayed on this page are marketing materials provided by Manning Stainton - Pudsey. estateagents365.uk does not warrant or accept any responsibility for the accuracy or completeness of the property descriptions or related information provided here and they do not constitute property particulars. Please contact Manning Stainton - Pudsey for full details and further information.