Semi-detached house for sale in London W12, 6 Bedroom

London, London, UK

Quick Summary

Property Type:
Semi-detached house
Status:
For sale
Price
£ 3,750,000
Beds:
6
Baths:
4
Recepts:
3
County
London
Town
London
Outcode
W12
Location
Palgrave Road, London W12
Marketed By:
Whitman & Co
Posted
2024-04-19
W12 Rating:





More Info?
Please contact Whitman & Co on 020 3463 0632 or Request Details

Property Description

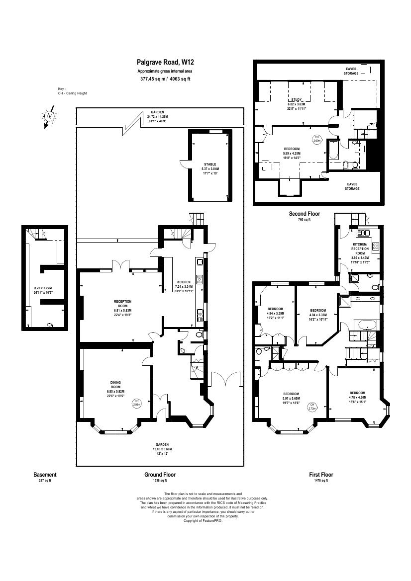
A rare to market gem. 17 Palgrave Road is an outstanding Period house located on this highly sought after residential road in the Starch Green Conservation Area. The house is positioned on a generous corner plot and is deceptively spacious totalling in excess of 4000 sqft.

Internally, the accommodation comprises; incredible and very spacious entrance hall, 22' Dining room with feature bay window, 22' South facing reception room with doors to the garden, kitchen/breakfast room, WC, six bedrooms, four bathrooms (one ensuite), first floor kitchen/reception which could form part of a house keeper/nanny annex, cellar, stable/garage.

Outside, to the rear of the property, is a fabulous South facing garden measuring 88' x 42'. It is rare to find such a garden in this area. To the side of the house is a large driveway which can accommodate a number of cars. To the front, you have a well established gated front garden.

The house is very well presented and incorporates some stunning original features. However, it also offers the incoming purchaser the chance to remodel or extend to further enhance what is undoubtedly one of the finest homes in the area.

Floor Plans

Property Location

Marketed by Whitman & Co


By submitting this form, you accept our Terms of Use.

Disclaimer Property descriptions and related information displayed on this page are marketing materials provided by Whitman & Co. estateagents365.uk does not warrant or accept any responsibility for the accuracy or completeness of the property descriptions or related information provided here and they do not constitute property particulars. Please contact Whitman & Co for full details and further information.