Semi-detached house for sale in London E4, 3 Bedroom

London, London, UK

Quick Summary

Property Type:
Semi-detached house
Status:
For sale
Price
£ 524,950
Beds:
3
Baths:
1
Recepts:
3
County
London
Town
London
Outcode
E4
Location
Amesbury Drive, London E4
Marketed By:
Coultons Estate Agents
Posted
2024-04-17
E4 Rating:





More Info?
Please contact Coultons Estate Agents on 020 8022 6391 or Request Details

Property Description

Coultons are thrilled to offer for sale this chain free three bedroom Semi Detached family home situated on the door step of Epping Forest in the sought after North Chingford area.

The property has good sized reception room as well as a further dining room, a well-equipped bathroom and a spacious kitchen on the ground floor level. There are three bedrooms with the master bedroom benefitting from a dressing room on the first floor level.

There are many well regarded schools locally, both state and private. Chingford foundation secondary school and sixth form, rated outstanding by ofsted, is within walking distance of this property.

The area of North Chingford is highly desirable with a strong family presence. The Forest, Chingford plain open spaces and Connaught Water, are just a few of the picturesque attractions right on the door step of this lovely property. There are good transport links with easy access onto the A406, Chingford station (tfl zone 5) via a hopper bus which runs along Drysdale Avenue stopping directly outside Chingford station. There are additional bus routes some direct to Stratford City and the new Olympic Park and Westfield shopping centre.

Outside the garden extends to 50ft approx. With a patio area and side access via gates. To the front of the property there is off road parking.

Situated in this highly sought after road offering a superbly sized garden with scope to extend, subject to the usual planning consents, this is an ideal home for buyers wanting to add their own stamp to a property.

An internal viewing is a must to fully appreciate what this house has to offer.

Entrance porch

entrance hall Wood flooring, large storage cupboard housing gas and electric meters.

Through lounge Double glazed windows to front aspect, wood flooring, coved to ceiling, accent wall, lighting, feature fire place with mantle surround, radiator.

Dining area Open plan with through lounge, wood flooring, double glazed patio doors, leading out to garden.

Bathroom Wood flooring, tiled walls, extractor fan, double glazed opaque windows, rolled top bath, shower cubicle, pedestal wash hand basin, radiator, low level flush W.C.

Kitchen A range of wall and base units, 1.5 stainless steel sink unit with mixer taps, double glazed window to rear aspect, double glazed door leading out to garden, tiled flooring, space and plumbing for dishwasher and washing machine, integrated electric hob, extractor hood, electric oven, space for fridge/freezer.

Front gardens Beautifully landscaped front gardens with flower bed borders, gated access.

First floor landing Wood flooring, loft hatch, double glazed windows to side aspect, radiator.

Master bedroom Double glazed windows to front aspect, wood flooring.

Dressing room Radiator, wood flooring, fitted wardrobes, double glazed windows.

Bedroom two Wood flooring, double glazed windows to rear aspect, radiator.

Bedroom three Wood flooring, fitted wardrobes, double glazed window, cupboard housing hot water cylinder.

Single garage Used for storage purposes.

Rear garden Private aspect, stunningly beautiful and well manicured rear garden comprising of large patio area, mainly laid to lawn, flower bed borders, large timber build storage shed, outside tap.

Private driveway Providing off street parking for one car.

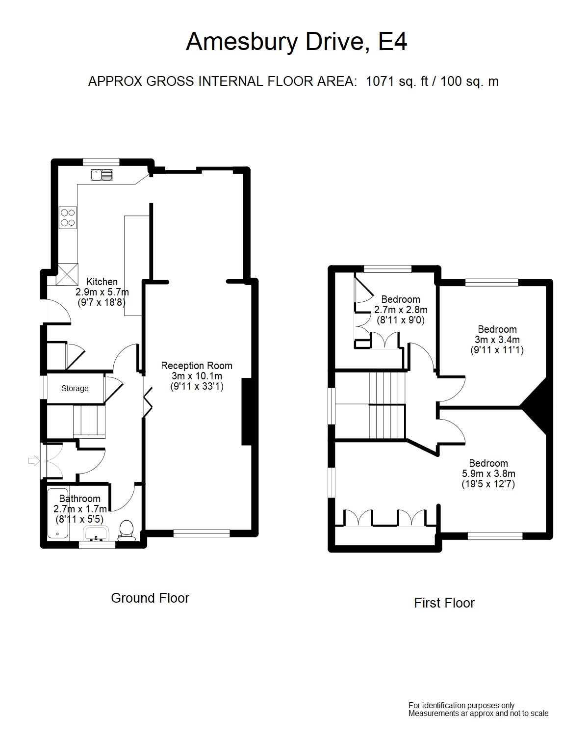
Floor Plans

Property Location

Marketed by Coultons Estate Agents



By submitting this form, you accept our Terms of Use.

Disclaimer Property descriptions and related information displayed on this page are marketing materials provided by Coultons Estate Agents. estateagents365.uk does not warrant or accept any responsibility for the accuracy or completeness of the property descriptions or related information provided here and they do not constitute property particulars. Please contact Coultons Estate Agents for full details and further information.