Semi-detached house for sale in Heanor DE75, 3 Bedroom

Heanor, Heanor, UK

Quick Summary

Property Type:
Semi-detached house
Status:
For sale
Price
£ 145,000
Beds:
3
Baths:
1
Recepts:
1
County
Derbyshire
Town
Heanor
Outcode
DE75
Location
Mundys Drive, Heanor DE75
Marketed By:
Reeds Rains - Eastwood
Posted
2024-04-26
DE75 Rating:





More Info?
Please contact Reeds Rains - Eastwood on 01773 549046 or Request Details

Property Description



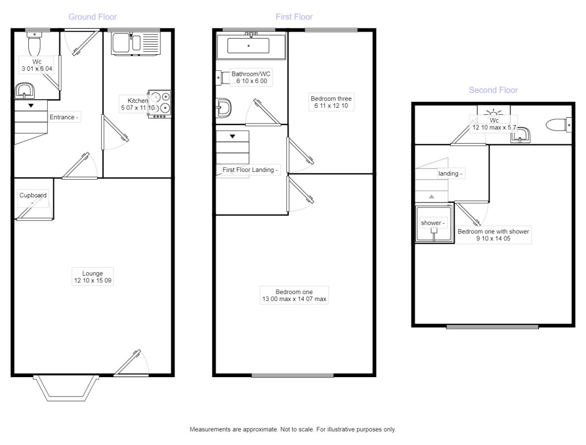
Guide price £145,000 to £150,000 en suite shower ! WC on all floors ! Three storeys ! No upward chain ! Your Move are delighted to offer for sale this three bedroom semi detached house to which a viewing is recommended to appreciate the accommodation on offer. In brief the property comprises of to the ground floor a lounge, kitchen, inner entrance hall and downstairs WC, whilst to the first floor there are two bedrooms and bathroom/WC and to the second floor there is a further bedroom with shower cubicle and door leading to a second floor WC. To the outside there is ample parking to the front with an enclosed rear garden. The property also benefits from double glazing and gas central heating. EPC Grade C.

Location

Situated in Heanor, Derbyshire. Ideal access for local transport links to include Train Station. Close to local areas/towns holding plenty of local amenities whilst being extremely ideal for commute onto the M1 or A610.

Our View

This property needs to be viewed. Benefitting from being off a small private road and having ample parking for three to four cars. Internally modernised and close to Shipley Country Park ideal for those country walks. Please call today to arrange your viewing.

Entrance

Lounge (4.80m x 3.86m)

Kitchen (3.61m x 1.70m)

Downstairs Wc

First Floor Landing

Bedroom (4.44m x 3.96m)

Bedroom (2nd) (3.91m x 2.11m)

Bathroom / WC

Bedroom (3rd) (4.39m x 3.00m)

Shower Cubicle

Cloakroom / WC

Drive

Rear Garden

Important note to purchasers:

We endeavour to make our sales particulars accurate and reliable, however, they do not constitute or form part of an offer or any contract and none is to be relied upon as statements of representation or fact. Any services, systems and appliances listed in this specification have not been tested by us and no guarantee as to their operating ability or efficiency is given. All measurements have been taken as a guide to prospective buyers only, and are not precise. Please be advised that some of the particulars may be awaiting vendor approval. If you require clarification or further information on any points, please contact us, especially if you are traveling some distance to view. Fixtures and fittings other than those mentioned are to be agreed with the seller.

/8

Floor Plans

Property Location

Marketed by Reeds Rains - Eastwood



By submitting this form, you accept our Terms of Use.

Disclaimer Property descriptions and related information displayed on this page are marketing materials provided by Reeds Rains - Eastwood. estateagents365.uk does not warrant or accept any responsibility for the accuracy or completeness of the property descriptions or related information provided here and they do not constitute property particulars. Please contact Reeds Rains - Eastwood for full details and further information.