Semi-detached house for sale in Gloucester GL2, 3 Bedroom

Gloucester, Gloucester, UK

Quick Summary

Property Type:
Semi-detached house
Status:
For sale
Price
£ 295,000
Beds:
3
Baths:
2
Recepts:
3
County
Gloucestershire
Town
Gloucester
Outcode
GL2
Location
"Greenwood" at Jessop Court, Waterwells Business Park, Quedgeley, Gloucester GL2
Marketed By:
David Wilson Homes - Rosewood Grange
Posted
2024-04-25
GL2 Rating:





More Info?
Please contact David Wilson Homes - Rosewood Grange on 01452 679763 or Request Details

Property Description

You can enjoy spacious living in this three storey home. The open-plan kitchen/dining area has a glass bay and French doors leading to your garden, filling this space with light. There is also a study, providing a handy home office. Upstairs you will find the lounge and 3 double bedrooms, the master with en suite, and a family bathroom.

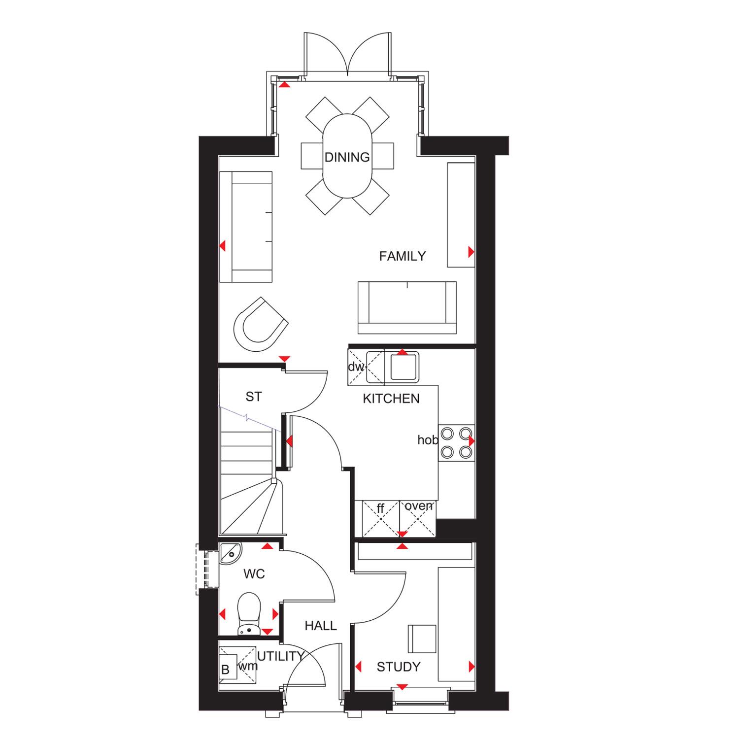
Rooms


G
  • Kitchen (3070mm x 3070mm (10'0'' x 10'0''))
  • Family / Dining (4160mm x 4569mm (13'7'' x 14'11''))
  • Study (2396mm x 1959mm (7'10'' x 6'5''))
  • Wc (1500mm x 968mm (4'11'' x 3'2''))
1
  • Lounge (4160mm x 3344mm (13'7'' x 10'11''))
  • Bedroom 1 (Double) (4160mm x 3217mm (13'7'' x 10'6''))
  • Ensuite 1 (1848mm x 1939mm (6'0'' x 6'4''))
2
  • Bedroom 2 (Double) (4160mm x 4062mm (13'7'' x 13'3''))
  • Bedroom 3 (Double) (4160mm x 3356mm (13'7'' x 11'0''))
  • Bathroom (2000mm x 1826mm (6'6'' x 5'11''))

About Rosewood Grange


Reserve selected homes by the end of May and we'll give you a £10,000 gifted deposit and an upgraded kitchen.Rosewood Grange is a development of 2,3 and 4 bedroom homes forming part of the Hunts Grove community.Your new home will be surrounded by open space, whilst still being just 6 miles from Gloucester. The city has a wide range of shops and restaurants as well as plenty of leisure activities. A variety of good schools are close by and for commuters the M5 is just 5 minutes away.

Opening Hours


12.30pm - 5.30pm Monday, 10am - 5.30pm Tuesday - Sunday

Disclaimer


Please note that all images (where used) are for illustrative purposes only.

Floor Plans

Property Location

Marketed by David Wilson Homes - Rosewood Grange


By submitting this form, you accept our Terms of Use.

Disclaimer Property descriptions and related information displayed on this page are marketing materials provided by David Wilson Homes - Rosewood Grange. estateagents365.uk does not warrant or accept any responsibility for the accuracy or completeness of the property descriptions or related information provided here and they do not constitute property particulars. Please contact David Wilson Homes - Rosewood Grange for full details and further information.