Semi-detached house for sale in Dursley GL11, 3 Bedroom

Dursley, Dursley, UK

Quick Summary

Property Type:
Semi-detached house
Status:
For sale
Price
£ 236,500
Beds:
3
Recepts:
1
County
Gloucestershire
Town
Dursley
Outcode
GL11
Location
Meadow Vale, Cam GL11
Marketed By:
Bennett Jones
Posted
2024-04-01
GL11 Rating:





More Info?
Please contact Bennett Jones on 01453 799551 or Request Details

Property Description

A three bedroom semi detached family home in a popular location comprising of entrance hall, lounge/diner, kitchen, three bedrooms and bathroom. Further benefits include double glazing, gas central heating, rear garden with decking and lawn laid to artificial grass, detached garage and off road parking to the front of the property.

Situation

The property is situated in Meadow Vale and positioned within a few minutes walk of a handful of amenities in the Woodfield area including convenience shop, hairdressers and award winning butchers with Woodfield Primary School also being within easy reach. Cam village has further shopping facilities including Tesco supermarket along with Park and Ride railway station with connections to the national rail network. The nearby town of Dursley has a wider range of shopping facilities along with Rednock Comprehensive School. The town also has recreational facilities including swimming pool, 18 hole golf course at Stinchcombe Hill. Cam is well placed for commuting to the larger centres of Gloucester, Bristol and Cheltenham via the nearby A38 giving access to the adjoining M5/M4 motorway network.

Directions

From Dursley town centre proceed north-west out of town on the A4135 (Kingshill Road) proceeding straight across the first mini roundabout. At the second mini roundabout take the first exit and proceed for approximately a quarter of a mile taking the second turning on the right into Springfield which continues into Meadow Vale. Continue along this road and the property can be located on the right hand side.

Description

This delightful recently modernised to a high standard three bedroom semi-detached family home is situated in a popular location and comprises spacious entrance hall, good size lounge/diner, modern kitchen, three bedrooms all with built in storage and family bathroom. Further benefits include double glazing, gas central heating, rear garden with decking and lawn laid to artificial grass, detached garage and off road parking for at least three vehicles.

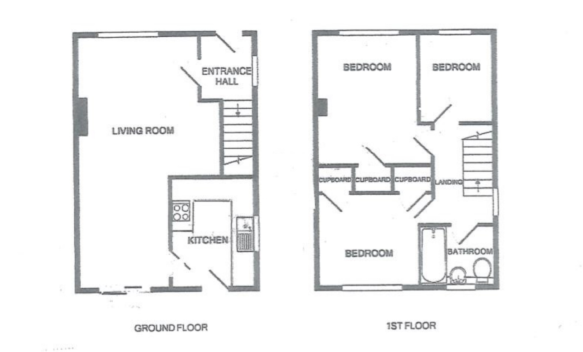
Accomodation

(Please note that our room sizes are quoted in metres to the nearest one hundredth of a metre on a wall to wall basis. The imperial equivalent (included in brackets) is only intended as an approximate guide).

On The Ground Floor

Entrance Hall

Having UPVC front door, this spacious hallway has a radiator, double glazed window to side and stairs leading to the first floor.

Lounge/Diner (7.24m x 4.11m narrowing to 2.57m (23'9" x 13'6" narrowing to 8'5"))

Double glazed window to front and large patio doors giving access on to rear garden, radiators and understair cupboard

Kitchen (2.84m x 2.34m (9'4" x 7'8"))

A modern kitchen with high gloss cream wall and base units, incorporating drawers and worktop over, tiled splash back, slate tiled flooring, hob and built in single electric oven with extract hood over, plumbing for washing machine, contemporay grey single sink and drainer unit with mixer tap over, double glazed window to side and rear door giving access to garden and garage.

On The First Floor

Landing

Double glazed window to side, radiator, and access hatch to loft space, accessed via a loft ladder to a partially boarded loft space and housing Worcester 'smart' boiler (6 months old).

Bedroom One (3.78m x 3.22m max (12'5" x 10'7" max))

Double glazed window to front, radiator and built in storage cupboard.

Bedroom Two (3.23m narrowing to 2.89m x 2.78m (10'7" narrowing to 9'6" x 9'1"))

Double glazed window to rear, radiator, two built in storage cupboards.

Bedroom Three (3.64m narrowing to 2.12m x 2.11m (11'11" narrowing to 6'11" x 6'11"))

Double glazed window to front, radiator and built in storage cupboard.

Family Bathroom

White bathroom suite comprising of low level wc, vanity wash basin with storage cupboard underneath, bath with shower head over and mixer tap, radiator, partially tiled walls and obscure double glazed window to rear.

Externally

The rear garden is bounded by fencing with good sized decking area, shed and lawn laid to artifical grass, concreted area to side with access to garage having lighting and power. There is a wooden gate giving access to the front of property where a concrete driveway and decorative slate chippings provide off street parking for a minimum of three cars.

Agents Notes

Tenure: Freehold
All main services are believed to be connected
Council Tax Band C (£1544.54 payable)

Viewing

By appointment with the owner's sole agents as over.

Misrepresentation act 1967. Messrs. Bennett Jones for themselves and for the Vendors of this property whose agents they are, give notice that: All statements contained in their particulars as to this property are made without responsibility on the part of the Agents or Vendors. None of the statements contained in their particulars as to this property is to be relied on as a statement or representation of fact. Any intending purchasers must satisfy himself by inspection or otherwise as to the correctness of the statements contained in these particulars. The Vendors do not make or give and neither the Agents nor any person in their employment has any authority to make or give any representation or warranty whatever in relation to this property.

Floor Plans

Property Location

Marketed by Bennett Jones



By submitting this form, you accept our Terms of Use.

Disclaimer Property descriptions and related information displayed on this page are marketing materials provided by Bennett Jones. estateagents365.uk does not warrant or accept any responsibility for the accuracy or completeness of the property descriptions or related information provided here and they do not constitute property particulars. Please contact Bennett Jones for full details and further information.