Semi-detached house for sale in Chelmsford CM2, 3 Bedroom

Chelmsford, Chelmsford, UK

Quick Summary

Property Type:
Semi-detached house
Status:
For sale
Price
£ 325,000
Beds:
3
Baths:
1
Recepts:
1
County
Essex
Town
Chelmsford
Outcode
CM2
Location
Aldridge Close, Chelmsford, Essex CM2
Marketed By:
Balgores Chelmsford
Posted
2019-01-07
CM2 Rating:





More Info?
Please contact Balgores Chelmsford on 01245 409333 or Request Details

Property Description

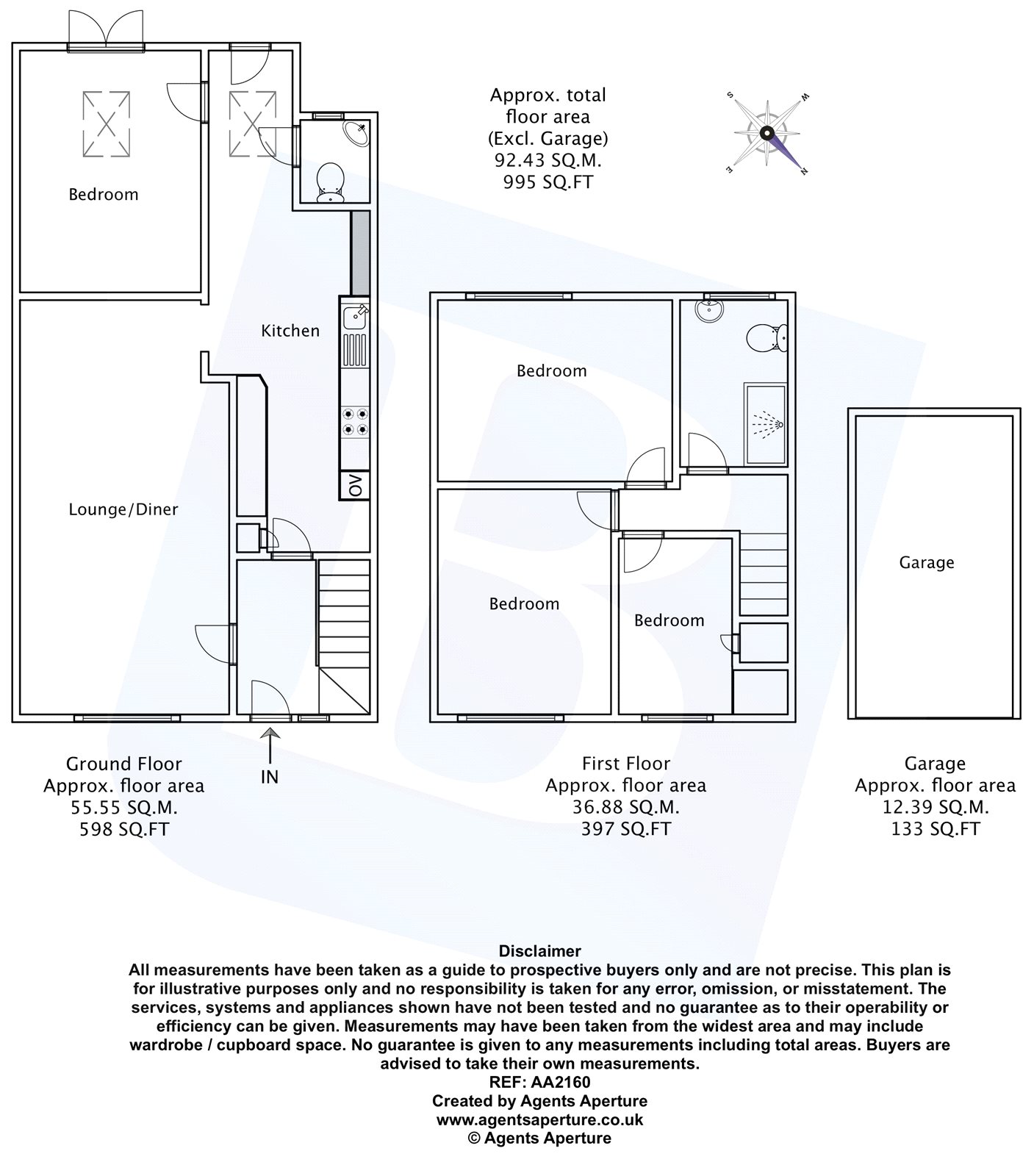
Located in the popular area of Chelmer Village is this extended three bedroom semi-detached family home.

The property benefits from a 21ft lounge, 23ft kitchen/breakfast room, downstairs cloakroom, 12ft study/bedroom four, 12ft master bedroom, 12ft bedroom two, first floor bathroom, allocated parking and a garage in a block.

The property is conveniently located for Chelmsford's vibrant City centre and all local amenities.

Entrance Hall

Double glazed window to front, textured ceiling, laminate flooring, stairs to first floor accommodation, storage cupboard, radiator, doors to:

Lounge (21' 9" x 11' 0")

Double glazed window to front, textured ceiling, laminate flooring, radiator.

Kitchen/Breakfast Room (23' 2" x 7' 10")

Double glazed door to rear, Velux window to rear, tiled flooring, radiator, a range of eye and base level units with cupboards and worktops over, sink with drainer and mixer tap, integrated Hotpoint oven plus hob and extractor over, space for further appliances, part tiled walls, wall mounted boiler.

Downstairs Cloakroom

Double glazed window to rear, tilted flooring, wall sink, low level wc, smooth ceiling.

Study/Bedroom Four (12' 8" x 8' 9")

Double glazed patio doors to rear, smooth ceiling, double glazed Velux window to rear, radiator.

First Floor Landing

Textured ceiling, loft hatch, doors to:

Bedroom One (12' 1" x 9' 5")

Double glazed window to rear, laminate flooring, textured ceiling, radiator.

Bedroom Two (12' 0" x 8' 9")

Double glazed window to front, radiator, laminate flooring, textured ceiling.

Bedroom Three (9' 2" x 6' 0")

Double glazed window to front, textured ceiling, radiator, laminate flooring, storage cupboards.

Bathroom

Double glazed window to rear, textured ceiling, tiled flooring, tiled walls, wall sink, low level wc, radiator, double shower cubicle.

Garden

9.75m - Paving area remainder laid to lawn, shrub borders, side access.

Garage

Located in a block with up and over door.

Property Exterior

Allocated parking

Floor Plans

Property Location

Marketed by Balgores Chelmsford



By submitting this form, you accept our Terms of Use.

Disclaimer Property descriptions and related information displayed on this page are marketing materials provided by Balgores Chelmsford. estateagents365.uk does not warrant or accept any responsibility for the accuracy or completeness of the property descriptions or related information provided here and they do not constitute property particulars. Please contact Balgores Chelmsford for full details and further information.