Semi-detached house for sale in Chelmsford CM1, 4 Bedroom

Chelmsford, Chelmsford, UK

Quick Summary

Property Type:
Semi-detached house
Status:
For sale
Price
£ 500,000
Beds:
4
Baths:
2
Recepts:
2
County
Essex
Town
Chelmsford
Outcode
CM1
Location
Holders Farm Cottages, Pump Lane, Springfield, Chelmsford CM1
Marketed By:
Balgores Chelmsford
Posted
2024-04-18
CM1 Rating:





More Info?
Please contact Balgores Chelmsford on 01245 409333 or Request Details

Property Description

** guide price £500,000 - £550,000 **

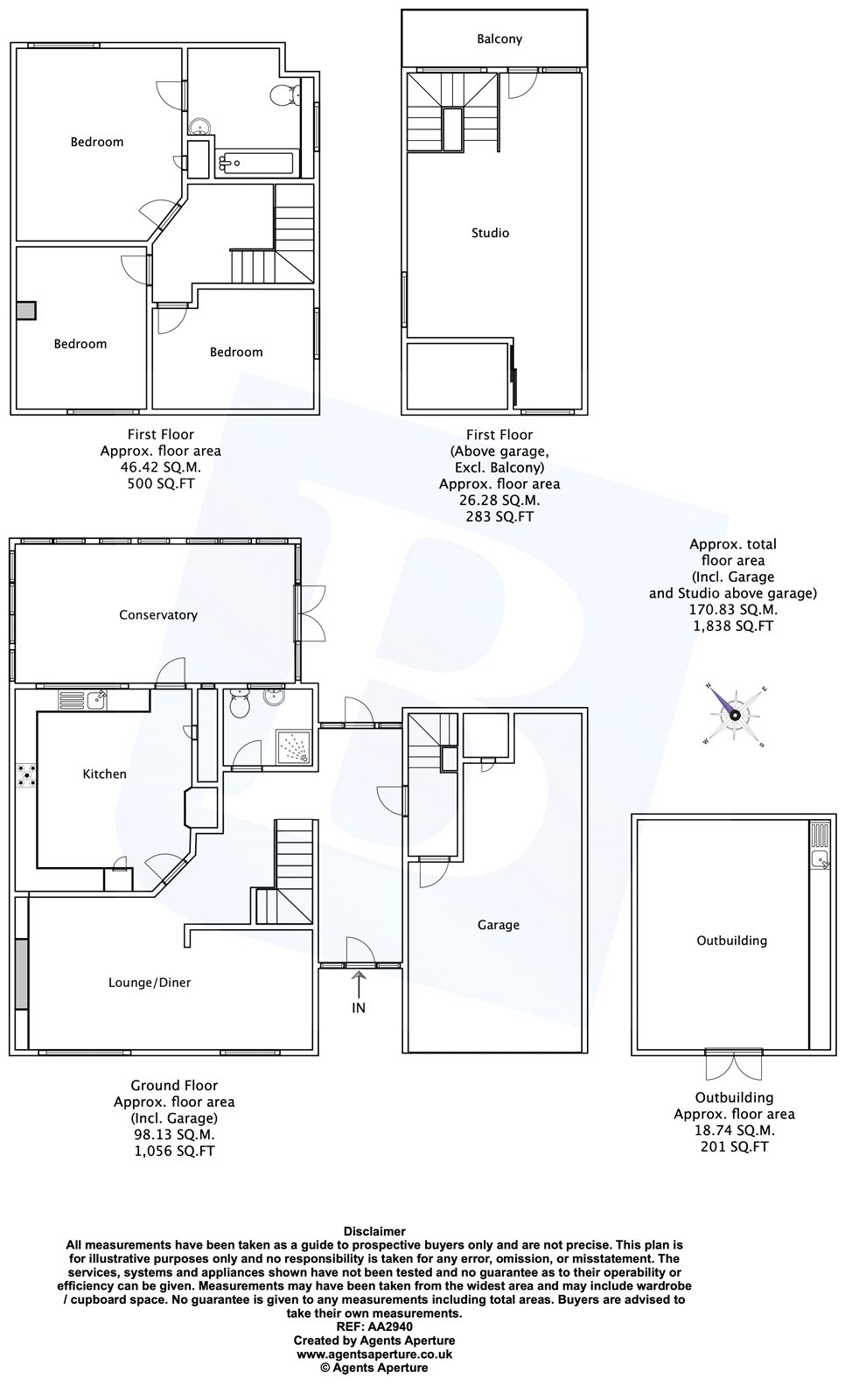
Situated in the popular location of Springfield is this extended three/four bedroom semi-detached which benefits from a 20' Lounge, 14' Kitchen/Breakfast room, ground floor shower room, 19' Conservatory, 13' master bedroom with en suite bathroom, 22' studio, 15' summerhouse, detached garage, 65' rear garden and off street parking for several vehicles.

The property is conveniently located for Chelmsford's Vibrant city centre, mainline train station and all local amenities.

Planning has been granted to turn the garage/studio into a sperate annexue

Entrance Hall

Double glazed windows to front and rear, double glazed door to rear, tiled flooring, smooth ceiling with inset spotlights, radiator, doors to:

Lounge/Diner (20' 8" x 10' 9")

Double glazed windows to front, smooth ceiling, wood style flooring, radiator

Kitchen/Breakfast Room (14' 1" x 13' 4")

Double glazed window to rear, double glazed door to rear, smooth ceiling with inset spotlights, tiled flooring, part tiled walls, range of eye and base level units with worktops over, stainless steel sink with drainer and mixer tap, wine cooler, electric oven with gas hob and extractor over, space for further appliances

Conservatory (19' 9" x 8' 8")

Double glazed windows to side and rear, double glazed patio doors to side, radiator, plumbing for appliances

Downstairs Shower Room

Double glazed window to rear, tiled flooring, part tiled flooring, smooth ceiling with inset spot lights, low level WC, wall mounted wash hand basin, shower cubicle

Landing

Smooth ceiling, doors to:

Bedroom One (13' 1" x 11' 7")

Double glazed window to rear, smooth ceiling, radiator

En Suite

Double glazed to rear, tiled flooring with part tiled walls, smooth ceiling with inset spotlights, low level WC, wall mounted wash hand basin, panelled bath with shower attachment over

Bedroom Two (10' 9" x 8' 10")

Double glazed to front, smooth ceiling, radiator

Bedroom Three (11' 6" x 8' 2")

Double glazed window to side, smooth ceiling, air conditioning

Garden

19.8m - shingled patio area, laid to lawn, mature shrub boarders, side access

Summer House (15' 8" x 12' 7")

Power and lighting

Garage (22' 9" x 12' 3")

Power and lighting, stairs to studio, air conditioning

Studio (22' 9" x 12' 1")

Double glazed window to front and rear, double glazed door to balcony, smooth ceiling with inset spotlights, air conditioning

Front Of Property

Off street parking for several vehicles

Floor Plans

Property Location

Marketed by Balgores Chelmsford



By submitting this form, you accept our Terms of Use.

Disclaimer Property descriptions and related information displayed on this page are marketing materials provided by Balgores Chelmsford. estateagents365.uk does not warrant or accept any responsibility for the accuracy or completeness of the property descriptions or related information provided here and they do not constitute property particulars. Please contact Balgores Chelmsford for full details and further information.