Semi-detached house for sale in Bradford BD6, 3 Bedroom

Bradford, Bradford, UK

Quick Summary

Property Type:
Semi-detached house
Status:
For sale
Price
£ 105,000
Beds:
3
Baths:
1
County
West Yorkshire
Town
Bradford
Outcode
BD6
Location
Grayshon Drive, Wibsey, Bradford BD6
Marketed By:
Your Move - Wibsey
Posted
2024-05-15
BD6 Rating:





More Info?
Please contact Your Move - Wibsey on 01274 649117 or Request Details

Property Description



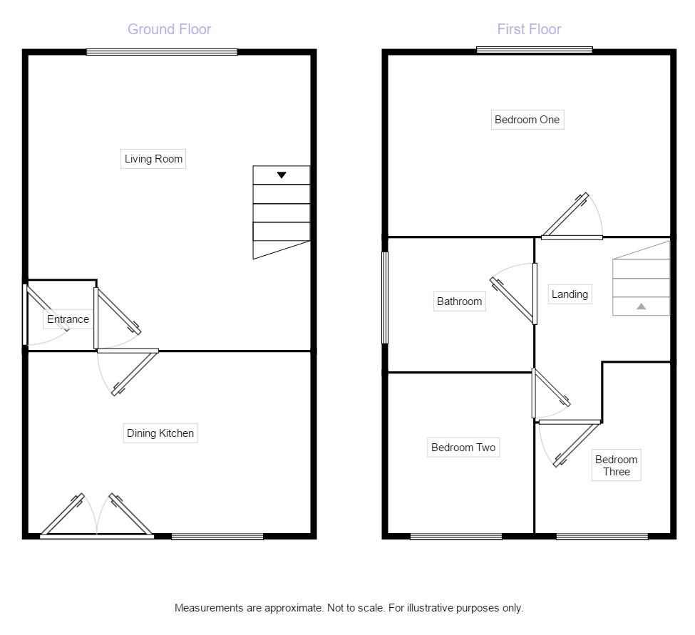
***A three bedroom semi detached located on A popular development in wibsey***Would suit a multitude of buyers, call the office to arrange a viewing. The property briefly comprises, Entrance Vestibule leading into the Living Room, having a gas fire with modern surround and hearth. Central heating radiator, window to the front elevation and an open plan staircase rises to the first floor landing. The Dining Kitchen offers a range of wall and base units with contrasting work surfaces and incorporating a sink and drainer. Integrated oven and hob, plumbing for washing machine, space for fridge freezer and central heating radiator. Window and patio doors lead out to the rear garden. To the First Floor has the Master Bedroom with central heating radiator and window to the front elevation. Bedroom Two has a central heating radiator and window to the rear elevation Bedroom Three have has a central heating radiator and window to the rear elevation. The Bathroom has a three piece suite comprising of a bath with shower over, WC and wash hand basin, central heating radiator and window to the side elevation. Externally to the front has a lawn with drive to the side leading to the Garage To the rear has a lawn. EPC rating C.

Location

Located in the area of Wibsey, situated on a popular residential development, amenities situated nearby, access to local schools and public transportation. The M606 provides commuting to major cities.

Our View

Are you looking for a family home, a first home, or an investment, look no further this three bedroom semi detached maybe what you are searching for, call the office to arrange a viewing.

Main Accommodation

Entrance Vestibule

Living Room (4.06m (Max ) x 4.87m)

Dining Kitchen (2.58m x 4.04m)

Master Bedroom (2.61m x 4.06m)

Bedroom 2 (3.37m x 2.11m)

Bedroom 3 (3.39m x 1.85m)

Bathroom (2.11m x 1.70m)

Exterior

Important note to purchasers:

We endeavour to make our sales particulars accurate and reliable, however, they do not constitute or form part of an offer or any contract and none is to be relied upon as statements of representation or fact. Any services, systems and appliances listed in this specification have not been tested by us and no guarantee as to their operating ability or efficiency is given. All measurements have been taken as a guide to prospective buyers only, and are not precise. Please be advised that some of the particulars may be awaiting vendor approval. If you require clarification or further information on any points, please contact us, especially if you are traveling some distance to view. Fixtures and fittings other than those mentioned are to be agreed with the seller.

/3

Floor Plans

Property Location

Marketed by Your Move - Wibsey



By submitting this form, you accept our Terms of Use.

Disclaimer Property descriptions and related information displayed on this page are marketing materials provided by Your Move - Wibsey. estateagents365.uk does not warrant or accept any responsibility for the accuracy or completeness of the property descriptions or related information provided here and they do not constitute property particulars. Please contact Your Move - Wibsey for full details and further information.