Semi-detached house for sale in Blackwood NP12, 3 Bedroom

Blackwood, Blackwood, UK

Quick Summary

Property Type:
Semi-detached house
Status:
For sale
Price
£ 114,950
Beds:
3
County
Caerphilly
Town
Blackwood
Outcode
NP12
Location
Penylan Road, Argoed, Blackwood NP12
Marketed By:
Roberts Estate Agents - Blackwood
Posted
2024-04-04
NP12 Rating:





More Info?
Please contact Roberts Estate Agents - Blackwood on 01495 522840 or Request Details

Property Description



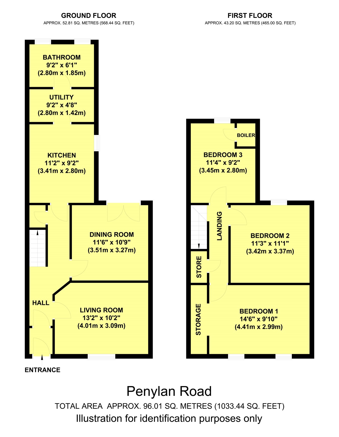
This well maintained semi detached family home situated in Argoed is close to all local amenities, schools and has good transport links to the surrounding areas. Further benefiting from uPVC double glazing and combi central heating. To the ground floor is an entrance hallway, living room, dining room with patio doors accessing the rear garden, kitchen, utility room and ground floor bathroom. To the first floor located off the landing there are three bedrooms. Outside benefits from a low maintenance garden with off road parking. Viewings are highly recommended to fully appreciate all that this family home has to offer.


Floor Plans

Property Location

Marketed by Roberts Estate Agents - Blackwood


By submitting this form, you accept our Terms of Use.

Disclaimer Property descriptions and related information displayed on this page are marketing materials provided by Roberts Estate Agents - Blackwood. estateagents365.uk does not warrant or accept any responsibility for the accuracy or completeness of the property descriptions or related information provided here and they do not constitute property particulars. Please contact Roberts Estate Agents - Blackwood for full details and further information.