Semi-detached house for sale in Bathgate EH48, 3 Bedroom

Bathgate, Bathgate, UK

Quick Summary

Property Type:
Semi-detached house
Status:
For sale
Price
£ 169,000
Beds:
3
Baths:
2
Recepts:
2
County
West Lothian
Town
Bathgate
Outcode
EH48
Location
Leyland Road, Bathgate EH48
Marketed By:
Your Move
Posted
2018-09-09
EH48 Rating:





More Info?
Please contact Your Move on 01506 674010 or Request Details

Property Description



* Delightful semi detached townhouse with garage

* Lounge

* Breakfasting Kitchen

* Impressive master bedroom with en suite showerroom

* 2 Bedrooms

* Family Bathroom

* Rear garden with decked area

* Viewing Recommended

Description

Appealing semi detached townhouse situated in the popular Wester Inch development in Bathgate, ideally positioned to take advantage of Bathgate's excellent commuting links, local primary and secondary schools. An ideal purchase for young or growing families. The property enjoys spacious, flexible accommodation over 3 levels comprising: Lounge, breakfasting kitchen, impressive master bedroom suite occupying the top floor, 2 further bedrooms, family bathroom, utility room and cloaks/WC. Externally, the property benefits from garden area to front and rear garden with feature decked area. The single garage located to the rear adds further appeal and early viewing is recommended.

Location

Bathgate has a range of local shops, schools, leisure facilities and attractive walkways. The town also has a mainline railway station servicing both Edinburgh and Glasgow. Bathgate also offers excellent commuting links via the M8 motorway network to Glasgow and Edinburgh.

Our View

Appealing semi detached townhouse situated in the popular Wester Inch development in Bathgate, ideally positioned to take advantage of Bathgate's excellent commuting links, local primary and secondary ideal purchase for young or growing families, the property enjoys spacious, flexible accommodation over 3 levels, garden and garage .Early viewing is recommended.

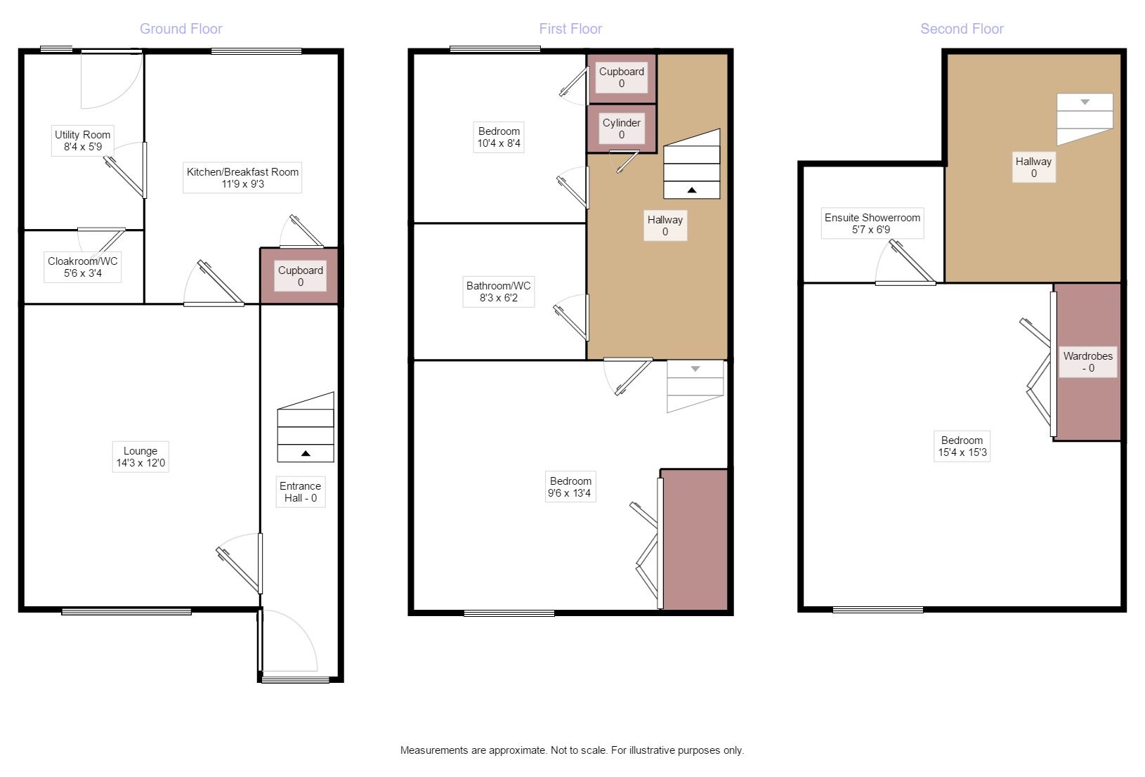
Lounge (4.34m x 3.66m)

Kitchen / Breakfast Room (3.58m x 2.82m)

Utility Room (2.54m x 1.75m)

Cloakroom / WC (1.02m x 1.68m)

Bedroom (4.06m x 2.84m)

Bathroom / WC (1.88m x 2.51m)

Bedroom (2nd) (3.07m x 2.54m)

Bedroom (3rd) (4.65m x 4.67m)

En-Suite Showerroom (1.70m x 2.06m)

Important note to purchasers:

We endeavour to make our sales particulars accurate and reliable, however, they do not constitute or form part of an offer or any contract and none is to be relied upon as statements of representation or fact. Any services, systems and appliances listed in this specification have not been tested by us and no guarantee as to their operating ability or efficiency is given. All measurements have been taken as a guide to prospective buyers only, and are not precise. Please be advised that some of the particulars may be awaiting vendor approval. If you require clarification or further information on any points, please contact us, especially if you are traveling some distance to view. Fixtures and fittings other than those mentioned are to be agreed with the seller.

/3

Floor Plans

Property Location

Marketed by Your Move



By submitting this form, you accept our Terms of Use.

Disclaimer Property descriptions and related information displayed on this page are marketing materials provided by Your Move. estateagents365.uk does not warrant or accept any responsibility for the accuracy or completeness of the property descriptions or related information provided here and they do not constitute property particulars. Please contact Your Move for full details and further information.