Semi-detached bungalow for sale in Glasgow G78, 3 Bedroom

Glasgow, Glasgow, UK

Quick Summary

Property Type:
Semi-detached bungalow
Status:
For sale
Price
£ 135,000
Beds:
3
Baths:
1
County
Glasgow
Town
Glasgow
Outcode
G78
Location
Divernia Way, Barrhead G78
Marketed By:
Barrhead Property Centre
Posted
2019-05-18
G78 Rating:





More Info?
Please contact Barrhead Property Centre on 0141 376 9571 or Request Details

Property Description

A well presented modern semi detached villa offering spacious family accommodation. This property is situated within easy reach of public transport links, local schooling and shopping facilities. The accommodation comprises a welcoming reception hallway, downstairs cloakroom, lounge, dining room with french door to rear gardens, modern kitchen, three bedrooms and modern bathroom. The property benefits from double glazing, gas central heating, two car mono bloc driveway, access to private communal play park and well maintained gardens to the front, side and rear. Early internal inspection is highly recommended to fully appreciate the accommodation on offer.

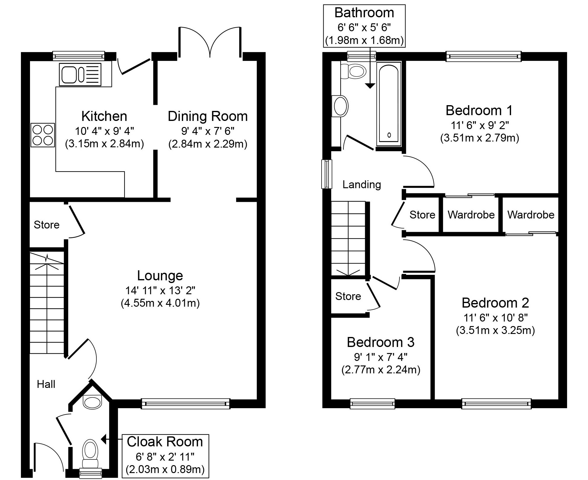
Room Dimensions

Lounge – 14`11 x 13`2
Dining Room – 9`4 x 7`6
Kitchen – 10`4 x 9`4
Cloakroom – 6`8 x 2`11
Master Bedroom – 11`6 x 9`2
Bedroom Two – 11`6 x 10`8
Bedroom Three – 9`1 x 7`4
Bathroom – 6`6 x 5`6

The above information is believed to be correct but does not form part of any contract or agreement. All measurements are maximum widths and lengths and include any recess.

** free mortgage advice **

To receive further advice on the most competitive mortgage product, please do not hesitate to contact our mortgage professionals Hugh Lynch or Ian Campbell to arrange a suitable appointment.

Your home may be repossessed if
you do not keep up repayments on
your mortgage.


Valuation of your own property


If you would like to know how much your own property would achieve in today’s market we are pleased to offer a free market appraisal with no obligation.


To view contact


Barrhead Property Centre
74 Cross Arthurlie Street
Barrhead
Glasgow
G78 1RP

T F

Floor Plans

Property Location

Marketed by Barrhead Property Centre


By submitting this form, you accept our Terms of Use.

Disclaimer Property descriptions and related information displayed on this page are marketing materials provided by Barrhead Property Centre. estateagents365.uk does not warrant or accept any responsibility for the accuracy or completeness of the property descriptions or related information provided here and they do not constitute property particulars. Please contact Barrhead Property Centre for full details and further information.