Property for sale in Wembley HA9, 4 Bedroom

Wembley, Wembley, UK

Quick Summary

Property Type:
Property
Status:
For sale
Price
£ 875,000
Beds:
4
Baths:
2
Recepts:
1
County
London
Town
Wembley
Outcode
HA9
Location
Beechcroft Gardens, Wembley Park HA9
Marketed By:
Foxtons - Wembley
Posted
2024-04-18
HA9 Rating:





More Info?
Please contact Foxtons - Wembley on 020 8033 7321 or Request Details

Property Description

Set across two floors, this bright and airy four bedroom house offers a generous living space with stylish and modern interiors, featuring a lovely private garden.

Ideally located in Wembley Park, the property is situated close to local shops, bars and restaurants. The closest transport link being Wembley Park.

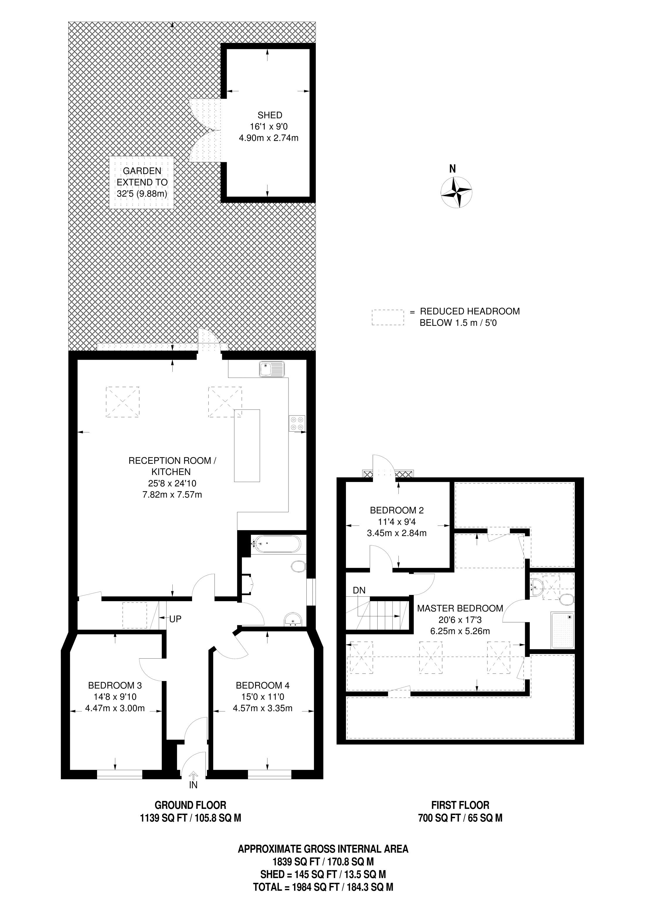
Floor Plans

Property Location

Marketed by Foxtons - Wembley


By submitting this form, you accept our Terms of Use.

Disclaimer Property descriptions and related information displayed on this page are marketing materials provided by Foxtons - Wembley. estateagents365.uk does not warrant or accept any responsibility for the accuracy or completeness of the property descriptions or related information provided here and they do not constitute property particulars. Please contact Foxtons - Wembley for full details and further information.