Property for sale in Bristol BS30, 2 Bedroom

Bristol, Bristol, UK

Quick Summary

Property Type:
Property
Status:
For sale
Price
£ 265,995
Beds:
2
Recepts:
1
County
Bristol
Town
Bristol
Outcode
BS30
Location
"The Hazel" at Mill Lane, Bitton, Bristol BS30
Marketed By:
Linden Homes - Bitton Mill
Posted
2018-09-08
BS30 Rating:





More Info?
Please contact Linden Homes - Bitton Mill on 0117 444 9704 or Request Details

Property Description

Not to be missed! Stunning 2 bedroom coach house with ground floor garage. Featuring a spacious open plan kitchen/dining/living area, 2 excellent size bedrooms with an ensuite to the master. Perfect for downsizers or first time buyers alike. Situated in the village of Bitton between Bath & Bristol.

Available with Help to Buy and its not just for first time buyers - ask for details.

Rooms


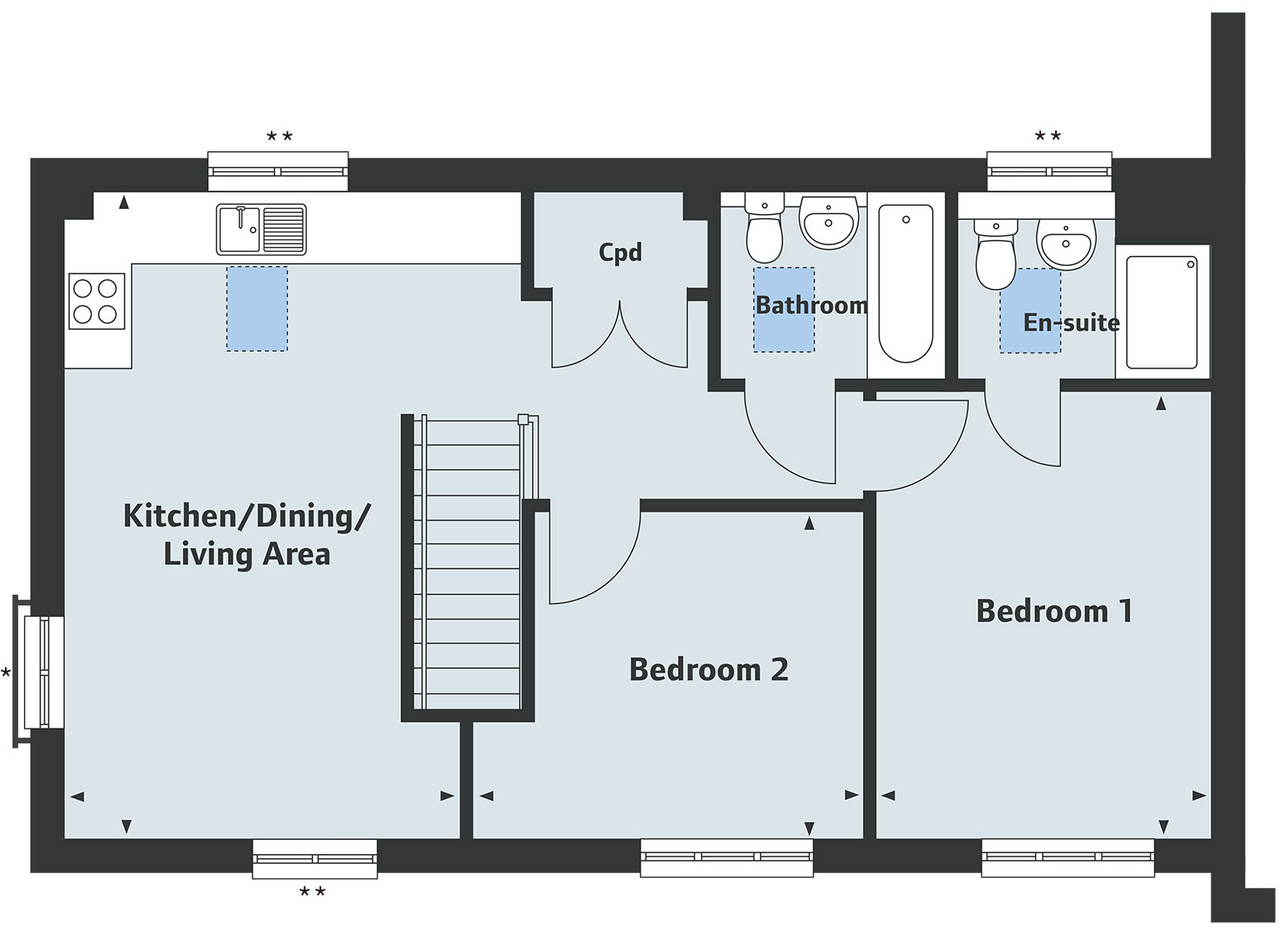
Ground Floor
    First Floor
    • Kitchen/Dining/Living Area (5922 x 4206mm 19'5" x 13'10")
    • Bedroom 1 (4116 x 3053mm 13'6" x 10'0")
    • Bedroom 2 (3617 x 3024mm 11'10" x 9'11")

    About Bitton Mill


    Bitton Mill is a stunning collection of 3 & 4 bedroom houses for sale in Bitton, perfectly located between Bristol & Bath. Home to sell- Ask about Part Exchange† or Assisted Move‡. Or use Help to Buy* for your first, or next move.

    Situated at the heart of the delightful village of Bitton in South Gloucestershire, our superb collection of 3 & 4 bedroom houses for sale in Bitton is close to a range of village amenities, yet still with easy access to Bristol.

    Just two and a half miles from the market town of Keynsham, 7 miles from Bristol city centre and 6 miles from Bath, this highly desirable location is set within stunning countryside with excellent travel links and a host of attractions nearby. Property for sale in Bitton benefits from a nearby local convenience store, churches and schools for all ages. There’s also two local pubs within easy reach, making new houses in Bitton an ideal option for family living.

    All images show typical Linden Homes and are used for illustrative purposes only - images may include optional upgrades at additional cost. Individual features such as windows, brick and other material colours may vary.

    Opening Hours


    Mon 11:00 - 18:00, Tue 11:00 - 18:00, Wed 11:00 - 18:00, Thu 11:00 - 18:00, Fri 11:00 - 18:00, Sat 11:00 - 18:00, Sun 11:00 - 18:00

    Disclaimer


    ^Terms and conditions apply. Available on selected homes only on reservations up to 09/09/18 and legal completion on or before 09/09/18. Stamp Duty up to a maximum of £20,000 will be paid upon legal completion. Not available in conjunction with any other offer.

    Floor Plans

    Property Location

    Marketed by Linden Homes - Bitton Mill


    By submitting this form, you accept our Terms of Use.

    Disclaimer Property descriptions and related information displayed on this page are marketing materials provided by Linden Homes - Bitton Mill. estateagents365.uk does not warrant or accept any responsibility for the accuracy or completeness of the property descriptions or related information provided here and they do not constitute property particulars. Please contact Linden Homes - Bitton Mill for full details and further information.