End terrace house for sale in York YO10, 3 Bedroom

York, York, UK

Quick Summary

Property Type:
End terrace house
Status:
For sale
Price
£ 230,000
Beds:
3
Baths:
1
Recepts:
1
County
North Yorkshire
Town
York
Outcode
YO10
Location
Tuke Avenue, York YO10
Marketed By:
Preston Baker - York
Posted
2024-04-07
YO10 Rating:





More Info?
Please contact Preston Baker - York on 01904 595619 or Request Details

Property Description

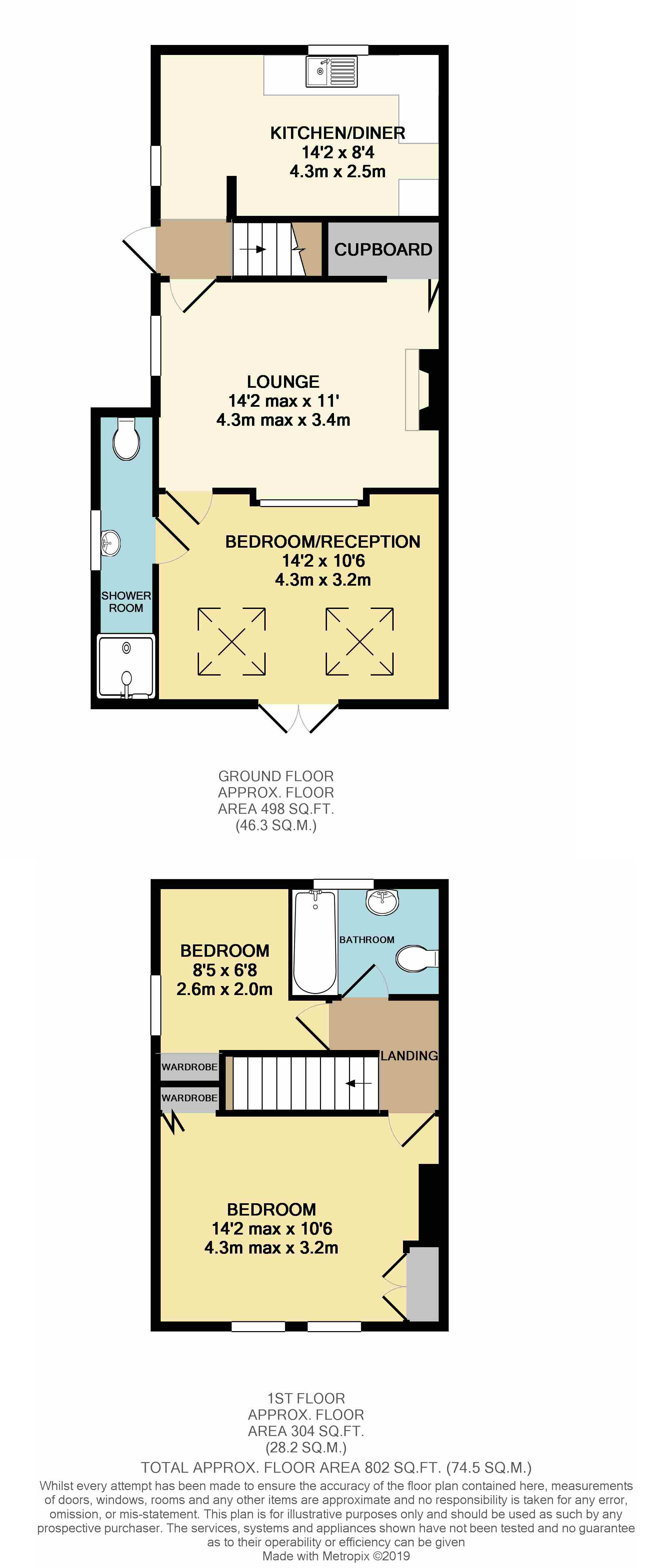
Great investor family home | well presented extended accommodation | ground floor double bedroom with ensuite | two 1st floor bedrooms | good size kitchen diner and lounge | delightful enclosed rear garden | driveway with off street parking

The ground floor offers a good size kitchen diner with a range of fitted units, free standing cooker and ample space for appliances and a dining table, a well-proportioned lounge with feature fireplace and understairs cupboard, and leading through, a fabulous ground floor double bedroom featuring two roof lights, French door to the rear garden and an ensuite with walk-in shower, ladder towel radiator and two piece whiter suite. This would be an ideal for a dependant relative or teenager.

Upstairs holds two bedrooms, a large double bedroom and a third single, both with fitted wardrobes, and a family bathroom with white suite featuring an electric shower over bath and a ladder towel radiator

Outside offers a driveway to the front providing off street parking and a side path which leads through secure gated access to a delightful enclosed family garden with paved patio, lawn and shed.

Floor Plans

Property Location

Marketed by Preston Baker - York


By submitting this form, you accept our Terms of Use.

Disclaimer Property descriptions and related information displayed on this page are marketing materials provided by Preston Baker - York. estateagents365.uk does not warrant or accept any responsibility for the accuracy or completeness of the property descriptions or related information provided here and they do not constitute property particulars. Please contact Preston Baker - York for full details and further information.