End terrace house for sale in Stroud GL6, 3 Bedroom

Stroud, Stroud, UK

Quick Summary

Property Type:
End terrace house
Status:
For sale
Price
£ 425,000
Beds:
3
Baths:
2
Recepts:
2
County
Gloucestershire
Town
Stroud
Outcode
GL6
Location
The Yarn Store, Longfords Mill, Minchinhampton, Stroud GL6
Marketed By:
Hamptons International - Stroud
Posted
2018-11-05
GL6 Rating:





More Info?
Please contact Hamptons International - Stroud on 01453 571903 or Request Details

Property Description

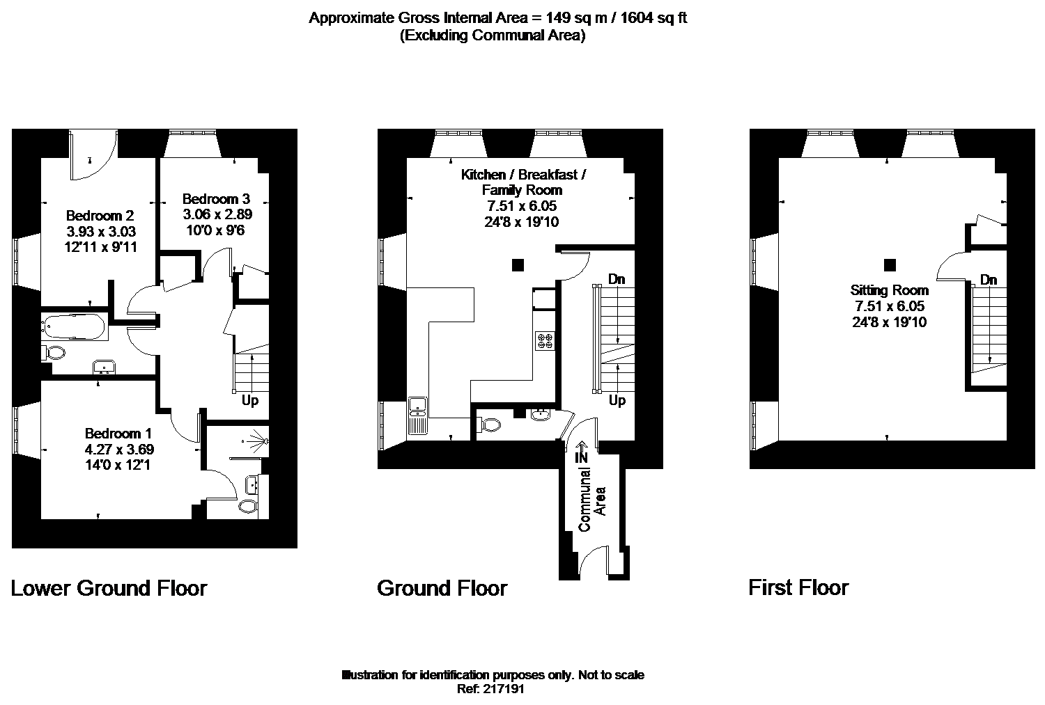
Forming part of this beautiful former mill building and occupying a picturesque setting overlooking the mill race and Gatcombe Water, lies this wonderful period home. This pretty Grade II listed property combines the comforts of contemporary living whilst exhibiting great character, features are peppered throughout and include exposed stone work, lintels and deep windows sills. The living space is flooded with light with both the sociable family kitchen and sitting room enjoying a double aspect outlook with waterside views. Accommodation is positioned across three floors, the well equipped kitchen boasts an array of storage, oak worktops, induction hob as well as room for living and dining. The sitting room with study area is similarly impressive owing to its generous size, period features and elevated outlook. All three bedrooms are positioned on the lower ground floor with bedroom three providing a second entrance directly onto the garden. The master bedroom is served by a stylish ensuite shower room whilst the remaining two bedrooms have use of family bathroom. A useful cloakroom is positioned on the ground floor. The property enjoys two entrances. The main entrance located to the front of the property and leading into an inner hall, with the second entrance located to the rear of the property on the lower ground floor.

Situation
Longford's Mill history in based around the manufacturing of the wool and is located between Nailsworth, Avening and Minchinhampton. The Cotswold town of Minchinhampton provides a selection of shops, medical facilities, library, primary school and local inns. Minchinhampton Common, some 600 acres of open common land vested in the National Trust, offers opportunities for sporting activities including walking, horse riding & golf. On the far side of Minchinhampton can be found 2 further golf courses. Nearby Nailsworth is another buzzing market town offering a wide selection of shops, services and restaurants, including delicatessen, florist, craft shops and supermarkets. The proximity of the A46 Bath-Cheltenham Road ensures access to a number of major towns and routes including the M4 & M5 motorways. Stroud, the principal urban centre locally, is approx. 4 miles away where more extensive educational, shopping and leisure facilities are available. For the long distance traveller, a main line railway station with regular Intercity services to London (Paddington) can be found at Stroud and Kemble. At Cam trains to Bristol Parkway can be located.

Outside
A pretty garden laid to lawn with a paved seating terrace lies to the rear of the property. The property enjoys private parking for two cars.

Floor Plans

Property Location

Marketed by Hamptons International - Stroud



By submitting this form, you accept our Terms of Use.

Disclaimer Property descriptions and related information displayed on this page are marketing materials provided by Hamptons International - Stroud. estateagents365.uk does not warrant or accept any responsibility for the accuracy or completeness of the property descriptions or related information provided here and they do not constitute property particulars. Please contact Hamptons International - Stroud for full details and further information.