End terrace house for sale in Livingston EH53, 2 Bedroom

Livingston, Livingston, UK

Quick Summary

Property Type:
End terrace house
Status:
For sale
Price
£ 143,000
Beds:
2
Baths:
1
Recepts:
2
County
West Lothian
Town
Livingston
Outcode
EH53
Location
Limebank Park, East Calder EH53
Marketed By:
Property Connections Estate Agency LTD
Posted
2024-04-03
EH53 Rating:





More Info?
Please contact Property Connections Estate Agency LTD on 01506 674136 or Request Details

Property Description

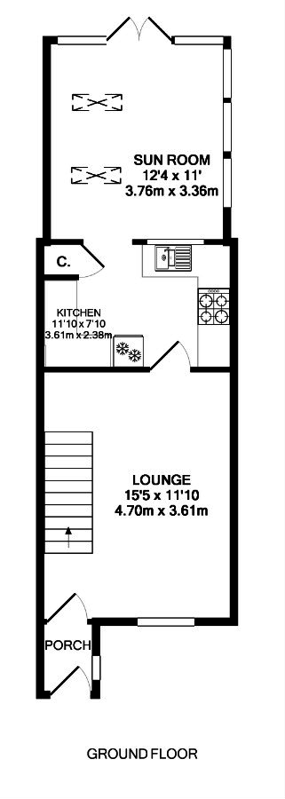
Property comprises: Entrance vestibule, lounge, sun room, kitchen, two double bedrooms, luxury bathroom and two car driveway.

The entrance porch boasts a window for natural daylight and offers storage and hanging space for outerwear.

The lounge enjoys fresh, modern décor with stylish carpet flooring and comfortably accommodates both lounge and side furniture.

The sun room overlooking the rear garden is an excellent addition to the home with sky lights and rear and side elevation windows bringing lots of natural daylight into the room. Stylishly decorated and practically completed with contemporary wood effect laminate flooring.

The kitchen boasts an excellent range of base and wall mounted units with contrasting worktop and splashback. Integrated appliances include the gas hob with electric oven and there are appliance spaces for a washing machine, slimline dishwasher and upright fridge freezer, all of which are included in the sale.

On the upper level, both bedrooms are double in size with built in and stand alone wardrobes, offering excellent storage.

The luxury bathroom is fitted with a white suite and boasts a double ended jacuzzi bath with a mains fed shower with glazed screen over and contemporary wall tiling to the bath area and wash hand basin splash back. In addition, there is a tall, wall mounted vanity storage unit.

Externally, the front garden is laid entirely with mono block, offering parking for two vehicles. The south west facing rear garden is ideally placed to make the most of any sunshine and is laid mainly to grass with areas of decorative paving and timber decking.

Included in the sale are all fitted floor coverings, window blinds, curtains and curtain poles, mirror wardrobes, and the garden shed. The fridge freezer, washing machine and dish washer are also included but not warranted.

Lounge 15' 6" x 11' 10" (4.72m x 3.61m)

sun room 12' 4" x 11' (3.76m x 3.35m)

kitchen 11' 10" x 7' 10" (3.61m x 2.39m)

bedroom one 11' 10" x 8' 8" (3.61m x 2.64m)

bedroom two 10' 5" x 8' 6" (3.18m x 2.59m)

bathroom 6' 11" x 5' 7" (2.11m x 1.7m)

Floor Plans

Property Location

Marketed by Property Connections Estate Agency LTD


By submitting this form, you accept our Terms of Use.

Disclaimer Property descriptions and related information displayed on this page are marketing materials provided by Property Connections Estate Agency LTD. estateagents365.uk does not warrant or accept any responsibility for the accuracy or completeness of the property descriptions or related information provided here and they do not constitute property particulars. Please contact Property Connections Estate Agency LTD for full details and further information.