End terrace house for sale in Hull HU7, 4 Bedroom

Hull, Hull, UK

Quick Summary

Property Type:
End terrace house
Status:
For sale
Price
£ 170,000
Beds:
4
Baths:
2
Recepts:
2
County
East Riding of Yorkshire
Town
Hull
Outcode
HU7
Location
Haigh Park, Kingswood, Hull HU7
Marketed By:
Symonds and Greenham
Posted
2018-09-15
HU7 Rating:





More Info?
Please contact Symonds and Greenham on 01482 763723 or Request Details

Property Description

Four double bedrooms - integral garage - beautifully decorated throughout

This three storey townhouse is situated on the east Hull development of Kingswood close to well regarded schools and a host of local amenities including a super-market, a cinema and several restaurants and retail outlets. The property would ideally suit a family due as it is well decorated throughout and benefits from ample living space. The property is arranged over three floors and boasts a stunning modern kitchen/diner leading through to a lovely sitting room, a convenient downstairs WC, a gorgeous living room, four double bedrooms with en-suite shower-room, a family bathroom, integral garage and a generous rear garden.

Don't miss out on this wonderful family home...Book your viewing today!

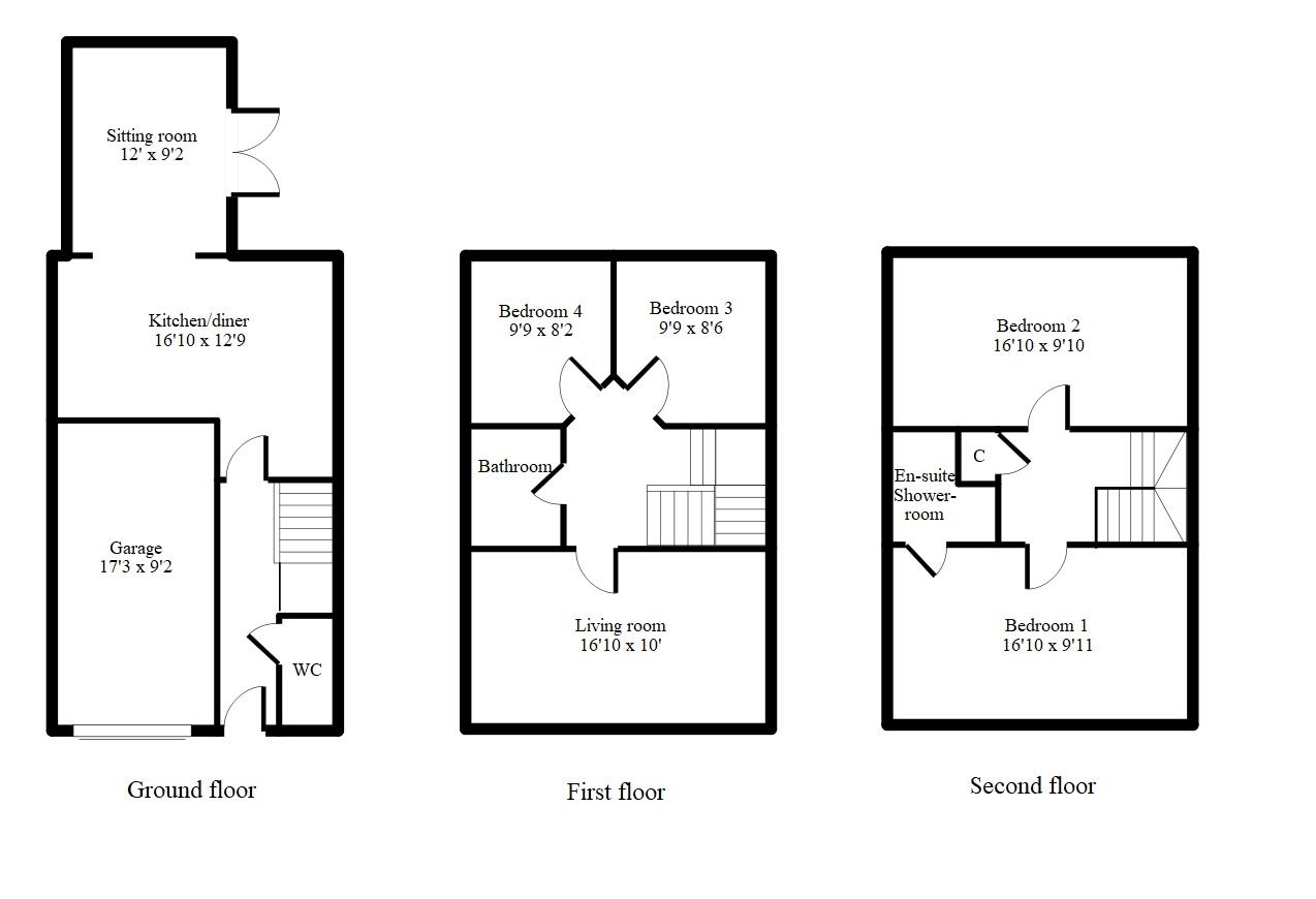
Ground Floor

Entrance Hall

With stairs to first floor, door to kitchen/diner and door to...

Downstairs Wc

With low level WC and pedestal hand basin

Kitchen/Diner (5.13m max x 3.89m max (16'10 max x 12'9 max))

With a range of eye level and base level units with complimenting work surfaces, sink unit, electric cooker, gas hob with over head extractor fan, integrated fridge, integrated freezer, integrated dishwasher, plumbing for washing machine and arch way through to...

Sitting Room (3.66m max x 2.79m max (12' max x 9'2 max))

With french doors to rear garden

First Floor

Living Room (5.13m max x 3.05m max (16'10 max x 10' max))

Bedroom 3 (2.97m max x 2.59m max (9'9 max x 8'6 max))

Bedroom 4 (2.97m max x 2.49m max (9'9 max x 8'2 max))

Bathroom

With low level WC, pedestal hand basin, panelled bath with over head shower, tiled to splash back areas

Second Floor

Bedroom 1 (5.13m max x 3.02m max (16'10 max x 9'11 max))

With door to...

En-Suite Shower Room

With low level WC, vanity hand basin, shower cubicle with over head shower, floor to ceiling tiles.

Bedroom 2 (5.13m max x 3.00m max (16'10 max x 9'10 max))

With fitted wardrobes

Outside

The front of the property is mainly laid to lawn with a concrete side drive leading to an integral garage with an electric up and over door.
The rear garden is block paved with some low maintenance shrubbery.

Solar Panels

The property benefits from solar panels, further details regarding the solar panels are available upon request.

Central Heating

The property has the benefit of gas central heating (not tested).

Double Glazing

The property has the benefit of double glazing.

Disclaimer

Symonds + Greenham do their utmost to ensure all the details advertised are correct however any viewer or potential buyer are advised to conduct their own survey prior to making an offer.

Viewings

Please contact Symonds + Greenham on to arrange a viewing on this property.

Floor Plans

Property Location

Marketed by Symonds and Greenham



By submitting this form, you accept our Terms of Use.

Disclaimer Property descriptions and related information displayed on this page are marketing materials provided by Symonds and Greenham. estateagents365.uk does not warrant or accept any responsibility for the accuracy or completeness of the property descriptions or related information provided here and they do not constitute property particulars. Please contact Symonds and Greenham for full details and further information.