Detached house for sale in York YO26, 3 Bedroom

York, York, UK

Quick Summary

Property Type:
Detached house
Status:
For sale
Price
£ 385,000
Beds:
3
Baths:
2
Recepts:
1
County
North Yorkshire
Town
York
Outcode
YO26
Location
Stanyforth Crescent, Kirk Hammerton, York YO26
Marketed By:
Hopkinsons Estate Agents
Posted
2019-05-08
YO26 Rating:





More Info?
Please contact Hopkinsons Estate Agents on 01423 578975 or Request Details

Property Description

A well presented three bedroomed detached family home with light and spacious accommodation throughout, situated on a corner plot offering further potential for extension subject to the necessary consents, located in the ever popular village of Kirk Hammerton.

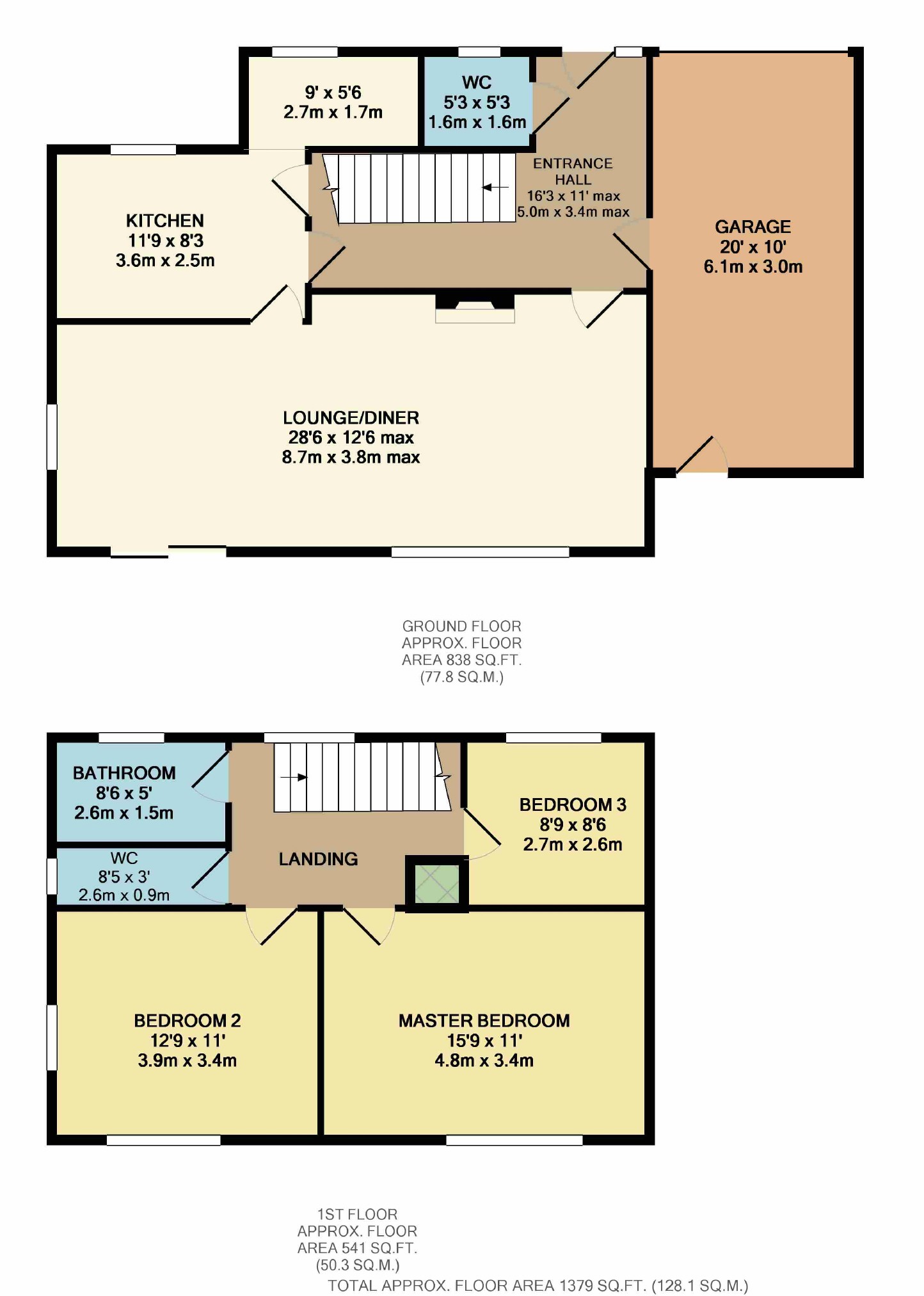
With oil fired central heating and UPVC double glazing throughout the living accommodation comprises; entrance hall, open plan living and dining room with patio doors out into the garden, modern fitted kitchen with granite worktops, integrated fridge and dishwasher, a breakfast /utility area, downstairs w/c and a door into the integral garage which offers potential for converting into extra living space subject to the usual permissions.

On the first floor the landing leads to the master bedroom, second double bedroom, good sized third bedroom, house bathroom with shower over the bath and hand basin, and a separate w/c. There is a large loft space which is fully boarded and accessed via a drop down ladder.

Outside to the front of the property is the driveway offering off street parking and leads to the garage. The garden wraps round from the front of the property to the rear and offers a good sized lawn and also a patio area providing a great entertaining space.

Directions

From the Empress roundabout proceed out of Harrogate on the Wetherby Road and past the Kestrel Pub. Turn left onto the Bypass and continue over the A1M and continue onto the A59. Turn right onto Station Road and over the railway line and continue into Crooked Lane which turns into Church Street and take the first left onto Stanyforth Crescent where the property is found on your left hand side clearly marked by a Hopkinsons For Sale board.

You may download, store and use the material for your own personal use and research. You may not republish, retransmit, redistribute or otherwise make the material available to any party or make the same available on any website, online service or bulletin board of your own or of any other party or make the same available in hard copy or in any other media without the website owner's express prior written consent. The website owner's copyright must remain on all reproductions of material taken from this website.

Floor Plans

Property Location

Marketed by Hopkinsons Estate Agents


By submitting this form, you accept our Terms of Use.

Disclaimer Property descriptions and related information displayed on this page are marketing materials provided by Hopkinsons Estate Agents. estateagents365.uk does not warrant or accept any responsibility for the accuracy or completeness of the property descriptions or related information provided here and they do not constitute property particulars. Please contact Hopkinsons Estate Agents for full details and further information.