Detached house for sale in Ware SG11, 4 Bedroom

Ware, Ware, UK

Quick Summary

Property Type:
Detached house
Status:
For sale
Price
£ 749,995
Beds:
4
County
Hertfordshire
Town
Ware
Outcode
SG11
Location
Lime Kiln Place, Albury Road, Little Hadam, Hertfordshire SG11
Marketed By:
Lanes New Homes - Hertford
Posted
2024-04-06
SG11 Rating:





More Info?
Please contact Lanes New Homes - Hertford on 01992 843885 or Request Details

Property Description

Key features:

  • 1,722 sq ft 4-bedroom detached family home
  • Exclusive, private collection of just 7 superior homes
  • Impressive kitchen/dining/breakfast room with dual aspect views and separate utility room
  • Spacious lounge with wood burner
  • Master bedroom with walk in wardrobe and en-suite
  • Garage with driveway for 2 cars
  • Situated in a beautiful village location with stunning rolling Countryside views
  • Local schooling and award winning pub
  • Bishops Stortford Train Station serving London Liverpool Street in 38 mins!
  • Assisted move available with this plot – ask the team today for more details!


Main Description
just launched! Come and view our show home today! Assisted move available!

Introducing Lime Grove… an exclusive collection of 7 superior detached 4 & 5 bedroom family homes finished to an impeccable standard.

Plot 7 (The Lavender) is a thoughtfully designed 4 bedroom home, with a superb internal layout offering versatile living space plus a garage and driveway with parking for two cars. The Lavender also boasts beautiful surrounding views of open Hertfordshire countryside.

The ground floor comprises an impressive kitchen/breakfast/dining room fully integrated with Bosch appliances including oven, combination microwave oven, fridge freezer and dishwasher. Integrated wine cooler, stone worktops, separate utility room with integrated Bosch washing machine and stone worktops, luxurious downstairs WC and separate spacious living room with feature wood burner and double oak glazed doors leading to the family/dining room.

The first floor offers a spacious master bedroom with en suite and fitted walk-in wardrobe plus three further bedrooms and a luxurious family bathroom with separate walk in double width shower.

Further features include; quality fitted flooring throughout with underfloor heating to the ground floor, porcelain floor tiles and ceramic wall tiles by Techtile London to en-suite and bathroom plus Grohe rainfall showers.

Externally The Lavender has a garage with automated Hormann sectional door plus a private block paved driveway with parking for two cars.

Location: Little Hadham is perfectly located for countryside living and easily accessible by train and road including the A10, A120, M11 and M25. Bishop’s Stortford Train Station is just 3.5 miles away serving London Liverpool Street in just 38 minutes!

Little Hadham Primary School is close by offering schooling for ages 4-11. Secondary schools in Bishop’s Stortford include the Ofsted ‘Outstanding’ Hertfordshire and Essex High School and also the Bishop’s Stortford High School for boys, recently rated one of the uk’s top 10 comprehensive schools for gcse results. Private schools in the area include Bishop’s Stortford College, St Edmunds College, Heath Mount and Haileybury College.

The award winning Nags Head public house/restaurant in the village offers locally sourced quality produce and hearty Sunday lunches.

Call the sales team today on to make your priority appointment to view all these wonderful homes have to offer!


Please note that some photos are from the show home and other plots at lime grove and are for illustrative purposes only


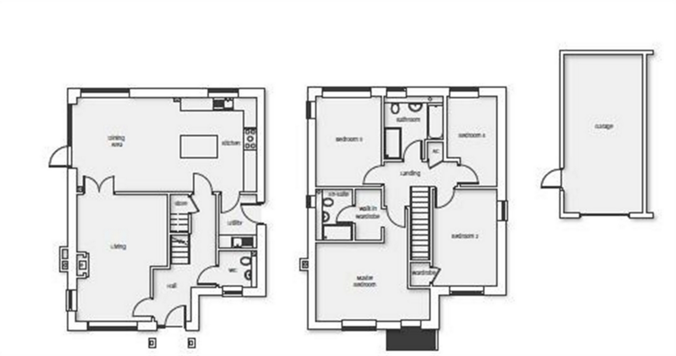
Ground Floor

Living Area
19' 1" x 13' 9" (5.82m x 4.19m)

Kitchen/Breakfast
14' 1" x 12' 4" (4.29m x 3.76m)

Dining/Family Room
14' 7" x 14' 1" (4.44m x 4.29m)

Utility
8' 1" x 5' 9" (2.46m x 1.75m)

Cloakroom
5' 9" x 5' 4" (1.75m x 1.63m)

Garage
23' 8" x 11' 8" (7.21m x 3.56m)

First Floor

Master Bedroom
17' x 16' 10" (5.18m x 5.13m)

Dressing Room
7' 8" x 3' 11" (2.34m x 1.19m)

En-Suite
7' 8" x 5' 5" (2.34m x 1.65m)

Bedroom Two
14' 6" x 9' 7" (4.42m x 2.92m)

Bedroom Three
13' 7" x 9' 9" (4.14m x 2.97m)

Bedroom Four
13' 7" x 7' 7" (4.14m x 2.31m)

Bathroom
9' 4" x 8' 10" (2.84m x 2.69m)

Floor Plans

Property Location

Marketed by Lanes New Homes - Hertford



By submitting this form, you accept our Terms of Use.

Disclaimer Property descriptions and related information displayed on this page are marketing materials provided by Lanes New Homes - Hertford. estateagents365.uk does not warrant or accept any responsibility for the accuracy or completeness of the property descriptions or related information provided here and they do not constitute property particulars. Please contact Lanes New Homes - Hertford for full details and further information.