Detached house for sale in Swansea SA5, 4 Bedroom

Swansea, Swansea, UK

Quick Summary

Property Type:
Detached house
Status:
For sale
Price
£ 480,000
Beds:
4
Baths:
4
Recepts:
3
County
Swansea
Town
Swansea
Outcode
SA5
Location
Felindre, Swansea, City And County Of Swansea. SA5
Marketed By:
Clee Tompkinson Francis - Morriston
Posted
2024-04-01
SA5 Rating:





More Info?
Please contact Clee Tompkinson Francis - Morriston on 01792 925214 or Request Details

Property Description

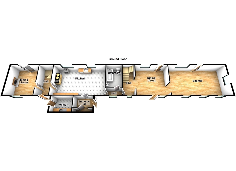
Situated in Approximately 23 Acres, we offer for sale a four bedroom detached small holding in Felindre. Accommodation comprises entrance hall, kitchen/diner, three reception rooms, utility room, downstairs bathroom, four bedrooms, three with en-suites. Externally the property benefits from a detached garage/workshop, mature gardens, 23 acres of grazing land accessible from four separate points, large driveway and ample off road parking. Viewing comes highly recommended to appreciate the rural setting, along with the charm and character this farmhouse has to offer.

Entrance Hall (6' 6" Max x 6' 2" Max or 1.99m Max x 1.89m Max)
Entered via PVCu double glazed door to entrance hall, built in storage cupboards, door to:

Utility Room (8' 4" Max x 6' 2" Max or 2.55m Max x 1.88m Max)
Double glazed door to side, plumbing for washing machine, stainless steel sink, tiled flooring.

Kitchen/Diner (22' 9" Max x 14' 1" Max or 6.94m Max x 4.29m Max)
Two double glazed wooden windows to front, comprising a range of free standing base units, integrated Belfast sink, oil fuelled aga cooker situated within an inglenook recess, space for electric cooker, solid wooden flooring.

Rear Entrance Hallway (15' 11" Max x 6' 0" Max or 4.86m Max x 1.83m Max)
Double glazed door to rear, staircase to first floor.

Sitting Room (15' 11" Max x 11' 11" Max or 4.85m Max x 3.63m Max)
PVCu double glazed patio doors to front, double glazed wooden window to rear, wood burning stove set in mature stone surround, radiator.

Ground Floor Bathroom (10' 3" Max x 5' 4" Max or 3.12m Max x 1.62m Max)
Double glazed wooden window to front, comprising a three piece suite, panelled Jacuzzi bath with mixer tap, low level w.C, pedestal wash hand basin, chrome heated towel rail.

Hallway
Double glazed wooden door and window to rear, staircase to Galleried master bedroom, archway to:

Dining Room (14' 08" Max x 13' 11" Max or 4.47m Max x 4.24m Max)
PVCu double glazed window to front, double glazed wooden window and door to rear, beamed ceiling, wall mounted lighting, radiator, archway to:

Main Lounge
Vaulted ceiling with velux window, three double glazed wooden windows to rear, double glazed wooden window and door to front, PVCu double glazed window to side, open fire and natural stone chimney breast, three radiators, solid wooden flooring.


First floor accommodation


Galleried Bedroom 1 (22' 1" Max x 13' 10" Max or 6.72m Max x 4.22m Max)
Two velux windows, beamed ceilings, radiator, door to :

En-Suite (10' 0" Max x 5' 9" Max or 3.05m Max x 1.75m Max)
Velux window, comprising a three piece suite, low level w.C, pedestal wash hand basin, shower cubicle with electric power shower, radiator.

First Floor Landing
Double glazed wooden window to front, providing access to the loft, built in storage cupboard, door to eave's storage.

Bedroom 2 (14' 8" Max x 12' 0" Max or 4.48m Max x 3.65m Max)
PVCu double glazed patio doors to balcony, built in wardrobes, radiator, door to:

En-Suite (12' 0" Max x 8' 11" Max or 3.65m Max x 2.72m Max)
Double glazed wooden window to rear, comprising a three piece suite, low level w.C. Shower cubicle with mixer power shower, free standing wash hand basin, radiator.

Bedroom 3 (14' 8" Max x 11' 4" Min or 4.48m Max x 3.46m Min)
Double glazed wooden window to front, radiator.

Bedroom 4 (14' 1" Max x 9' 8" Max or 4.30m Max x 2.95m Max)
Double glazed wooden window to front, radiator, door to:

En Suite (9' 0" Max x 5' 2" Max or 2.75m Max x 1.57m Max)
Double glazed wooden window to front, comprising a three piece suite, low level w.C, panelled corner bath with shower over, radiator. -

Access
The property is accessed via its own private gated graveled driveway which leads to a detached garage and parking area.

External To Front
To the front of the property is a large lawned area bordered by trees and shrubs with access points to the remaining acreage.

External To Rear
To the rear of the property there is a large courtyard area.

Floor Plans

Property Location

Marketed by Clee Tompkinson Francis - Morriston



By submitting this form, you accept our Terms of Use.

Disclaimer Property descriptions and related information displayed on this page are marketing materials provided by Clee Tompkinson Francis - Morriston. estateagents365.uk does not warrant or accept any responsibility for the accuracy or completeness of the property descriptions or related information provided here and they do not constitute property particulars. Please contact Clee Tompkinson Francis - Morriston for full details and further information.