Detached house for sale in Prestonpans EH32, 4 Bedroom

Prestonpans, Prestonpans, UK

Quick Summary

Property Type:
Detached house
Status:
For sale
Price
£ 270,000
Beds:
4
County
East Lothian
Town
Prestonpans
Outcode
EH32
Location
Doctor Gracie Drive, Prestonpans EH32
Marketed By:
Mov8 Real Estate
Posted
2024-04-09
EH32 Rating:





More Info?
Please contact Mov8 Real Estate on 0131 268 8851 or Request Details

Property Description



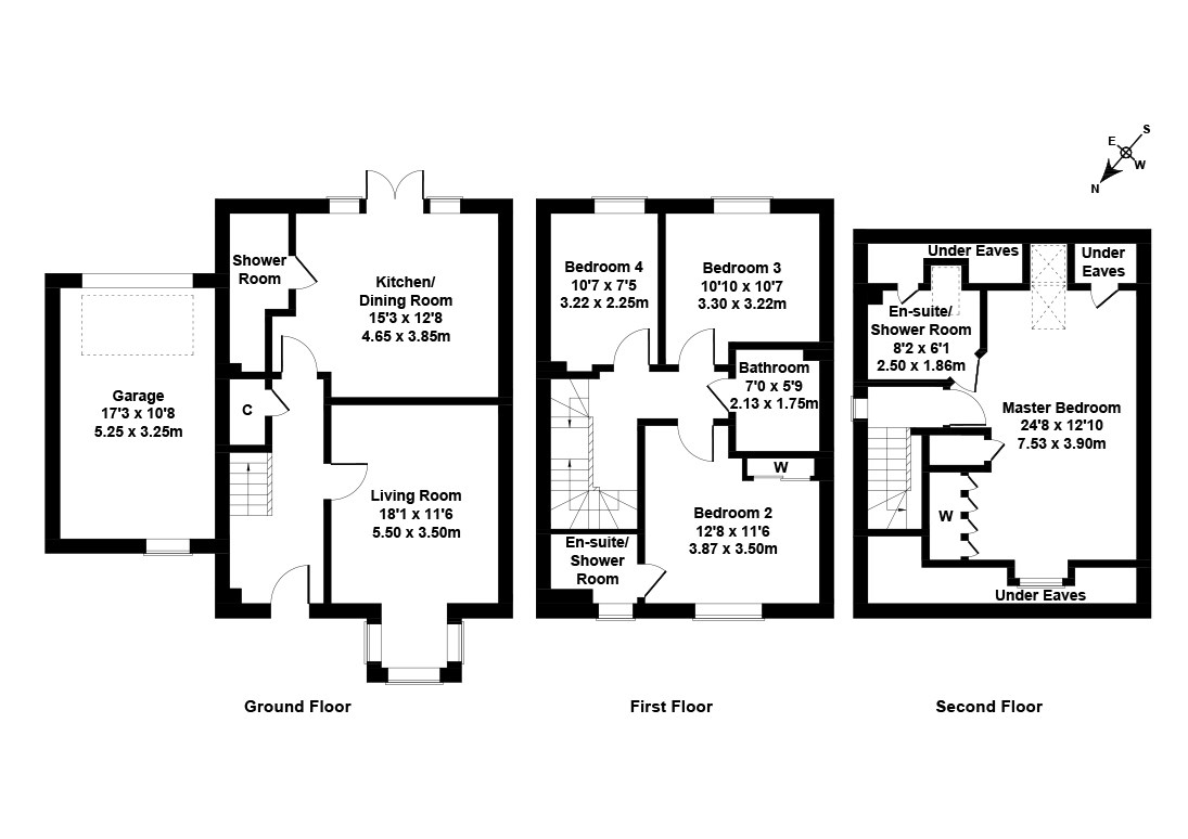
This light, spacious and attractively-presented, modern four bedroom, three-storey, detached townhouse, with garage and garden, is set on an established residential development on the outskirts of Prestonpans, East Lothian, just 11 miles from Edinburgh. A bright and spacious entrance hallway serves the ground floor rooms, with carpeted stairs leading to the upper storeys. With French doors to the rear garden, a stylish integrated kitchen, with ample dining space, and a shower room off, features an induction hob with extractor hood over, a double electric oven, fridge/freezer, washing machine and dishwasher. To the front is a carpeted living room with a box-bay window. On the first floor are three double bedrooms, one with an en-suite shower room and built-in wardrobe, and a family bathroom with a contemporary white suite. An extra-large carpeted master bedroom, with an en-suite shower room off, occupies the top floor, enjoys fine views from both aspects, and benefits from eaves storage and built-in twin wardrobes. Prestonpans is a charming coastal town located around 11 miles from Edinburgh. The town itself, and both neighbouring Cockenzie and Port Seton, offer good local shopping facilities including a Co-op supermarket and a Lidl store, along with the usual banking and Post Office services, a library, and a community sports centre. There are miles of sandy beaches in East Lothian, along with a selection of golf courses. There is easy access to the A1, which offers swift commuting into Edinburgh city centre or to the east, and also provides access to the Borders and to the north of England. Good public transport links are available within the area, including the Prestonpans railway station. Local schooling is also available in both Prestonpans and Cockenzie.


Floor Plans

Property Location

Marketed by Mov8 Real Estate


By submitting this form, you accept our Terms of Use.

Disclaimer Property descriptions and related information displayed on this page are marketing materials provided by Mov8 Real Estate. estateagents365.uk does not warrant or accept any responsibility for the accuracy or completeness of the property descriptions or related information provided here and they do not constitute property particulars. Please contact Mov8 Real Estate for full details and further information.