Detached house for sale in Northallerton DL7, 6 Bedroom

Northallerton, Northallerton, UK

Quick Summary

Property Type:
Detached house
Status:
For sale
Price
£ 650,000
Beds:
6
Baths:
6
Recepts:
5
County
North Yorkshire
Town
Northallerton
Outcode
DL7
Location
Milton House, Londonderry, Northallerton DL7
Marketed By:
Castle Homes
Posted
2024-04-28
DL7 Rating:





More Info?
Please contact Castle Homes on 0191 392 0442 or Request Details

Property Description

Description

Country living but with easy access to the A1(M). This country home nestles in its own 3.8 acres of land. A sweeping driveway, with its own turning circle brings you to the main house and separate 2 bedroom holiday cottage, which offers a significant income opportunity or guest annex. The main home is packed with features. It has four spacious bedrooms and four bathrooms upstairs, as well as a converted laundry room. Downstairs offers everything you would expect from a house of this quality, including a good sized office and a formal dining room. This is a great country residence for a large family, which comes with plenty of opportunity to establish a rural business.

*Virtual Viewings on request*

Entrance Hall

The formal entrance to the main house is guarded by a genuine Thomas Mouseman front door, opening into a a spacious entrance hall which sets the tone for the rest of the house.

Hall

The entrance hall opens on to a wide hallway, with direct access to lounge, dining room, kitchen, breakfast room and office, as well as the stairs.

Dining (5.26m x 4.49m)

This sizeable formal dining room has everything you need to entertain your guests, including french doors on to the south-facing patio for sundowners.

Lounge (6.35m x 3.90m)

The large lounge, tastefully decorated is a relaxing space for family or guests.

Office 1 (3.28m x 1.75m)

A full sized home office, fully fitted, is ready for those times when you can't avoid bring work home with you.

Kitchen (4.49m x 3.07m)

A good sized, fully kitted family kitchen with large double oven, plenty of cupboard space and french doors to the garden.

Family (4.58m x 4.49m)

The sitting room, or family room provides a comfortable alternative family space or perhaps another place for a TV.

Breakfast Room (4.58m x 2.86m)

A convenient place for breakfast or informal dining. A door hides an additional utility space, fitted for washers and another front door offers a less formal way in and out of the house from the driveway, with a porch for family coast and shoes.

Master Bedroom (3.9m x 5.6m)

A great sized en-suite bedroom with plenty of light and views over the gardens.

En-Suite (2.75m x 1.35m)

Full ensuite to the master bedroom.

Bedroom 2 (4.49m x 3.21m)

A great sized bedroom with south-facing aspect and en suite.

Bedroom 3 (4.49m x 3.04m)

A good sized and well-proportioned bedroom which really catches the light. Ensuite.

Bedroom 4 (4.49m x 4.43m)

An ideal guest bedroom at the end of the landing with private access to the full sized bedroom next door. Light and airy.

Bathroom (3.01m x 2.86m)

A full sized bathroom which could serve the family or be kept behind the doorway to serve as a guest en-suite.

Detached Property

A former stable, this separate house has lounge, kitchen/diner, 2 double bedrooms and a bathroom. It is ideal as either a 'granny annex' or a holiday let, which should provide a steady, year-round income.

Cloakroom (1.75m x 1.41m)

Accessed from the main house breakfast room, it offers WC and basin in a convenient location.

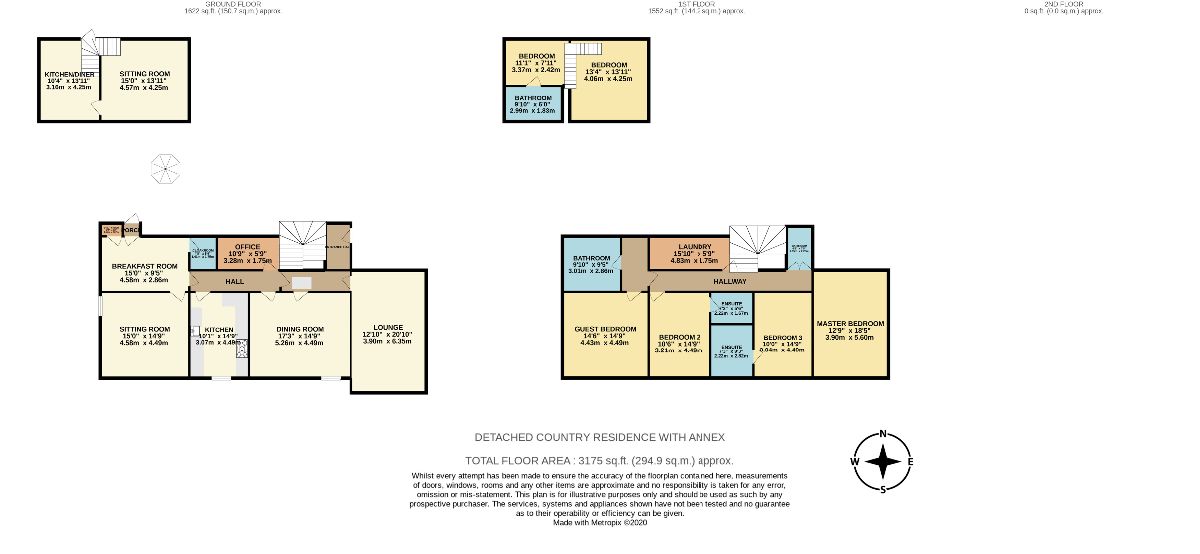
Floor Plans

Property Location

Marketed by Castle Homes



By submitting this form, you accept our Terms of Use.

Disclaimer Property descriptions and related information displayed on this page are marketing materials provided by Castle Homes. estateagents365.uk does not warrant or accept any responsibility for the accuracy or completeness of the property descriptions or related information provided here and they do not constitute property particulars. Please contact Castle Homes for full details and further information.